豊川町中古住宅【チャレンジ物件】
ここに注目!【チャレンジ物件】どこまでチャレンジするかな!閑静な住宅街なのに便利な場所、南西側11m公道、道路挟んで、なかよし公園の場所で中古住宅がでました!建物は古く修繕が必要の箇所が多数ありますが、なんといっても場所の条件が良く利便性がいい場所です!。建物のリフォーム・修繕をどこまでするか?ご自身でDIYチャレンジするのもありありです。お問い合わせお待ちしております。
| 価格 |
600万円
|
|---|---|
| 建物面積 | 139.89m² (42.31坪) |
| 土地面積 | 165.28m² (49.99坪)(公簿) |
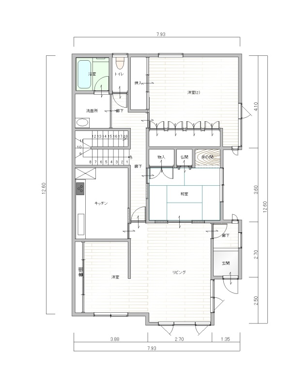
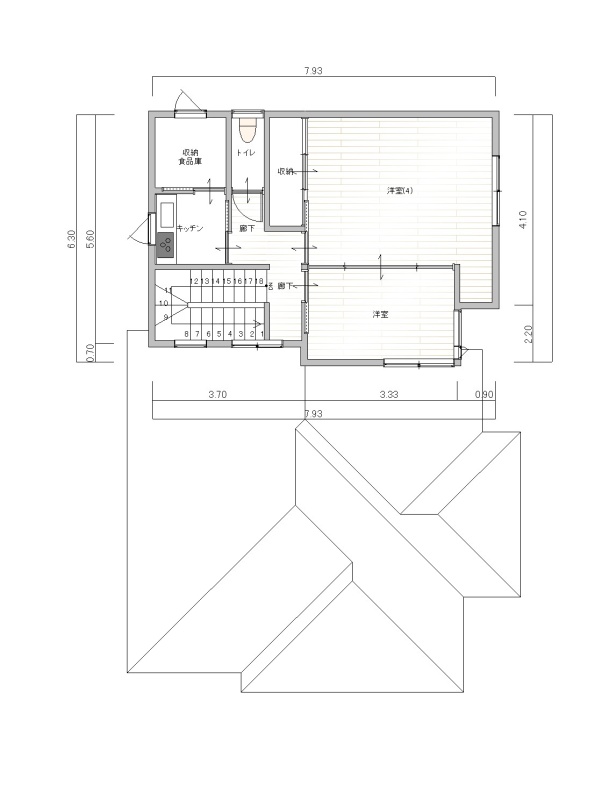
| 間取り | 5LDK1階:和室6帖 洋室9帖 洋室3.5帖 L12帖 K / 2階:洋室4.52帖 洋室9帖 |
| 住所 | 北海道釧路市豊川町16-7 |
| 交通 | くしろバス 「豊川町13番地」停(徒歩3分)|くしろバス 「労災病院」停(徒歩3分) |
| 築年月 | 築36年(1989年9月) |
| 駐車場 |
あり 駐車可能台数:1台
|
販売状況、見学、詳細を知りたい方はこちら!
お電話の際は「連合隊の物件」とお伝えください。
情報掲載期限:あと22日(更新日 2025/12/11)
- 物件写真・概要
- 周辺地図
-
▼クリックで左の拡大画像が変わります。 すべての写真を拡大
販売状況、見学、詳細を知りたい方はこちら!
おすすめポイント
- 駐車場あり
- 都市ガス
- 近くて便利!徒歩5分以内にある施設
- 4分
4分- 3分
3分- 4分
4分- 周辺施設を地図で確認
交通
- くしろバス 「豊川町13番地」停徒歩3分
- くしろバス 「労災病院」停徒歩3分
物件概要
建物の階建 地上2階建 主要採光面 南西 構造 木造 接道状況 一方 - 南西側幅11.00mの道に8.98m接道
都市計画区域 市街化区域 私道負担 地目/地勢 宅地 地勢:平坦 国土法届出 土地権利 所有権 用途地域 - 第2種中高層住居専用地域(建ぺい率:60% / 容積率:200%)
引渡し 相談 現況 空き 建築確認番号 第648号 取引態様 仲介 物件No 仲介手数料概算 33万円(金額は概算です。正確な金額は不動産会社へお問合せ下さい) 設備・特徴 - 整形地
- 閑静な住宅街
- トイレ2ヶ所以上
- 都市ガス
備考 現状有姿渡し。法22条区域。宅地造成等工事規制区域。津波災害警戒区域内。契約不適合責任免責。 学区色がついているアイコンをクリックすると、本物件までの道順を見ることができます。
主な周辺施設色がついているアイコンをクリックすると、本物件までの道順を見ることができます。
-
ホームページはこちら
北海道知事 釧路(4) 第508号
家工房(株)- 加入団体
- (公社)北海道宅地建物取引業協会
- 保証協会
- (公社)全国宅地建物取引業保証協会
- 公正取引協議会
- (一社)北海道不動産公正取引協議会
※連合隊は物件情報の精度向上に努めています:「物件情報に誤りがある」「成約済みである」などお気付きの点がございましたらこちらよりご連絡ください。
写真枚数:30枚
外観
外観
1階(図面と現況が異なる場合は現況優先となります)
2階(図面と現況が異なる場合は現況優先となります)
外観
外観
1階リビング
1階リビング
1階リビング
1階洋室
1階和室
1階和室
1階キッチン
1階キッチン(床下収納)
玄関
玄関
1階廊下
1階廊下
1階洋室
1階洋室
1階階段下収納
洗面台
浴室
1階トイレ
2階ミニキッチン
2階トイレ
2階洋室
2階洋室
2階廊下
2階食品庫
釧路の新築・リーフォーム・住まい探しは家工房株式会社へ!
「感動」こそが技術の証し。「笑顔」の創造が仕事です。私たちは「お客様の満足」にとことんこだわった建築・リフォームのプロ集団です。住宅・店舗・マンション等の設計から施工まで一貫した管理で夢を形にします。