釧路市白金町 旧医療・療養施設
ここに注目!医療施設(旧病院)建物の他に旧療養施設有り(RC造2階建 延床面積420.25㎡ 平成17年1月築 築後20年) 1階部分賃貸中につき引渡し時期相談 売側宅建業者有り、分かれ不可
| 価格 |
1億1,755万円
|
|---|---|
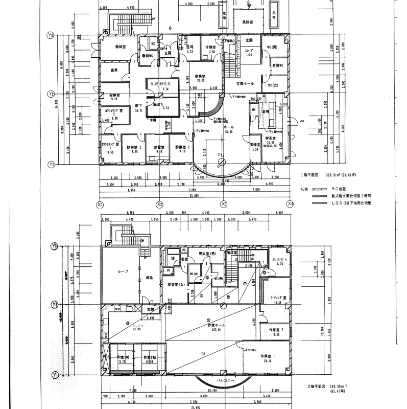
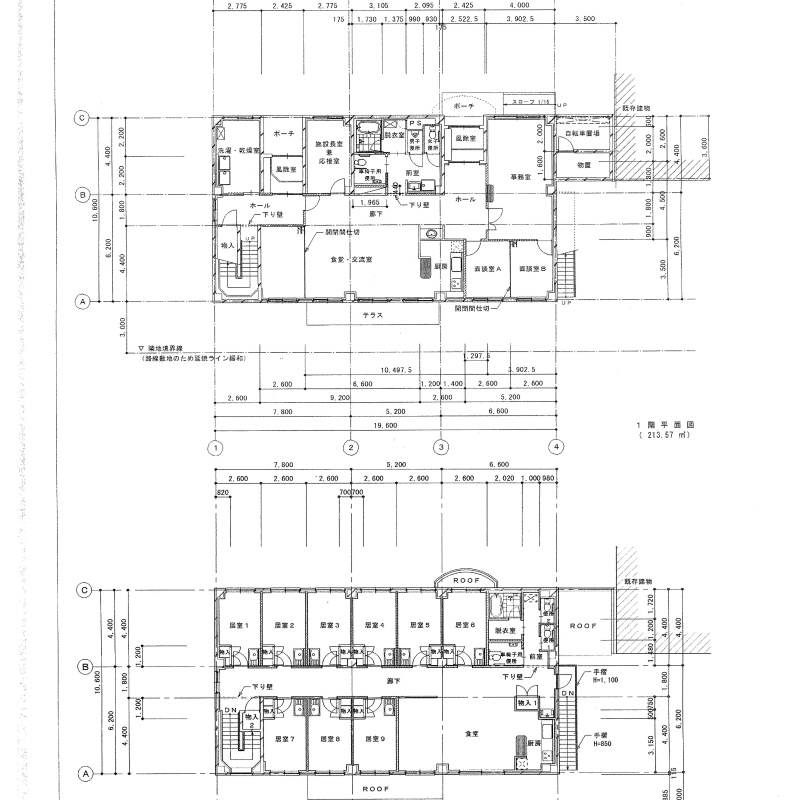
| 建物面積 | 598.66m² (181.09坪) |
| 土地面積 | 2644.03m² (799.81坪)(公簿) |
| 間取・専有 | |
| 住所 | 北海道釧路市白金町2-18 |
| 交通 | 釧路駅(徒歩6分)道順を見る |
| 築年月 | 築27年(1998年11月) |
| 駐車場 |
あり
|
販売状況、見学、詳細を知りたい方はこちら!
お電話の際は「連合隊の物件」とお伝えください。
情報掲載期限:あと28日(更新日 2026/2/12)
- 物件写真・概要
- 周辺地図
-
販売状況、見学、詳細を知りたい方はこちら!
おすすめポイント
- 駐車場あり
交通色がついているアイコンをクリックすると、本物件までの道順を見ることができます。
物件概要
所在階/建物の階建 地上2階建 総戸数 主要採光面 南西 構造 鉄筋コンクリート(RC)造 販売区画数/
総区画数-/- 建築条件 なし 接道状況 一方 - 東側幅22.00mの公道に42.45m接道 位置指定:無
都市計画区域 市街化区域 私道負担 なし 地目/地勢 宅地 地勢:平坦 国土法届出 要届出 土地権利 所有権 用途地域 - 商業地域(建ぺい率:80% / 容積率:600%)
引渡し 相談(2026年4月以降引渡し) 現況 入居中(2026年3月賃借人退去予定) 管理人 管理形態 管理組合 指定なし 取引態様 仲介 物件No 仲介手数料概算 不動産会社へお問合せください 設備・特徴 - 駅前立地
備考 -
ホームページはこちら
北海道知事 石狩(6) 第6274号
北海道建物(株) 釧路支店〒085-0015
TEL:0154-22-0374
FAX:0154-22-0387
営業時間:8:40~17:00
定休日:毎週 土曜・日曜・祝日
※連合隊は物件情報の精度向上に努めています:「物件情報に誤りがある」「成約済みである」などお気付きの点がございましたらこちらよりご連絡ください。
写真枚数:14枚
安心・安全な不動産取引は北海道建物へ
宅地建物取引士資格を有したプロフェッショナルが、弊社不動産システム及び本支店ネットワークを活用し、皆様のニーズにお応え致します。