西13北7売家
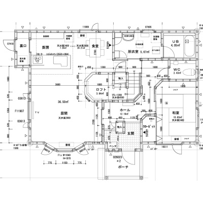
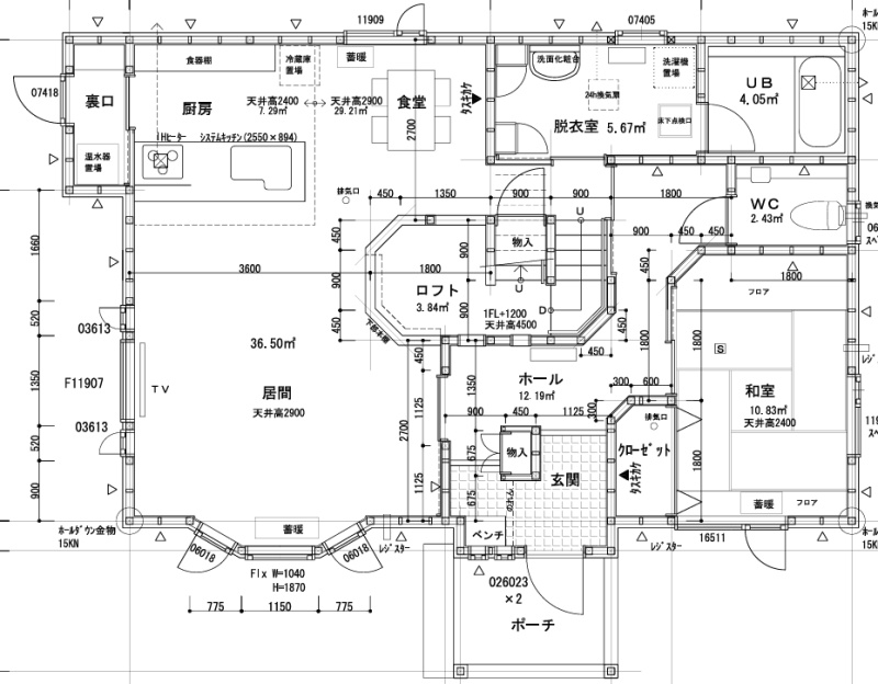
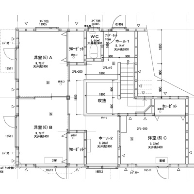
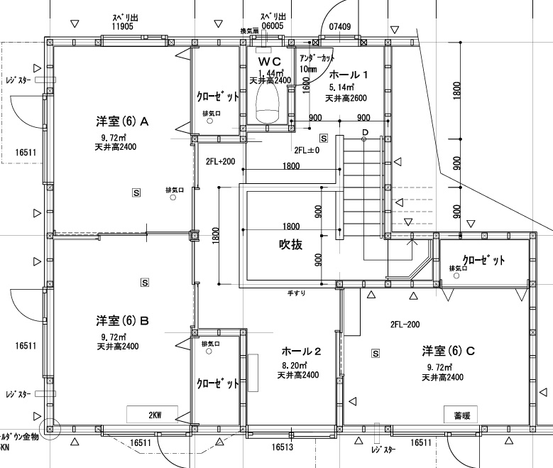
ここに注目!【保育園・小学校が徒歩圏内】子育て世代におすすめのこだわり住宅 保育園や小学校が近く、お子様の通園・通学も安心の立地。 子育て世代のご家族におすすめです。 室内は、随所にこだわりが詰まったゆとりある間取り。 1階にはリビングのほかに和室を備え、さらにミニキッチンを設置。 将来的には二世帯住宅としての利用も可能な設計となっております。 親御様との同居や、お子様の成長に合わせた住まい方の変化にも柔軟に対応できます。 中二階にはカウンタースペースを設置。 お子様の勉強スペースとして活用でき、ご家族の気配を感じながら過ごせる安心の空間です。 浴室はゆとりの1.25坪タイプ。 ご家族皆さまでゆったりと入浴できます。 同様の広さや設備を新築で検討すると、建築費高騰の影響もありご予算が大きくなるケースもございます。 本物件は中古住宅だからこそ、充実した仕様とゆとりある間取りを現実的な価格帯でご検討いただけます。 内覧ご予約承っておりますのでお気軽にお問い合わせください。
| 価格 |
2,600万円
|
|---|---|
| 建物面積 | 131.88m² (39.89坪) |
| 土地面積 | 247.45m² (74.85坪)(公簿) |
| 間取り | 4LDK |
| 住所 | 北海道標津郡中標津町西13条北7-1-15 |
| 交通 | |
| 築年月 | 築12年(2013年11月) |
| 駐車場 |
あり
|
販売状況、見学、詳細を知りたい方はこちら!
お電話の際は「連合隊の物件」とお伝えください。
情報掲載期限:あと17日(更新日 2026/3/2)
- 物件写真・概要
- 周辺地図
-
販売状況、見学、詳細を知りたい方はこちら!
おすすめポイント
- 駐車場あり
- オール電化
- 近くて便利!徒歩5分以内にある施設
- 4分
4分- 周辺施設を地図で確認
物件概要
建物の階建 地上2階建 主要採光面 構造 木造 接道状況 一方 都市計画区域 非線引区域 私道負担 なし 地目/地勢 宅地 地勢:平坦 国土法届出 土地権利 所有権 用途地域 - 第2種中高層住居専用地域(建ぺい率:60% / 容積率:200%)
引渡し 相談 現況 空き 取引態様 仲介 物件No 仲介手数料概算 92万4,000円(金額は概算です。正確な金額は不動産会社へお問合せ下さい) 設備・特徴 - 整形地
- 閑静な住宅街
- オール電化
- トイレ2ヶ所以上
- 温水洗浄トイレ
- シャワー付洗面化粧台
- 浴室1坪以上
- システムキッチン
- IHクッキングヒーター
- 食器洗乾燥機
- エアコン付
- 24時間換気システム
- 電気温水器
- モニタ付インターホン
備考 学区色がついているアイコンをクリックすると、本物件までの道順を見ることができます。
主な周辺施設色がついているアイコンをクリックすると、本物件までの道順を見ることができます。
-
ホームページはこちら
北海道知事 根室(1) 第48号
(同)アール企画
※連合隊は物件情報の精度向上に努めています:「物件情報に誤りがある」「成約済みである」などお気付きの点がございましたらこちらよりご連絡ください。
写真枚数:25枚