釧路市宮本2丁目店舗兼事務所
ここに注目!【事務所移転の為、売却いたします】 ・移転予定:2025年12月末 ・2025年12月末まで営業中のため、内覧希望の場合は事前にご連絡ください ・定休日(火曜日、水曜日)以外の曜日はご覧いただけます
この物件は、仲介手数料がかかりません。
この物件の売主は、情報を掲載している不動産会社です。仲介物件ではないため、仲介手数料は発生しません。
| 価格 |
2,700万円
|
|---|---|
| 建物面積 | 578.08m² (174.86坪) |
| 土地面積 | 849m² (256.82坪)(公簿) |
| 住所 | 北海道釧路市宮本2丁目5-1 |
| 交通 | 釧路駅(車で7分)道順を見る |
| 築年月 | 築34年(1991年3月) |
| 駐車場 |
あり 駐車可能台数:3台
|
| 用途地域 |
|
販売状況、見学、詳細を知りたい方はこちら!
お電話の際は「連合隊の物件」とお伝えください。
情報掲載期限:あと19日(更新日 2025/11/27)
- 物件写真・概要
- 周辺地図
-
販売状況、見学、詳細を知りたい方はこちら!
おすすめポイント
- 駐車2台以上可
- エアコン付
- 光ファイバー
- 24時間セキュリティー
交通色がついているアイコンをクリックすると、本物件までの道順を見ることができます。
物件概要
建物の階建 地上2階建 総戸数 1戸 主要採光面 南 構造 鉄骨造 居抜き情報 接道状況 三方 - 東側幅18.00mの公道に15.92m接道 位置指定:無
- 南側幅8.00mの公道に41.16m接道
- 北側幅8.00mの公道に38.69m接道
都市計画区域 市街化区域 私道負担 なし 地目/地勢 原野 地勢:平坦 国土法届出 不要 土地権利 所有権 用途地域 - 第2種中高層住居専用地域(建ぺい率:60% / 容積率:200%)
引渡し 相談(移転予定:2025年12月末) 現況 入居中 取引態様 売主 物件No 仲介手数料概算 取引態様が売主なので仲介手数料は不要です 修繕履歴 - 1995年9月頃に部分的にリフォームしています。施工内容:増築
設備・特徴 - 灯油暖房
- エアコン付
- ガス設備
- 給排水設備
- 24時間セキュリティー
- ブロードバンド回線(光ファイバー等の高速インターネット)
- 男女別トイレ(共用部)
備考 主な周辺施設色がついているアイコンをクリックすると、本物件までの道順を見ることができます。
-
ホームページはこちら
北海道知事 石狩(14) 第1481号
ミサワホーム北海道(株) 釧路営業所
※連合隊は物件情報の精度向上に努めています:「物件情報に誤りがある」「成約済みである」などお気付きの点がございましたらこちらよりご連絡ください。
写真枚数:7枚
道路側ショールーム
事務所部分
事務所部分
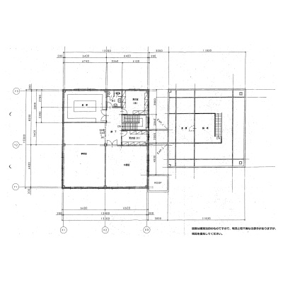
1階平面図
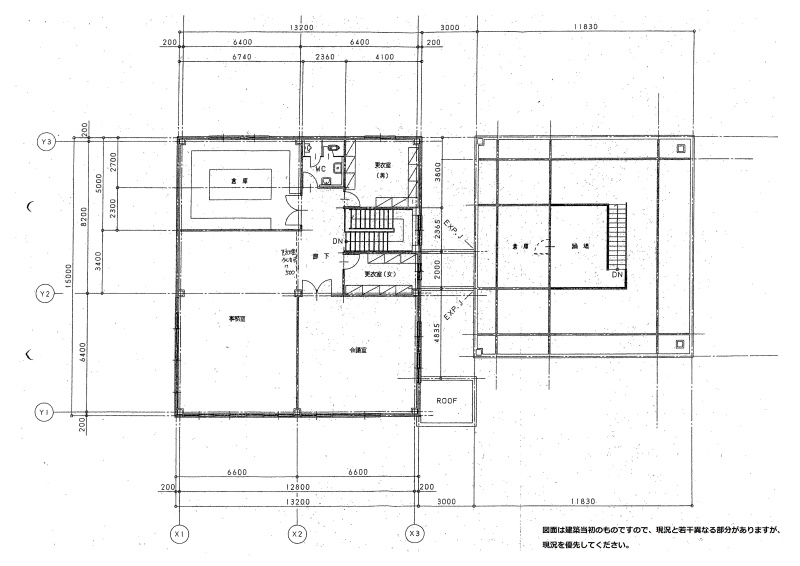
2階平面図
業界唯一、35年連続グッドデザイン賞を受賞!
業界唯一、35年連続グッドデザイン賞を受賞するミサワホーム。美意識や嗜好、人生観、文化までをデザインするデザイナーが設計した住宅は日々の生活のクオリティを高め、一生涯にわたり愛され続ける邸宅となります。