根室市 駒場町 売家
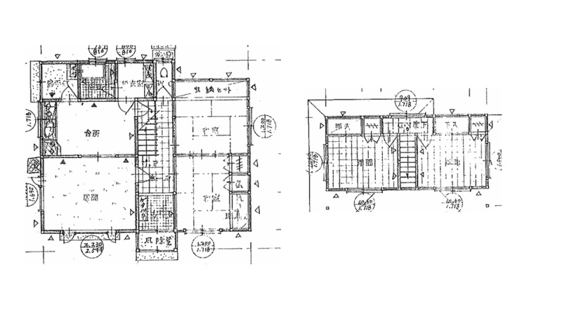
ここに注目!根室市駒場町に、ご家族の新生活を温かく包み込む一戸建てのご紹介です!広々とした4LDKの間取りは、117.27㎡のゆとりある空間。お子様の成長や趣味のスペースにもぴったりで、南東向きのリビング日当たり良好です! 閑静な住宅街に位置しており、冬の寒さも安心の「玄関フード」や、季節の道具もすっきり収納できる「物置」、そして大切な愛車を守る「車庫」も完備しています。 根室市立花咲小学校まで徒歩約12分と、お子様の通学にも便利な立地です。現在空き家ですので、ご自身のペースでゆっくりと内覧してみませんか? 土地は借地となっており年間6万円がかかります。住宅ローン等や資金計画のお手伝いもさせていただきますのでご安心ください。ご連絡お待ちしております(^^♪ ※お正月中のご連絡もご遠慮なく!
| 価格 |
550万円
|
|---|---|
| 建物面積 | 117.27m² (35.47坪) |
| 土地面積 | |
| 間取り | 4LDK |
| 住所 | 北海道根室市駒場町3-21-14 |
| 交通 | 根室駅(徒歩37分)|根室駅(車で8分)道順を見る |
| 築年月 | 築40年(1985年8月) |
| 駐車場 |
あり
|
【WEB面談可】
販売状況、見学、詳細を知りたい方はこちら!
お電話の際は「連合隊の物件」とお伝えください。
情報掲載期限:あと23日(更新日 2026/2/17)
- 物件写真・概要
- 周辺地図
-
【WEB面談可】
販売状況、見学、詳細を知りたい方はこちら!おすすめポイント
- 即引渡し可
- 駐車場あり
- 車庫あり
交通色がついているアイコンをクリックすると、本物件までの道順を見ることができます。
物件概要
建物の階建 地上2階建 主要採光面 南東 構造 木造 接道状況 一方 都市計画区域 非線引区域 私道負担 なし 地目/地勢 地勢:平坦 国土法届出 土地権利 用途地域 引渡し 即時 現況 空き 取引態様 仲介 物件No 仲介手数料概算 33万円(金額は概算です。正確な金額は不動産会社へお問合せ下さい) 設備・特徴 - 車庫あり
- 物置
- 玄関フード
- 閑静な住宅街
- LPガス
- 日当り良好
備考 学区色がついているアイコンをクリックすると、本物件までの道順を見ることができます。
主な周辺施設色がついているアイコンをクリックすると、本物件までの道順を見ることができます。
-
ホームページはこちら
北海道知事 釧路(1) 第534号
(株)インテリジェンス・モール 【WEB面談可】〒085-0057
TEL:0154-64-6043(物件についてのお問い合わせ先)
TEL:090-9089-6059
FAX:0154-64-6045
営業時間:9:00~17:00
- 加入団体
- (公社)北海道宅地建物取引業協会
- 保証協会
- (公社)全国宅地建物取引業保証協会
- 公正取引協議会
- (一社)北海道不動産公正取引協議会
※連合隊は物件情報の精度向上に努めています:「物件情報に誤りがある」「成約済みである」などお気付きの点がございましたらこちらよりご連絡ください。
写真枚数:20枚
地域の皆さまの生活を強力にサポートいたします!
当社はFP事務所として人々の生活に関わる企業活動をしています。生活設計、資産運用、不動産有効活用、相続等のご相談等、幅広い分野でサポートさせていただきます。皆様からのご相談をお待ちしております。