釧路市愛国西4丁目 中古住宅
ここに注目!釧路市愛国西4丁目の中古住宅です。駐車スペースも充分に確保出来、立地もどこに行くも便利な愛国地区。所有者様がキレイに使われていたので、修繕箇所が殆ど無くリフォームにかかる費用も抑えられます。是非、一度お問い合わせください。
| 価格 |
1,600万円
|
|---|---|
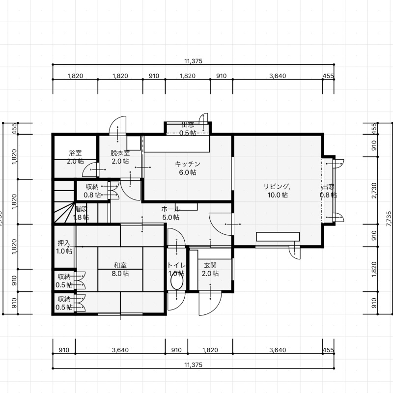
| 建物面積 | 98.53m² (29.8坪) |
| 土地面積 | 231m² (69.87坪)(公簿) |
| 間取り | 3LDK |
| 住所 | 北海道釧路市愛国西4丁目18-17 |
| 交通 | くしろバス 「愛国西2丁目」停(徒歩4分) |
| 築年月 | 築23年(2002年4月) |
| 駐車場 |
あり 駐車可能台数:2台
|
販売状況、見学、詳細を知りたい方はこちら!
お電話の際は「連合隊の物件」とお伝えください。
情報掲載期限:あと30日(更新日 2026/1/20)
- 物件写真・概要
- 周辺地図
-
▼クリックで左の拡大画像が変わります。 すべての写真を拡大
販売状況、見学、詳細を知りたい方はこちら!
おすすめポイント
- 即引渡し可
- 駐車2台以上可
- 都市ガス
- 追い焚き風呂
- 近くて便利!徒歩5分以内にある施設
- 5分
5分- 5分
5分- 周辺施設を地図で確認
交通
- くしろバス 「愛国西2丁目」停徒歩4分
物件概要
建物の階建 地上2階建 主要採光面 南東 構造 木造(在来工法) 接道状況 一方 - 東側幅8.00mの公道に11.00m接道
都市計画区域 市街化区域 私道負担 なし 地目/地勢 宅地 地勢:平坦 国土法届出 不要 土地権利 所有権 用途地域 - 第1種低層住居専用地域(建ぺい率:50% / 容積率:80%)
引渡し 即時 現況 空き 取引態様 仲介 物件No 仲介手数料概算 59万4,000円(金額は概算です。正確な金額は不動産会社へお問合せ下さい) 設備・特徴 - 閑静な住宅街
- 物置
- 出窓
- 二重サッシ
- バリアフリー
- フローリング
- シューズボックス
- 納戸・トランクルーム
- 全居室収納あり
- 温水洗浄トイレ
- IHクッキングヒーター
- 都市ガス
- 電気暖房
- エアコン付
- モニタ付インターホン
- 田舎暮らし向き
- 庭が広い(10坪以上)
- 浴室1坪以上
- 追い焚き風呂
- コンロ3口以上
- システムキッチン
- 熱交換器
備考 学区色がついているアイコンをクリックすると、本物件までの道順を見ることができます。
主な周辺施設色がついているアイコンをクリックすると、本物件までの道順を見ることができます。
-
ホームページはこちら北海道知事 釧路(2) 第541号
(株)住都不動産〒088-0622
TEL:0154-64-5639(物件についてのお問合せ先)
FAX:0154-64-5640(物件についてのお問合せ先)
営業時間:9:00~17:00
定休日:毎週 土曜・日曜
- 加入団体
- (公社)北海道宅地建物取引業協会
- 保証協会
- (公社)全国宅地建物取引業保証協会
※連合隊は物件情報の精度向上に努めています:「物件情報に誤りがある」「成約済みである」などお気付きの点がございましたらこちらよりご連絡ください。
写真枚数:15枚
1階間取り
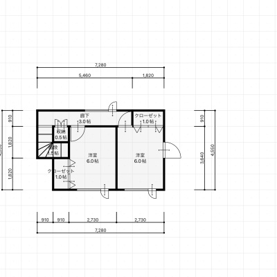
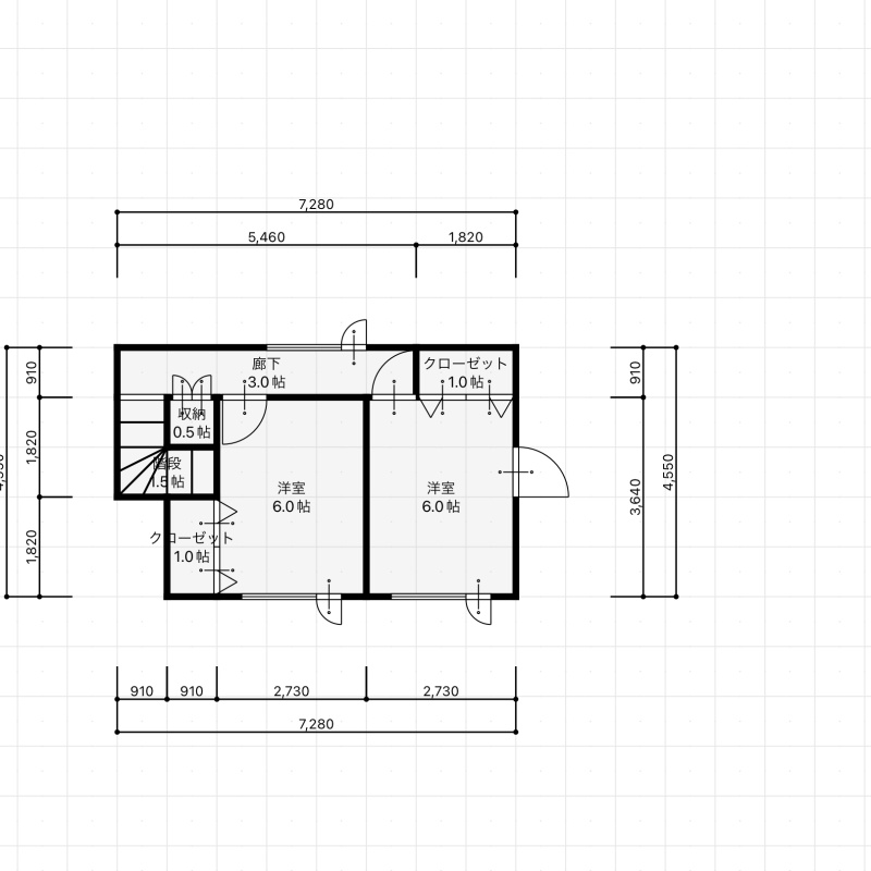
2階間取り
リビング
リビング
1階和室
トイレ
キッチン
浴室
玄関
2階西側居室
2階東側居室
リビング暖房器
シューズボックス