釧路市桜ヶ岡7丁目 中古住宅
ここに注目!現状渡しになります。修繕が必要な物件です。
| 価格 |
35万円
|
|---|---|
| 建物面積 | 136.08m² (41.16坪) |
| 土地面積 | 202.99m² (61.4坪)(公簿) |
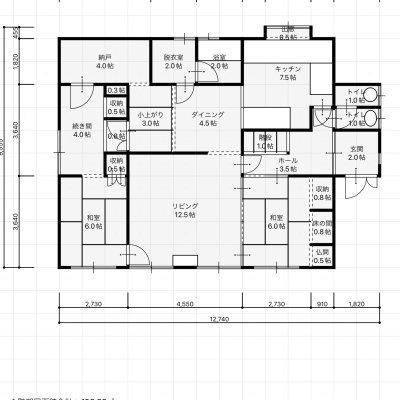
| 間取り | 4LDK |
| 住所 | 北海道釧路市桜ケ岡7丁目1番8号 |
| 交通 | くしろバス 「電話交換局」停(徒歩2分) |
| 築年月 | 築51年(1974年3月) |
| 駐車場 |
あり 駐車可能台数:1台
|
販売状況、見学、詳細を知りたい方はこちら!
お電話の際は「連合隊の物件」とお伝えください。
情報掲載期限:あと18日(更新日 2025/12/26)
- 物件写真・概要
- 周辺地図
-
▼クリックで左の拡大画像が変わります。 すべての写真を拡大
販売状況、見学、詳細を知りたい方はこちら!
おすすめポイント
- 即引渡し可
- 駐車場あり
- 角地
- 南向き
- 近くて便利!徒歩5分以内にある施設
- 1分
1分- 周辺施設を地図で確認
交通
- くしろバス 「電話交換局」停徒歩2分
物件概要
建物の階建 地上2階建 主要採光面 南 構造 木造(在来工法) 接道状況 角地 - 東側幅8.00mの公道に11.33m接道
- 南側幅6.00mの公道に14.58m接道
都市計画区域 市街化区域 私道負担 なし 地目/地勢 宅地 地勢:傾斜地 国土法届出 不要 土地権利 所有権 用途地域 - 第1種住居地域(建ぺい率:60% / 容積率:200%)
引渡し 即時 現況 空き 取引態様 仲介 物件No 仲介手数料概算 33万円(金額は概算です。正確な金額は不動産会社へお問合せ下さい) 設備・特徴 - 角地
- 閑静な住宅街
- 高台に立地
- 納戸・トランクルーム
- 灯油ボイラー
- 灯油暖房
- 田舎暮らし向き
- 日当り良好
備考 敷地内に私設電柱あり。 学区色がついているアイコンをクリックすると、本物件までの道順を見ることができます。
主な周辺施設色がついているアイコンをクリックすると、本物件までの道順を見ることができます。
-
ホームページはこちら北海道知事 釧路(2) 第541号
(株)住都不動産〒088-0622
TEL:0154-64-5639(物件についてのお問合せ先)
FAX:0154-64-5640(物件についてのお問合せ先)
営業時間:9:00~17:00
定休日:毎週 土曜・日曜
- 加入団体
- (公社)北海道宅地建物取引業協会
- 保証協会
- (公社)全国宅地建物取引業保証協会
※連合隊は物件情報の精度向上に努めています:「物件情報に誤りがある」「成約済みである」などお気付きの点がございましたらこちらよりご連絡ください。
写真枚数:19枚
外観
1F間取り
2F間取り
外観
リビング
リビング
1F東側和室
1F西側和室
2F東側和室
2F西側和室
キッチン
ダイニング
トイレ
トイレ
玄関
脱衣室
浴室
小上がり
納戸