すぐ入居可能!!外環すぐ近くの好立地、豊美2丁目 リフォーム済住宅
ここに注目!リフォームの良いところはお家が生まれ変わるところ!こちらのお家はもともと洗面化粧台がありませんでした、脱衣所には洗濯機置き場だけ。洗面化粧台が欲しい、そんなわたしのわがままを叶えるべくリフォーム担当は間取り変更をし無事洗面化粧台と洗濯機置き場の二つが叶いました☆立地も富原小学校まで徒歩10分とお子様にも安心、外環入り口もすぐそばで釧路のどの場所も行きやすいですね。富原小学校校区は物件があるうちに!が鉄則です。是非この機会にご検討ください!
| 価格 |
1,430万円
|
|---|---|
| 建物面積 | 85.28m² (25.79坪) |
| 土地面積 | 177.46m² (53.68坪)(公簿) |
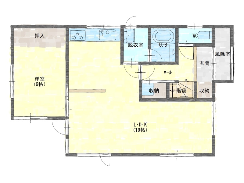
| 間取り | 3LDKLDK19帖 洋室6帖 洋室6帖 洋室6帖 |
| 住所 | 北海道釧路郡釧路町豊美2-11-15 |
| 交通 | 東釧路駅(車で10分)|くしろバス 「豊美2丁目」停(徒歩1分)道順を見る |
| 築年月 | 築34年(1991年11月) |
| 駐車場 |
あり
小さめのお車でしたら敷地裏まで持っていくことにより数台可能。敷地横は軽自動車縦列2台可能。 |
販売状況、見学、詳細を知りたい方はこちら!
お電話の際は「連合隊の物件」とお伝えください。
情報掲載期限:あと25日(更新日 2026/4/19)
- 物件写真・概要
- 周辺地図
-
販売状況、見学、詳細を知りたい方はこちら!
おすすめポイント
- 駐車場あり
- 都市ガス
- リフォーム済み
- 近くて便利!徒歩5分以内にある施設
- 3分
3分- 周辺施設を地図で確認
交通色がついているアイコンをクリックすると、本物件までの道順を見ることができます。
- 東釧路駅JR釧網本線、花咲線車10分(約4.3km)
- くしろバス 「豊美2丁目」停徒歩1分
物件概要
建物の階建 地上2階建 主要採光面 構造 木造 接道状況 一方 - 北側の公道に9.34m接道
都市計画区域 市街化区域 私道負担 なし 地目/地勢 宅地 地勢:平坦 国土法届出 不要 土地権利 所有権 用途地域 - 第1種低層住居専用地域(建ぺい率:50% / 容積率:80%)
引渡し 相談 現況 空き 取引態様 仲介 物件No 仲介手数料概算 53万7,900円(金額は概算です。正確な金額は不動産会社へお問合せ下さい) 修繕履歴 - 2025年7月頃に部分的にリフォームしています。施工内容:内装クロス床天井張り替え・キッチン・洗面化粧台交換・間取り変更
設備・特徴 - 整形地
- 閑静な住宅街
- 玄関フード
- デザイナーズ
- 全居室収納あり
- 都市ガス
- 灯油暖房
- モニタ付インターホン
備考 学区色がついているアイコンをクリックすると、本物件までの道順を見ることができます。
主な周辺施設色がついているアイコンをクリックすると、本物件までの道順を見ることができます。
-
ホームページはこちら
北海道知事 釧路(1) 第553号
センチュリー21 不動産専門(株)- 加入団体
- (公社)北海道宅地建物取引業協会
- 保証協会
- (公社)全国宅地建物取引業保証協会
- 公正取引協議会
- (一社)北海道不動産公正取引協議会
※連合隊は物件情報の精度向上に努めています:「物件情報に誤りがある」「成約済みである」などお気付きの点がございましたらこちらよりご連絡ください。
写真枚数:23枚
不動産売買・買取ならセンチュリー21 不動産専門株式会社へお任せください!
お客様とのご縁とお力添えのお陰で【2024年度お客様仲介取引ユニット件数255件】のお手伝いをさせて頂きました。 売りたい!買いたい!すべてご相談下さい‼