若草町 平屋
ここに注目!【若草町にかわいいが詰まった物件の登場】若草町に新着物件の登場!玄関ドア、キッチン、照明、クロス、至る所にかわいいが施されているお家になっております。そんなかわいい天窓から差し込む光は1日をエネルギッシュなものにしてくれることでしょう!床暖房も完備されており、冬もポカポカ気分、尚且つ外構工事済みで駐車場も広々と確保されております。1度内見の価値ありです!当社インスタグラムでは物件の新着情報を掲載していますので是非ご覧ください!
| 価格 |
1,750万円
|
|---|---|
| 建物面積 | 81.81m² (24.74坪) |
| 土地面積 | 198m² (59.89坪)(公簿) |
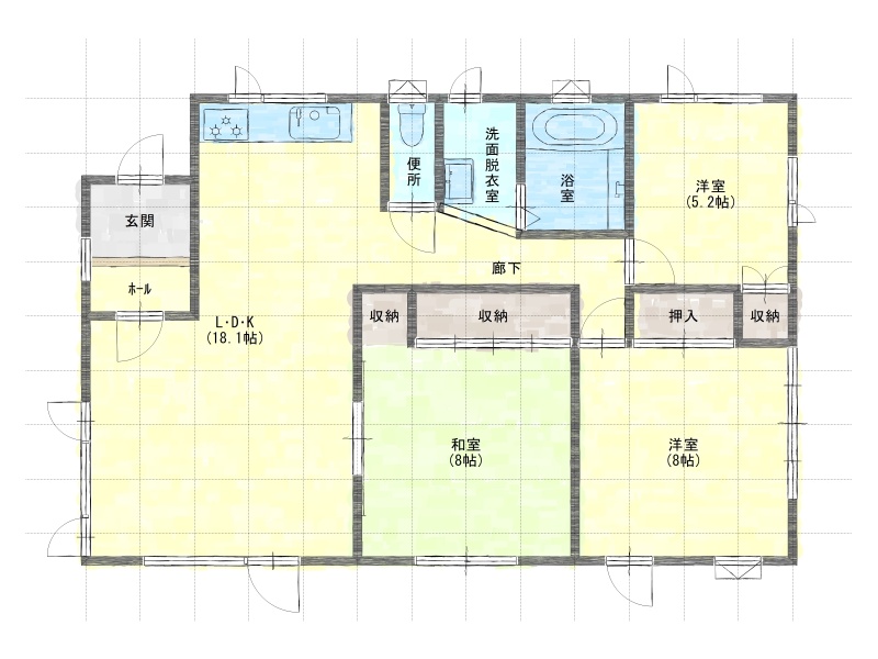
| 間取り | 3LDK1階:和室8帖 洋室8帖 洋室5.2帖 |
| 住所 | 北海道釧路市若草町7-11 |
| 交通 | 釧路駅(徒歩24分)道順を見る |
| 築年月 | 築29年(1996年1月) |
| 駐車場 |
あり 駐車可能台数:3台
|
販売状況、見学、詳細を知りたい方はこちら!
お電話の際は「連合隊の物件」とお伝えください。
情報掲載期限:あと30日(更新日 2025/12/26)
- 物件写真・概要
- 周辺地図
-
販売状況、見学、詳細を知りたい方はこちら!
おすすめポイント
- 駐車2台以上可
- 都市ガス
- 追い焚き風呂
- 平屋
- 近くて便利!徒歩5分以内にある施設
- 5分
5分- 周辺施設を地図で確認
交通色がついているアイコンをクリックすると、本物件までの道順を見ることができます。
物件概要
建物の階建 地上1階建 主要採光面 構造 木造 接道状況 一方 - 北西側幅36.00mの公道に7.00m接道 位置指定:無
都市計画区域 市街化区域 私道負担 なし 地目/地勢 宅地 地勢:平坦 国土法届出 不要 土地権利 所有権 用途地域 - 第1種住居地域(建ぺい率:60% / 容積率:200%)
引渡し 相談 現況 空き 取引態様 仲介 物件No 仲介手数料概算 64万3,500円(金額は概算です。正確な金額は不動産会社へお問合せ下さい) 設備・特徴 - シューズボックス
- 追い焚き風呂
- 温水洗浄トイレ
- コンロ3口以上
- 都市ガス
- 床暖房
- 灯油暖房
- 平屋
備考 学区色がついているアイコンをクリックすると、本物件までの道順を見ることができます。
主な周辺施設色がついているアイコンをクリックすると、本物件までの道順を見ることができます。
-
※連合隊は物件情報の精度向上に努めています:「物件情報に誤りがある」「成約済みである」などお気付きの点がございましたらこちらよりご連絡ください。
写真枚数:21枚
不動産売買・買取ならセンチュリー21 不動産専門株式会社へお任せください!
お客様とのご縁とお力添えのお陰で【2024年度お客様仲介取引ユニット件数255件】のお手伝いをさせて頂きました。 売りたい!買いたい!すべてご相談下さい‼