緑ヶ岡6丁目売り土地(解体更地渡し)
ここに注目!【建築条件なし】人気の緑ヶ岡高台で売り土地が出ました!解体更地渡し!道路の狭い緑ヶ岡6丁目で8m幅は貴重ですね!津波の心配の少ない高台でマイホーム新築にいかがでしょうか?新築プランや銀行融資のご相談も承っております!
この物件は、仲介手数料がかかりません。
この物件の売主は、情報を掲載している不動産会社です。仲介物件ではないため、仲介手数料は発生しません。
| 価格 |
500万円
坪単価:約5.2万円/坪
|
|---|---|
| 土地面積 | 315m² (95.28坪)(公簿) |
| 住所 | 北海道釧路市緑ケ岡6丁目14-17 |
| 交通 | 東釧路駅(徒歩23分)|「武佐3丁目」停(徒歩6分) |
| 現況 | 建物付き |
| 建築条件 | |
| 用途地域 |
|
販売状況、見学、詳細を知りたい方はこちら!
お電話の際は「連合隊の物件」とお伝えください。
情報掲載期限:あと27日(更新日 2026/3/12)
- 物件写真・概要
- 周辺地図
-
販売状況、見学、詳細を知りたい方はこちら!
おすすめポイント
- 上下水道
- 都市ガス
- 近くて便利!徒歩5分以内にある施設
- 5分
5分- 周辺施設を地図で確認
交通色がついているアイコンをクリックすると、本物件までの道順を見ることができます。
- 東釧路駅JR釧網本線、花咲線徒歩23分(約1.8km)
- 「武佐3丁目」停徒歩6分(約500m)
物件概要
販売区画数/
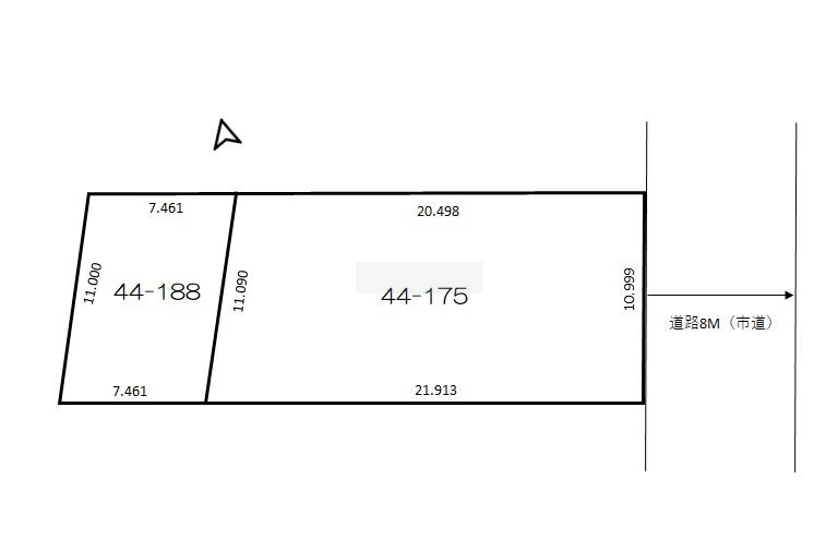
総区画数-/- 接道状況 一方 - 東側幅8.00mの公道に10.90m接道
都市計画区域 市街化区域 私道負担 なし 地目/地勢 雑種地 地勢:高台 国土法届出 不要 土地権利 所有権 用途地域 - 第1種低層住居専用地域(建ぺい率:50% / 容積率:80%)
引渡し 相談 現況 建物付き 取引態様 売主 物件No 仲介手数料概算 取引態様が売主なので仲介手数料は不要です 設備・特徴 - 古家付
- 高台に立地
- その他:都市ガス・公共下水・上下水道
備考 地勢:高台 ※土砂災害警戒区域に指定されています。敷地の西側一部分が法面となっております。 学区色がついているアイコンをクリックすると、本物件までの道順を見ることができます。
主な周辺施設色がついているアイコンをクリックすると、本物件までの道順を見ることができます。
-
ホームページはこちら
北海道知事 釧路(15) 第104号
ピタットハウス釧路店 (有)北陽商事〒085-0022
TEL:0154-68-5757(代表電話)
TEL:0154-65-6267(ピタットハウス釧路店管理センター)
FAX:0154-68-5781(賃貸・売買専用)
営業時間:10:00~18:00
定休日:毎週 日曜
- 加入団体
- (公社)北海道宅地建物取引業協会
- 保証協会
- (公社)全国宅地建物取引業保証協会
- 公正取引協議会
- (一社)北海道不動産公正取引協議会
※連合隊は物件情報の精度向上に努めています:「物件情報に誤りがある」「成約済みである」などお気付きの点がございましたらこちらよりご連絡ください。
写真枚数:9枚
青陵中学校まで355m
釧路若草郵便局まで689m
武佐小学校まで838m
ローソン 釧路緑ヶ岡店まで1336m
弊社は、昭和45年に創業し、この釧路の街で実績と信頼を積み重ねてきた「あなたの街の不動産やさん」です。
私どもは、この会社の伝統を守りつつ、今までに培ってきた経験を最大限に生かし時代の変化に合わせて革新し、常に新しさを取り入れ、お客様に信頼され、選ばれる 「あなたの街の不動産やさん」を目指して参ります。賃貸仲介部門は1月末から3月末まで無休で営業します。お気軽にお問合せくださいませ。全力でピタットお探しいたします!!