鳥取大通6丁目 高気密・高断熱・高気密住宅【手数料かかりません♪】
ここに注目!鳥取大通6丁目、築浅未入居の物件のご紹介です!!外観もモダンなデザインのこちらのおうちは、吹抜けとシースルー仕様のリビング階段で明るく開放的な空間を演出してくれます。キッチンも洗練されたデザインのアイランドキッチンを搭載。動線を遮ることなくお使い頂けます!キッチンと同デザインの背面収納もしっかりと完備。各お部屋はライフスタイルに合わせて間仕切り可能となっております。ランニングコスト面では経済的と人気の高いエコジョーズに、嬉しいコレモも設置されております。140mmのウレタン断熱の高断熱・高気密住宅で、「耐震等級3」の高耐震性と「断熱等級6」の高断熱の性能を併せもっています。お写真の家具も付いてきて、仲介手数料も掛かりません!是非一度ご覧下さい。お問合せは【ピタットハウス釧路店☎0154-68-5757】まで♪お待ちしております!!
| 価格 |
3,980万円
|
|---|---|
| 建物面積 | 112.61m² (34.06坪) |
| 土地面積 | 228.53m² (69.13坪)(公簿) |
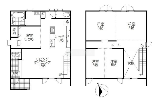
| 間取り | 4SLDKLDK21.0帖 S(納屋)5.2帖 洋室8.0帖 洋室8.0帖 洋室5.0帖 洋室5.0帖 |
| 住所 | 北海道釧路市鳥取大通6丁目6-7 |
| 交通 | 新富士駅(徒歩30分)|新大楽毛駅(徒歩53分)|釧路駅(徒歩65分)|「運輸支局(釧路市)」停(徒歩5分)|「運輸支局(釧路市)」停(徒歩3分) |
| 築年月 | 築3年(2023年3月) |
| 駐車場 |
あり 駐車可能台数:3台
|
販売状況、見学、詳細を知りたい方はこちら!
お電話の際は「連合隊の物件」とお伝えください。
情報掲載期限:あと29日(更新日 2026/3/31)
- 物件写真・概要
- 周辺地図
-
▼クリックで左の拡大画像が変わります。 すべての写真を拡大
販売状況、見学、詳細を知りたい方はこちら!
お電話の際は「連合隊の物件」とお伝えください。
0154-68-5757情報掲載期限:あと29日(更新日 2026/3/31)
おすすめポイント
- 即引渡し可
- 築5年以内
- 駐車2台以上可
- 都市ガス
- 追い焚き風呂
- 近くて便利!徒歩5分以内にある施設
- 5分
5分- 5分
5分- 5分
5分- 周辺施設を地図で確認
交通色がついているアイコンをクリックすると、本物件までの道順を見ることができます。
- 新富士駅JR根室本線徒歩30分(約2.4km)
- 新大楽毛駅JR根室本線徒歩53分(約4.2km)
- 釧路駅花咲線、JR釧網本線、JR根室本線徒歩65分(約5.2km)
- 「運輸支局(釧路市)」停徒歩5分(約300m)
- 「運輸支局(釧路市)」停徒歩3分(約200m)
物件概要
建物の階建 地上2階建 主要採光面 構造 木造 接道状況 一方 - 南西側幅8.00mの公道に10.90m接道
都市計画区域 市街化区域 私道負担 なし 地目/地勢 宅地 地勢:平坦 国土法届出 不要 土地権利 所有権 用途地域 - 第2種中高層住居専用地域(建ぺい率:60% / 容積率:200%)
引渡し 即時 現況 空き 取引態様 仲介 物件No 仲介手数料概算 仲介手数料は頂きません 設備・特徴 - ガスコンロ
- 温水洗浄トイレ
- シャワー付洗面化粧台
- 追い焚き風呂
- モニタ付インターホン
- 照明器具付
- デザイナーズ
- 日当り良好
- コンロ3口以上
- 食器洗乾燥機
- フローリング
- 吹き抜け
- シューズボックス
- 整形地
- 浴室1坪以上
- シューズインクローゼット
- その他:システムキッチン・ガスキッチン・都市ガス・ウォシュレット・シャンプードレッサー・追い焚き・公共下水・ガス暖房・TVインターホン・照明・室内洗濯機置場・上下水道・電気
備考 地勢:平坦 学区色がついているアイコンをクリックすると、本物件までの道順を見ることができます。
主な周辺施設色がついているアイコンをクリックすると、本物件までの道順を見ることができます。
-
ホームページはこちら
北海道知事 釧路(15) 第104号
ピタットハウス釧路店 (有)北陽商事〒085-0022
TEL:0154-68-5757(代表電話)
TEL:0154-65-6267(ピタットハウス釧路店管理センター)
FAX:0154-68-5781(賃貸・売買専用)
営業時間:10:00~18:00
定休日:毎週 日曜
- 加入団体
- (公社)北海道宅地建物取引業協会
- 保証協会
- (公社)全国宅地建物取引業保証協会
- 公正取引協議会
- (一社)北海道不動産公正取引協議会
※連合隊は物件情報の精度向上に努めています:「物件情報に誤りがある」「成約済みである」などお気付きの点がございましたらこちらよりご連絡ください。
写真枚数:29枚
駐車スペース広々
アイランド型キッチン
キッチン背面に周辺収納完備
エコジョーズ
シューズクローク
シースルー階段
2階8帖×2
1階5.2帖
2階5帖×2
吹抜から
鳥取西小学校まで362m
鳥取西中学校まで877m
ザ・ビッグ鳥取大通店まで984m
セブンイレブン 釧路鳥取大通5丁目店まで376m
弊社は、昭和45年に創業し、この釧路の街で実績と信頼を積み重ねてきた「あなたの街の不動産やさん」です。
私どもは、この会社の伝統を守りつつ、今までに培ってきた経験を最大限に生かし時代の変化に合わせて革新し、常に新しさを取り入れ、お客様に信頼され、選ばれる 「あなたの街の不動産やさん」を目指して参ります。賃貸仲介部門は1月末から3月末まで無休で営業します。お気軽にお問合せくださいませ。全力でピタットお探しいたします!!