厚岸町光栄小林ハイツ
ここに注目!1室家賃月36000円のアパートです。2戸入居中です!3室はリフォームしておりますが、1室はリフォームしておりません。 駐車場はアパート隣に車2台駐車可能ではありますが、狭いため近くの空き地を借りています。 下水道は接続していないため、簡易水栓のトイレです。定期的に汲取りが必要です。アパート投資に興味ある方、ご検討をお願いします!!
| 価格 |
350万円
利回り49.14%
満室時想定年収:172万円
|
|---|---|
| 住所 | 北海道厚岸郡厚岸町光栄174 |
| 交通 | 厚岸駅(徒歩50分)|くしろバス「光栄」停 (徒歩3分) |
| 築年月 | 築43年(1982年12月) |
| 構造 | 木造 |
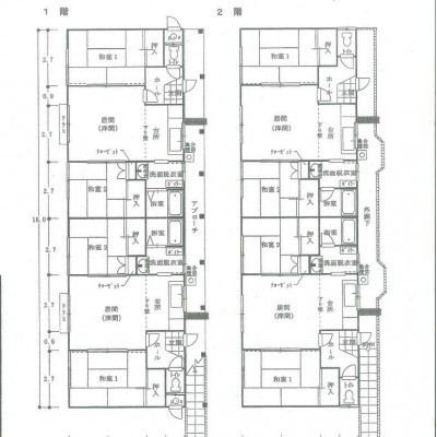
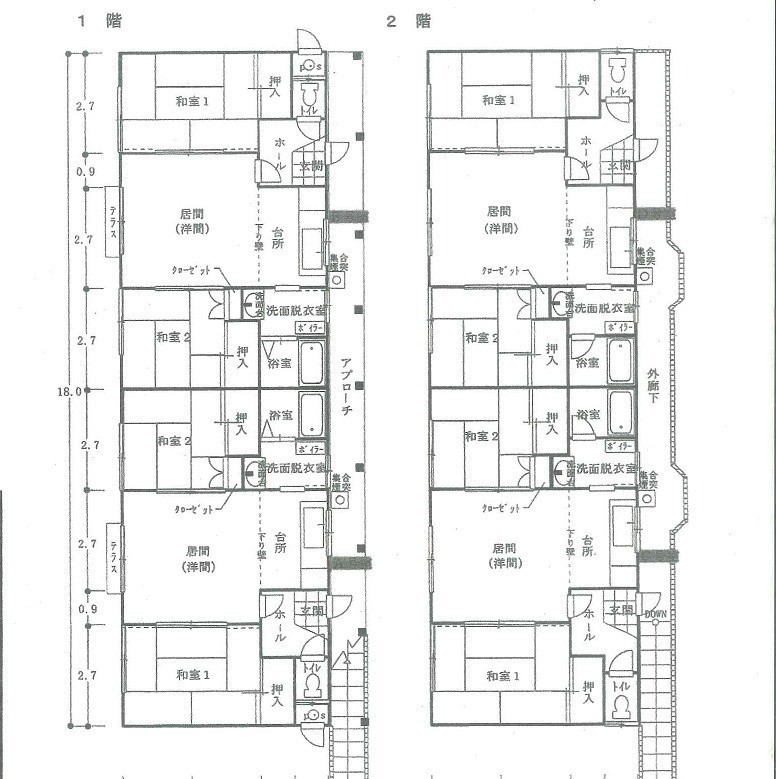
| 面積 | 建物:193.32m² (58.47坪)/ 土地:336m² (101.64坪)(公簿) 専有:48.6m² (14.7坪) |
| 現況 | 総戸数4戸中 2戸賃貸中 |
販売状況、見学、詳細を知りたい方はこちら!
お電話の際は「連合隊の物件」とお伝えください。
情報掲載期限:あと13日(更新日 2025/12/11)
- 物件写真・概要
- 周辺地図
-
販売状況、見学、詳細を知りたい方はこちら!
おすすめポイント
- 利回り49%超
- 土地100坪超
- 家賃保証
交通色がついているアイコンをクリックすると、本物件までの道順を見ることができます。
- 厚岸駅花咲線徒歩50分(約4km)
- くしろバス「光栄」停 徒歩3分
物件概要
建物の階建 地上2階建 間取り 2DK×4戸 駐車場 あり ※契約者負担料金:5,000円/台 駐車場台数:1台近隣の土地を駐車場として借りています6台程度駐車可能
接道状況 一方 - 南側幅8.00mの公道に16.00m接道 位置指定:無
都市計画区域 非線引区域 用途地域 - 第1種中高層住居専用地域(建ぺい率:60% / 容積率:150%)
私道負担 なし 地目/地勢 宅地 地勢:平坦 国土法届出 不要 土地権利 所有権 引渡し 即時 取引態様 仲介 物件No 仲介手数料概算 33万円(金額は概算です。正確な金額は不動産会社へお問合せ下さい) 修繕履歴 - 2020年9月頃に玄関をリフォームしています。施工内容:玄関ドア4ヶ所交換
- 2018年11月頃にリビング・キッチン・トイレをリフォームしています。施工内容:内装の改装3室
設備・特徴 - 家賃保証
- バス/トイレ別
備考 主な周辺施設色がついているアイコンをクリックすると、本物件までの道順を見ることができます。
-
ホームページはこちら
北海道知事 釧路(3) 第515号
Rスタジオ(株)- 加入団体
- (公社)北海道宅地建物取引業協会
- 保証協会
- (公社)全国宅地建物取引業保証協会
- 公正取引協議会
- (一社)北海道不動産公正取引協議会
※連合隊は物件情報の精度向上に努めています:「物件情報に誤りがある」「成約済みである」などお気付きの点がございましたらこちらよりご連絡ください。
写真枚数:20枚
B号室
厚岸町の不動産のご相談はRスタジオへ!
FP1級技能士、CFP、不動産コンサルティングマスターの有資格者が不動産有効活用、相続等のご相談をお受けしております。また、司法書士事務所も併設しておりますので登記についてもワンストップで対応できます。