南東角!釧路町東陽西1戸建住宅
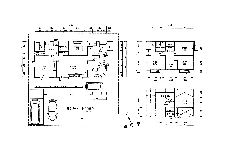
ここに注目!釧路町東陽西に、ご家族の夢を育む素敵な一戸建てが登場しました!広々とした5LDK、143.93㎡のゆとりある空間は、LDKが23.1帖もあり、ご家族みんなでくつろぐリビングタイムが目に浮かびますね。 くしろバス「あいぱーる」停まで徒歩3分とアクセス良好で、日々の通勤・通学にも便利です。さらに、スーパーやコンビニ、保育園が徒歩圏内に揃い、お買い物やお子様の送り迎えもスムーズにこなせるのが嬉しいポイント。 このお住まいは、オール電化でエコキュート、IHクッキングヒーター完備と、家計に優しく快適な暮らしをサポートする設備が充実しています。追い焚き機能付きのお風呂や温水洗浄トイレ、シャワー付洗面化粧台など、水回りも快適。収納も納戸や床下収納、シューズボックス、車庫付物置と豊富で、お部屋をすっきりと保てます。 南東向きの角地で日当たりも良く、広々としたお庭(10坪以上)ではガーデニングやBBQも楽しめそう。駐車場は3台分あり、来客時も安心です。二重サッシや天井高2.5m以上、バリアフリー設計など、住む人に優しい工夫も満載。 是非、一度ご覧になってみてください。ご連絡おまちしてま~す!
| 価格 |
1,650万円
|
|---|---|
| 建物面積 | 143.93m² (43.53坪) |
| 土地面積 | 298.71m² (90.35坪)(公簿) |
| 間取り | 5LDK1階:LDK23.1帖 洋室9.2帖 和室6帖 / 2階:洋室7.7帖 洋室6帖 洋室6帖 |
| 住所 | 北海道釧路郡釧路町東陽西1-2-1 |
| 交通 | くしろバス 「あいぱーる」停(徒歩3分) |
| 築年月 | 築27年(1998年11月) |
| 駐車場 |
あり 駐車可能台数:3台
|
販売状況、見学、詳細を知りたい方はこちら!
お電話の際は「連合隊の物件」とお伝えください。
情報掲載期限:あと20日(更新日 2025/12/26)
- 物件写真・概要
- 周辺地図
-
販売状況、見学、詳細を知りたい方はこちら!
おすすめポイント
- 駐車2台以上可
- 車庫あり
- 角地
- オール電化
- 追い焚き風呂
交通
- くしろバス 「あいぱーる」停徒歩3分
物件概要
建物の階建 地上2階建 主要採光面 南東 構造 木造 接道状況 角地 - 南側幅8.00mの公道に15.07m接道
- 東側幅7.00mの公道に15.37m接道
都市計画区域 市街化区域 私道負担 地目/地勢 宅地 地勢:平坦 国土法届出 土地権利 所有権 用途地域 - 第1種低層住居専用地域(建ぺい率:50% / 容積率:80%)
引渡し 相談 現況 空き 取引態様 仲介 物件No 仲介手数料概算 61万500円(金額は概算です。正確な金額は不動産会社へお問合せ下さい) 設備・特徴 - 角地
- 整形地
- 閑静な住宅街
- 車庫あり
- 物置
- 庭が広い(10坪以上)
- 玄関フード
- タイル貼り
- 日当り良好
- 照明器具付
- オール電化
- バリアフリー
- フローリング
- 吹き抜け
- 二重サッシ
- 天井高2.5m以上
- 納戸・トランクルーム
- 床下収納
- シューズボックス
- トイレ2ヶ所以上
- 温水洗浄トイレ
- シャワー付洗面化粧台
- 追い焚き風呂
- IHクッキングヒーター
- コンロ3口以上
- システムキッチン
- 電気温水器
- エコキュート
- モニタ付インターホン
- ブロードバンド回線(光ファイバー等の高速インターネット)
- CSアンテナ
備考 学区色がついているアイコンをクリックすると、本物件までの道順を見ることができます。
主な周辺施設色がついているアイコンをクリックすると、本物件までの道順を見ることができます。
-
北海道知事 釧路(14) 第153号
(有)佐藤産業〒084-0907
TEL:0154-51-5636
TEL:090-8274-3510
FAX:0154-52-5155
営業時間:9:00~18:00
定休日:毎週 日曜
- 加入団体
- (公社)北海道宅地建物取引業協会
- 保証協会
- (公社)全国宅地建物取引業保証協会
- 公正取引協議会
- (一社)北海道不動産公正取引協議会
※連合隊は物件情報の精度向上に努めています:「物件情報に誤りがある」「成約済みである」などお気付きの点がございましたらこちらよりご連絡ください。
写真枚数:27枚
釧路市・釧路町近郊の不動産のご相談は弊社へお任せください!
地場に密着した弊社スタッフが皆様のお悩みを解決! 不動産の売却・購入・賃貸・管理は勿論、それらに関連することでも お気軽にご相談ください!連絡お待ちしております。