貝塚4丁目南東角リフオーム済戸建住宅
ここに注目!JR武佐駅そばの貝塚4丁目エリアに日当たりVERY GOODの!南東角地の土地に!!全面リフオーム済の全室南向きのお部屋が!!! こんな立地条件のそろった戸建て住宅は早々ございません!建物も内外装はしっかりとリフオーム済みですので即入居可能で~す。 駐車も2台は駐車可能!駐車スペースは舗装も施してます。 色々ご紹介しましたが、まずは一度ご連絡・内覧してみてください。皆様のご連絡お待ちしております。🎶
| 価格 |
1,100万円
|
|---|---|
| 建物面積 | 89.65m² (27.11坪) |
| 土地面積 | 157m² (47.49坪)(公簿) |
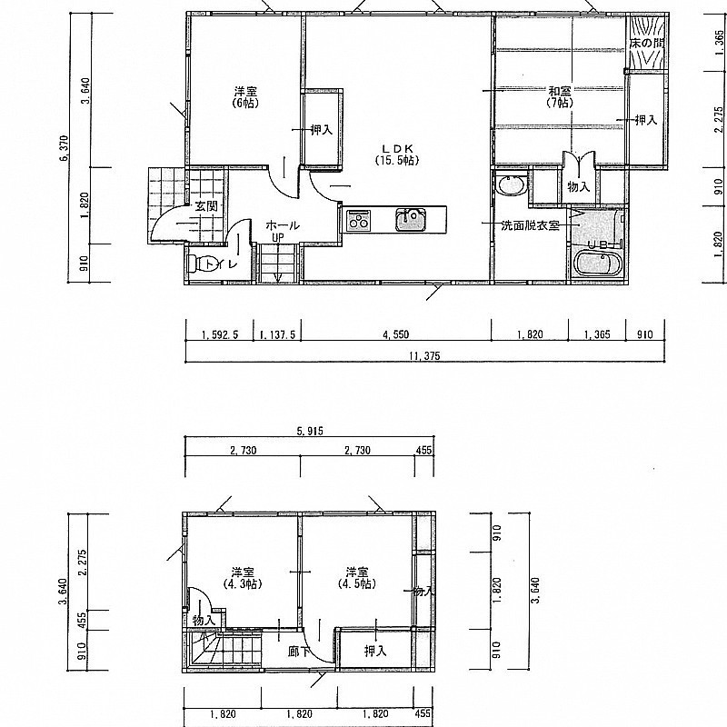
| 間取り | 4LDK1階:LDK15.5帖 洋室6帖 和室7帖 / 2階:洋室4.3帖 洋室4.5帖 |
| 住所 | 北海道釧路市貝塚4-7-15 |
| 交通 | くしろバス「貝塚2丁目」停 (徒歩6分) |
| 築年月 | 築53年(1972年6月) |
| 駐車場 |
あり 駐車可能台数:2台
|
販売状況、見学、詳細を知りたい方はこちら!
お電話の際は「連合隊の物件」とお伝えください。
情報掲載期限:あと23日(更新日 2026/2/17)
- 物件写真・概要
- 周辺地図
-
販売状況、見学、詳細を知りたい方はこちら!
おすすめポイント
- 即引渡し可
- 駐車2台以上可
- 角地
- 都市ガス
- 追い焚き風呂
- リフォーム済み
交通
- くしろバス「貝塚2丁目」停 徒歩6分
物件概要
建物の階建 地上2階建 主要採光面 南東 構造 木造 接道状況 角地 - 東側幅6.00mの公道に7.67m接道
- 南側幅6.00mの公道に16.03m接道
都市計画区域 市街化区域 私道負担 なし 地目/地勢 原野 地勢:平坦 国土法届出 不要 土地権利 所有権 用途地域 - 第1種住居地域(建ぺい率:60% / 容積率:200%)
引渡し 即時 現況 空き 取引態様 仲介 物件No 仲介手数料概算 42万9,000円(金額は概算です。正確な金額は不動産会社へお問合せ下さい) 修繕履歴 - 2025年5月頃に屋根・外壁・リビング・キッチン・トイレ・浴室をリフォームしています。施工内容:建物内外全面改修工事施工・外壁・断熱・サッシ・水周り・設備・内装等
設備・特徴 - 角地
- 整形地
- 閑静な住宅街
- 物置
- 玄関フード
- 日当り良好
- 照明器具付
- フローリング
- 二重サッシ
- 温水洗浄トイレ
- シャワー付洗面化粧台
- 追い焚き風呂
- 浴室に窓
- コンロ3口以上
- システムキッチン
- 都市ガス
- 灯油暖房
- モニタ付インターホン
備考 現在空室ですので、即内覧可能です。詳しくは090-8274-3510佐藤までお気軽に ごれんらくください。 学区色がついているアイコンをクリックすると、本物件までの道順を見ることができます。
主な周辺施設色がついているアイコンをクリックすると、本物件までの道順を見ることができます。
-
ホームページはこちら北海道知事 釧路(14) 第153号
(有)佐藤産業〒084-0907
TEL:0154-51-5636
TEL:090-8274-3510
FAX:0154-52-5155
営業時間:9:00~18:00
定休日:毎週 日曜
- 加入団体
- (公社)北海道宅地建物取引業協会
- 保証協会
- (公社)全国宅地建物取引業保証協会
- 公正取引協議会
- (一社)北海道不動産公正取引協議会
※連合隊は物件情報の精度向上に努めています:「物件情報に誤りがある」「成約済みである」などお気付きの点がございましたらこちらよりご連絡ください。
写真枚数:24枚
釧路市・釧路町近郊の不動産のご相談は弊社へお任せください!
地場に密着した弊社スタッフが皆様のお悩みを解決! 不動産の売却・購入・賃貸・管理は勿論、それらに関連することでも お気軽にご相談ください!連絡お待ちしております。