エステート新橋大通
ここに注目!4LDKの分譲マンションです! スーパー・コンビニ・ドラッグストア・病院・金融機関・バス停全てが徒歩5分圏内にあり、利便性がとても良い物件です! リフォームは必要になりますが、最上階・角部屋のため釧路市内をぐるっと見渡せる眺望もおすすめポイントです! 地元の方はもちろん長期滞在や移住の方にも最適です、涼しい釧路で暮らしてみませんか? 皆様からのお問い合わせ・内覧のご連絡をお待ちしております♪
| 価格 |
780万円
坪単価:約29.7万円/坪
管理費8,680円/月修繕積立金1万9,100円/月
|
|---|---|
| 間取・専有 |
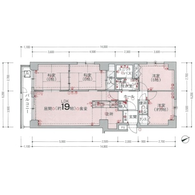
4LDK(86.79m²)└ 7階:洋室6帖 / その他:LDK19帖 和室6帖 和室6帖 洋室6帖
|
| 住所 | 北海道釧路市新橋大通3-2-8 |
| 交通 | 釧路駅(車で8分)|くしろバス 「新橋大通4丁目」停(徒歩2分)道順を見る |
| 築年月 | 築37年(1988年10月) |
| 駐車場 |
あり (5,000円/台) 駐車可能台数:1台
空確認が必要です |
【WEB面談可】
販売状況、見学、詳細を知りたい方はこちら!
お電話の際は「連合隊の物件」とお伝えください。
情報掲載期限:あと20日(更新日 2025/11/30)
- 物件写真・概要
- 周辺地図
-
【WEB面談可】
販売状況、見学、詳細を知りたい方はこちら!おすすめポイント
- 駐車場あり
- 角部屋
- 2階以上
- 最上階
- エレベーター
- 複数路線利用可
- 近くて便利!徒歩5分以内にある施設
- 5分
5分- 2分
2分- 4分
4分- 4分
4分- 周辺施設を地図で確認
交通色がついているアイコンをクリックすると、本物件までの道順を見ることができます。
- 釧路駅花咲線、JR釧網本線、JR根室本線車8分(約2.7km)
- くしろバス 「新橋大通4丁目」停徒歩2分
物件概要
所在階/建物の階建 7階(701) / 地上7階建 総戸数 36戸 主要採光面 南西 構造 鉄筋コンクリート(RC)造 バルコニー あり(6.49m²)土地権利 所有権 引渡し 相談 現況 空き 管理人 日勤 管理形態 全部委託 管理組合 有 施工業者 橋本建設株式会社 取引態様 仲介 物件No 仲介手数料概算 33万円(金額は概算です。正確な金額は不動産会社へお問合せ下さい) 設備・特徴 - 複数路線利用可
- エレベーター
- 駐輪場
- 最上階
- 角部屋
- 日当り良好
- 室内洗濯機置場
- 二重サッシ
- シューズボックス
- コンロ3口以上
- システムキッチン
- LPガス
- ガス暖房
- 宅配BOX
備考 学校区:青葉小学校・北中学校 ※中学校は景雲も選択可 学区色がついているアイコンをクリックすると、本物件までの道順を見ることができます。
主な周辺施設色がついているアイコンをクリックすると、本物件までの道順を見ることができます。
-
ホームページはこちら
北海道知事 釧路(7) 第418号
エイブルネットワーク釧路駅前店 (株)セムス 【WEB面談可】- 加入団体
- (公財)日本賃貸住宅管理協会、全国賃貸管理ビジネス協会
- 保証協会
- (公社)全国宅地建物取引業保証協会
※連合隊は物件情報の精度向上に努めています:「物件情報に誤りがある」「成約済みである」などお気付きの点がございましたらこちらよりご連絡ください。
写真枚数:11枚
外観
外観
エントランス
エントランス
エレベーター
眺望
スーパー
ドラッグストア
金融機関
小学校
お部屋探しの窓口! 豊富な物件 親切な対応 お気軽にご相談下さい!