北見市山下町中古住宅
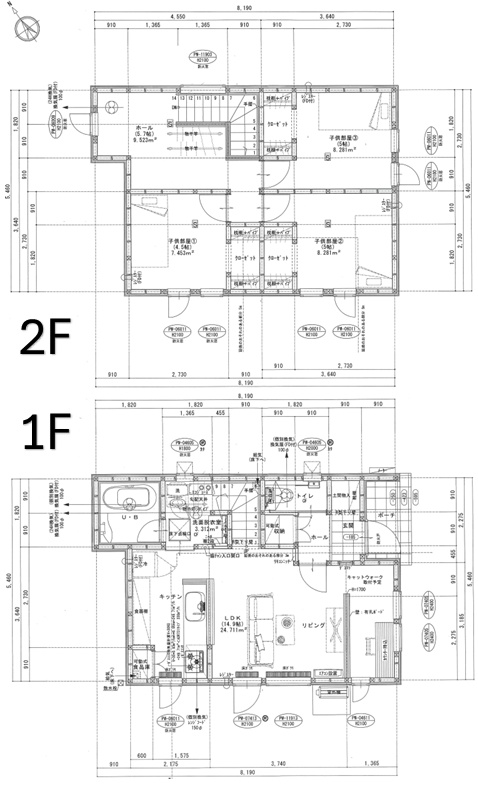
ここに注目!北見市山下町に、新しい暮らしを始めるご家族にぴったりの築浅中古住宅が登場!2023年2月築の木造2階建て3LDK。南東向きの角地で、陽光が降り注ぐ明るい空間が魅力です。広々とした14.9帖のLDKは、ご家族の団らんの時間をゆったりと過ごせる設計。ウォークインクローゼットや全居室収納で収納も豊富です。 駐車場は嬉しい4台分確保されており、来客時も安心です。周辺は生活利便施設が充実。認定こども園めぐみまで徒歩2分、ツルハドラッグ徒歩4分、ローソン徒歩5分、スーパーアークスまで徒歩7分と、毎日のお買い物やお子様の送り迎えにも便利な立地です。 システムキッチン、温水洗浄トイレ、シャワー付洗面化粧台、エコジョーズなど、快適な暮らしをサポートする設備も整っています。2026年4月1日以降のお引き渡しとなります。新しい住まいで、素敵な思い出を育んでみませんか?ぜひ現地でその魅力をご体感ください。お気軽にお問い合わせをお待ちしております。
| 価格 |
2,400万円
|
|---|---|
| 建物面積 | 80.73m² (24.42坪) |
| 土地面積 | 134.23m² (40.6坪)(公簿) |
| 間取り | 3LDK1階:LDK14.9帖 / 2階:洋室5帖 洋室5帖 洋室4.5帖 |
| 住所 | 北海道北見市山下町4丁目1番6号 |
| 交通 | 北見駅(徒歩26分)|北見バス 「山下町バス停」停(徒歩3分)道順を見る |
| 築年月 | 築3年(2023年2月) |
| 駐車場 |
あり 駐車可能台数:4台
|
販売状況、見学、詳細を知りたい方はこちら!
お電話の際は「連合隊の物件」とお伝えください。
情報掲載期限:あと30日(更新日 2026/2/11)
- 物件写真・概要
- 周辺地図
-
販売状況、見学、詳細を知りたい方はこちら!
おすすめポイント
- 築5年以内
- 駐車2台以上可
- 角地
- 都市ガス
- 近くて便利!徒歩5分以内にある施設
- 5分
5分- 4分
4分- 2分
2分- 周辺施設を地図で確認
交通色がついているアイコンをクリックすると、本物件までの道順を見ることができます。
- 北見駅JR石北本線徒歩26分(約2.1km)
- 北見バス 「山下町バス停」停徒歩3分(約220m)
物件概要
建物の階建 地上2階建 主要採光面 南東 構造 木造 接道状況 角地 都市計画区域 市街化区域 私道負担 地目/地勢 宅地 地勢:平坦 国土法届出 土地権利 所有権 用途地域 - 近隣商業地域(建ぺい率:80% / 容積率:300%)
引渡し 相談(2026年4月1日から空き家予定) 現況 入居中 施工業者 株式会社ウッディークラフト 取引態様 仲介 物件No 仲介手数料概算 85万8,000円(金額は概算です。正確な金額は不動産会社へお問合せ下さい) 設備・特徴 - 角地
- 日当り良好
- 照明器具付
- 温水洗浄トイレ
- シャワー付洗面化粧台
- モニタ付インターホン
- システムキッチン
- 全居室収納あり
- ウォークインクローゼット
- シューズボックス
- 都市ガス
- エコジョーズ
備考 学区色がついているアイコンをクリックすると、本物件までの道順を見ることができます。
主な周辺施設色がついているアイコンをクリックすると、本物件までの道順を見ることができます。
-
※連合隊は物件情報の精度向上に努めています:「物件情報に誤りがある」「成約済みである」などお気付きの点がございましたらこちらよりご連絡ください。
写真枚数:23枚
創業30年の建築不動産会社です。釧路本社・札幌支店があります。
不動産売買・賃貸の仲介を中心として、インテリアやリフォームのプラン設計など住まいに関わる様々なニーズに応えています。特に中古住宅のリフォーム実績には定評があります。涼しい夏の長期滞在事業も展開中。