文苑2丁目平家中古住宅
ここに注目!人気の文苑エリアに佇む、暮らしやすい平家中古住宅のご紹介です。 くしろバス「文苑2丁目」停まで徒歩6分。通勤・通学にも便利な立地が魅力です。 間取りは広々とした24帖のLDKと8.2帖の洋室を備えた1LDK。ゆとりのある空間は、お一人様はもちろん、カップルにもおすすめです。 お車2台分の駐車スペースを確保しており、来客時も安心。敷地には季節物やレジャー用品の収納に便利な物置も備え付けられています。 周辺環境も充実しています。ショッピングセンター「フレスポ釧路文苑」へ徒歩6分、コンビニまで徒歩7分と、日々のお買い物に困りません。文苑中央公園も徒歩8分で、気軽に自然に触れることができます。 静かで落ち着いた住宅街で、新しい生活を始めませんか? 詳細についてはお気軽にお問い合わせください。現地ご案内も承っております。
| 価格 |
1,100万円
|
|---|---|
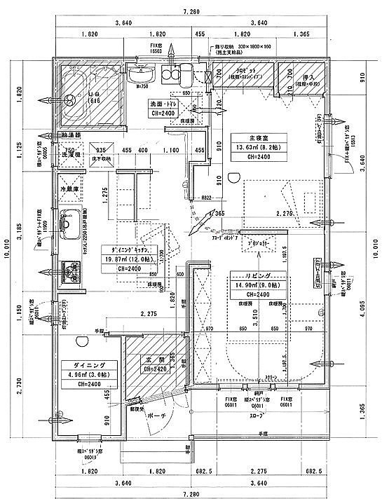
| 建物面積 | 65.83m² (19.91坪) |
| 土地面積 | 177.27m² (53.62坪)(公簿) |
| 間取り | 1LDK1階:L9帖 D3帖 K12帖 洋室8.2帖 |
| 住所 | 北海道釧路市文苑2丁目33番7号 |
| 交通 | くしろバス「文苑2丁目」停 (徒歩6分) |
| 築年月 | 築18年(2007年9月) |
| 駐車場 |
あり 駐車可能台数:2台
|
販売状況、見学、詳細を知りたい方はこちら!
お電話の際は「連合隊の物件」とお伝えください。
情報掲載期限:あと18日(更新日 2025/12/9)
- 物件写真・概要
- 周辺地図
-
販売状況、見学、詳細を知りたい方はこちら!
おすすめポイント
- 駐車2台以上可
交通
- くしろバス「文苑2丁目」停 徒歩6分(約480m)
物件概要
建物の階建 主要採光面 東 構造 木造 接道状況 都市計画区域 市街化区域 私道負担 地目/地勢 宅地 地勢:平坦 国土法届出 土地権利 所有権 用途地域 - 第1種低層住居専用地域(建ぺい率:50% / 容積率:80%)
引渡し 相談 現況 空き 取引態様 仲介 物件No 仲介手数料概算 42万9,000円(金額は概算です。正確な金額は不動産会社へお問合せ下さい) 設備・特徴 - 閑静な住宅街
- 物置
備考 学区色がついているアイコンをクリックすると、本物件までの道順を見ることができます。
主な周辺施設色がついているアイコンをクリックすると、本物件までの道順を見ることができます。
-
※連合隊は物件情報の精度向上に努めています:「物件情報に誤りがある」「成約済みである」などお気付きの点がございましたらこちらよりご連絡ください。
写真枚数:17枚
創業30年の建築不動産会社です。釧路本社・札幌支店があります。
不動産売買・賃貸の仲介を中心として、インテリアやリフォームのプラン設計など住まいに関わる様々なニーズに応えています。特に中古住宅のリフォーム実績には定評があります。涼しい夏の長期滞在事業も展開中。