ハイセレールハピネス
ここに注目!軽量鉄骨造3LDK4戸入り収益物件!現在満室!表面利回13.47%!駐車場は各戸2台分計8台分確保しています!灯油暖房、灯油給湯、追炊き付きお風呂!
| 価格 |
2,200万円
利回り13.47%
満室時想定年収:296万4,000円
|
|---|---|
| 住所 | 北海道釧路市新富士町2丁目10-16 |
| 交通 | 新富士駅(徒歩9分) |
| 築年月 | 築28年(1997年10月) |
| 構造 | 軽量鉄骨造 |
| 面積 | 建物:316.3m² (95.68坪)/ 土地:379.03m² (114.65坪)(公簿) 専有:316.3m² (95.68坪) |
| 現況 | 現在満室(総戸数4戸) |
【WEB面談可】
販売状況、見学、詳細を知りたい方はこちら!
お電話の際は「連合隊の物件」とお伝えください。
新着 情報掲載期限:あと29日(更新日 2026/2/4)
- 物件写真・概要
- 周辺地図
-
【WEB面談可】
販売状況、見学、詳細を知りたい方はこちら!おすすめポイント
- 現在満室
- 利回り13%超
- 土地100坪超
交通色がついているアイコンをクリックすると、本物件までの道順を見ることができます。
物件概要
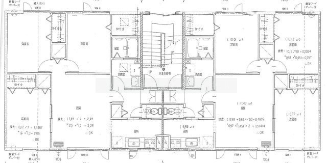
建物の階建 地上2階建 間取り 3LDK 駐車場 接道状況 一方 - 北東側幅11.00mの公道に22.30m接道
都市計画区域 市街化区域 用途地域 - 工業地域(建ぺい率:60% / 容積率:200%)
私道負担 なし 地目/地勢 宅地 地勢:平坦 国土法届出 不要 土地権利 所有権 引渡し 相談 建築確認番号 H09証建釧路000494 取引態様 仲介 物件No 3881 仲介手数料概算 79万2,000円(金額は概算です。正確な金額は不動産会社へお問合せ下さい) 設備・特徴 - 照明器具付
- その他:都市ガス・公共下水・照明・物置・上下水道・電気
備考 一棟売り・収益物件 地勢:平坦 隣接地からの越境がありますが現状渡し。契約不適合責任免責。 主な周辺施設色がついているアイコンをクリックすると、本物件までの道順を見ることができます。
-
ホームページはこちら
北海道知事 釧路(4) 第506号
ビッグFC釧路店 (株)ウインドヒル 【WEB面談可】- 加入団体
- (公社)全日本不動産協会、(公財)日本賃貸住宅管理協会、全国賃貸管理ビジネス協会
- 保証協会
- (公社)不動産保証協会
- 公正取引協議会
- (一社)北海道不動産公正取引協議会
※連合隊は物件情報の精度向上に努めています:「物件情報に誤りがある」「成約済みである」などお気付きの点がございましたらこちらよりご連絡ください。
写真枚数:16枚
釧路市立新陽小学校まで891m














釧路市近郊の住まい探しなら不動産のビッグ釧路店にお任せください!
☆プライバシーに配慮したブースでお部屋探しをお手伝いさせて頂きます☆ 新型コロナ対策として非接触型体温計やアクリル板の設置、手指の消毒液をご用意して皆様のお越しをお待ちしております