新栄町事業用1棟売り物件
ここに注目!土地は約137.97坪(分筆後予定面積)!駐車場8~10台分!以前はマンスリーで賃貸していた家具付き1棟売り物件!病院や金融機関などが近隣にあり利便性の良い立地です。事務所や店舗、賃貸アパートなど利用用途色々!現在、駐車場10台分を月額5.5万円で賃貸中。(1か月前予告で解約可)。
| 価格 |
2,950万円
|
|---|---|
| 建物面積 | 259.17m² (78.39坪) |
| 土地面積 | 456.1m² (137.97坪) |
| 間取・専有 |
その他(259.17m²)
|
| 住所 | 北海道釧路市新栄町17-16 |
| 交通 | 釧路駅(徒歩24分)|「共栄大通7丁目」停(徒歩2分) |
| 築年月 | 築31年(1994年10月) |
| 駐車場 |
あり 駐車可能台数:10台
|
【WEB面談可】
販売状況、見学、詳細を知りたい方はこちら!
お電話の際は「連合隊の物件」とお伝えください。
情報掲載期限:あと27日(更新日 2026/4/21)
- 物件写真・概要
- 周辺地図
-
【WEB面談可】
販売状況、見学、詳細を知りたい方はこちら!おすすめポイント
- 即引渡し可
- 駐車2台以上可
交通色がついているアイコンをクリックすると、本物件までの道順を見ることができます。
- 釧路駅花咲線、JR釧網本線、JR根室本線徒歩24分(約1.9km)
- 「共栄大通7丁目」停徒歩2分(約200m)
物件概要
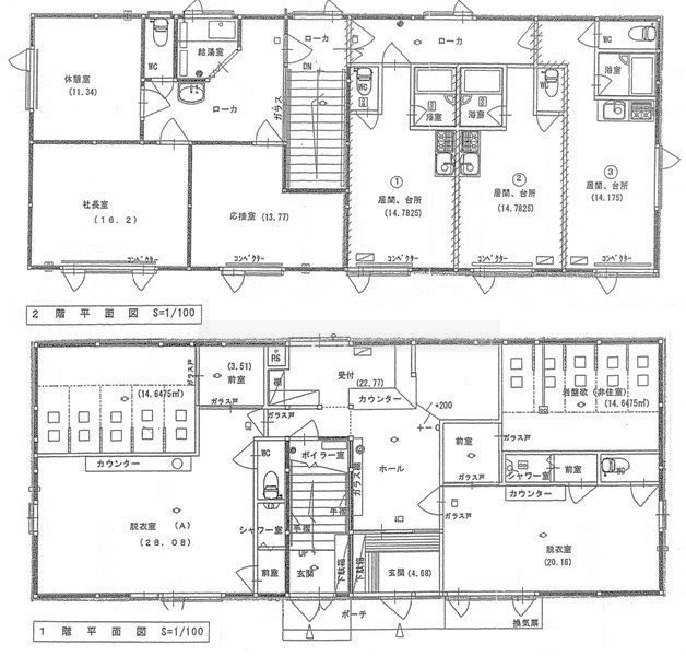
所在階/建物の階建 地上2階建 総戸数 8戸 主要採光面 構造 木造 販売区画数/
総区画数-/全8区画 建築条件 接道状況 一方 - 北東側幅11.00mの公道に20.90m接道
都市計画区域 市街化区域 私道負担 なし 地目/地勢 宅地 地勢:平坦 国土法届出 不要 土地権利 所有権 用途地域 - 第1種住居地域(建ぺい率:60% / 容積率:200%)
引渡し 即時 現況 空き 管理人 管理形態 管理組合 指定なし 取引態様 仲介 物件No 31031 仲介手数料概算 94万5,000円(金額は概算です。正確な金額は不動産会社へお問合せ下さい) 設備・特徴 - 照明器具付
- その他:LPガス・公共下水・照明・上下水道・電気
備考 一棟売り 地勢:平坦 平成17年から平成25年頃まで岩盤浴場となっておりましたが、その後、業態変更し令和2年8月までマンスリーで賃貸していた物件です。運営時月額収入585,000円。平成17年の大規模リフォーム時に申請した主要用途は「公衆浴場」になっていますが登記の種類は「事務所・倉庫」のままとなっており売主で更正登記は行いません。 主な周辺施設色がついているアイコンをクリックすると、本物件までの道順を見ることができます。
-
ホームページはこちら
北海道知事 釧路(4) 第506号
ビッグFC釧路店 (株)ウインドヒル 【WEB面談可】- 加入団体
- (公社)全日本不動産協会、(公財)日本賃貸住宅管理協会、全国賃貸管理ビジネス協会
- 保証協会
- (公社)不動産保証協会
- 公正取引協議会
- (一社)北海道不動産公正取引協議会
※連合隊は物件情報の精度向上に努めています:「物件情報に誤りがある」「成約済みである」などお気付きの点がございましたらこちらよりご連絡ください。
写真枚数:22枚














釧路市近郊の住まい探しなら不動産のビッグ釧路店にお任せください!
☆プライバシーに配慮したブースでお部屋探しをお手伝いさせて頂きます☆ 新型コロナ対策として非接触型体温計やアクリル板の設置、手指の消毒液をご用意して皆様のお越しをお待ちしております