鳥取大通3丁目売店舗
ここに注目!国道に面した多目的な建物です!店舗・事務所・作業所などにいかがでしょうか!
| 価格 |
1,300万円
|
|---|---|
| 建物面積 | 259.17m² (78.39坪) |
| 土地面積 | 329.98m² (99.81坪)(公簿) |
| 住所 | 北海道釧路市鳥取大通3丁目21-360 |
| 交通 | 釧路駅(徒歩50分)|「鳥取神社前」停(徒歩1分) |
| 築年月 | 築43年(1982年8月) |
| 駐車場 |
あり
|
| 用途地域 |
|
【WEB面談可】
販売状況、見学、詳細を知りたい方はこちら!
お電話の際は「連合隊の物件」とお伝えください。
情報掲載期限:あと26日(更新日 2025/12/17)
- 物件写真・概要
- 周辺地図
-
【WEB面談可】
販売状況、見学、詳細を知りたい方はこちら!おすすめポイント
- 駐車場あり
交通色がついているアイコンをクリックすると、本物件までの道順を見ることができます。
- 釧路駅花咲線、JR釧網本線、JR根室本線徒歩50分(約4km)
- 「鳥取神社前」停徒歩1分
物件概要
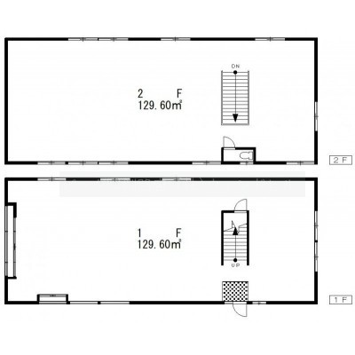
建物の階建 地上2階建 総戸数 1戸 主要採光面 構造 軽量鉄骨造 居抜き情報 接道状況 一方 - 南側幅22.00mの公道に13.10m接道
都市計画区域 市街化区域 私道負担 なし 地目/地勢 原野 地勢:平坦 国土法届出 不要 土地権利 用途地域 - 近隣商業地域(建ぺい率:80% / 容積率:200%)
引渡し 相談 現況 空き 取引態様 仲介 物件No 5107 仲介手数料概算 49万5,000円(金額は概算です。正確な金額は不動産会社へお問合せ下さい) 設備・特徴 備考 一棟売り 地勢:平坦 契約不適合責任免責。現状渡し。準防火地域。 主な周辺施設色がついているアイコンをクリックすると、本物件までの道順を見ることができます。
-
ホームページはこちら
北海道知事 釧路(4) 第506号
ビッグFC釧路店 (株)ウインドヒル 【WEB面談可】- 加入団体
- (公社)全日本不動産協会、(公財)日本賃貸住宅管理協会、全国賃貸管理ビジネス協会
- 保証協会
- (公社)不動産保証協会
- 公正取引協議会
- (一社)北海道不動産公正取引協議会
※連合隊は物件情報の精度向上に努めています:「物件情報に誤りがある」「成約済みである」などお気付きの点がございましたらこちらよりご連絡ください。
写真枚数:12枚
釧路市立鳥取小学校まで398m
釧路市立鳥取中学校まで1241m














釧路市近郊の住まい探しなら不動産のビッグ釧路店にお任せください!
☆プライバシーに配慮したブースでお部屋探しをお手伝いさせて頂きます☆ 新型コロナ対策として非接触型体温計やアクリル板の設置、手指の消毒液をご用意して皆様のお越しをお待ちしております