住吉2丁目76番18借家
ここに注目!【価格改定650万円→600万円】旧価格設定日令和7年7月14日、新価格設定日令和8年2月4日。月額家賃6.5万円で賃貸中!物件は2019年11月中旬から築47年の2階建て古家を基礎だけ残して解体し、平家にリノベーションした物件です!当時、柱、土台、窓、暖房パネルは一部古材を使用していますがほとんど新品にしました!給湯・暖房はエコジョーズ!2019年12月工事完了!2020年2月中旬に脱衣室に洗濯物干しポール 追加設置、クローゼット内、トイレに棚を追加設置しました!2020年4月中旬、各居室内装壁を一面をクロスから板貼りに変更して更にオシャレになりました!内観写真は2020年撮影のものです。
| 価格 |
600万円
利回り13%
満室時想定年収:78万円
|
|---|---|
| 住所 | 北海道釧路市住吉2丁目12-24 |
| 交通 | 釧路駅(徒歩27分)|「住吉郵便局」停(徒歩8分)|「住吉郵便局」停(徒歩8分) |
| 築年月 | 築53年(1972年12月) |
| 構造 | 木造 |
| 面積 | 建物:48.02m² (14.52坪)/ 土地:138.51m² (41.89坪)(公簿)※セットバック済み 専有:最小48.02m² (14.52坪)~最大48.2m² (14.58坪) |
| 現況 | 賃貸中 |
【WEB面談可】
販売状況、見学、詳細を知りたい方はこちら!
お電話の際は「連合隊の物件」とお伝えください。
情報掲載期限:あと29日(更新日 2026/3/10)
- 物件写真・概要
- 周辺地図
-
【WEB面談可】
販売状況、見学、詳細を知りたい方はこちら!おすすめポイント
- 賃貸中
- 利回り12%超
- 駐車場あり
交通色がついているアイコンをクリックすると、本物件までの道順を見ることができます。
- 釧路駅花咲線、JR釧網本線、JR根室本線徒歩27分(約2.2km)
- 「住吉郵便局」停徒歩8分(約600m)
- 「住吉郵便局」停徒歩8分
物件概要
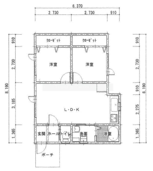
建物の階建 地上1階建 構造 木造 間取り 2LDKLDK11.7帖 洋室4.5帖 洋室4.5帖 駐車場 あり 駐車場台数:1台接道状況 一方 - 一方 東側8.4m 私道
都市計画区域 市街化区域 用途地域 - 第1種住居地域(建ぺい率:60% / 容積率:200%)
私道負担 あり(私道面積:6.75m²) 地目/地勢 宅地 地勢:高台 国土法届出 不要 土地権利 所有権 引渡し 相談 取引態様 仲介 物件No 2539 仲介手数料概算 33万円(金額は概算です。正確な金額は不動産会社へお問合せ下さい) 設備・特徴 - ガスコンロ
- バス/トイレ別
- 温水洗浄トイレ
- シャワー付洗面化粧台
- モニタ付インターホン
- 照明器具付
- その他:システムキッチン・ガスキッチン・都市ガス・トイレ/バス別・ウォシュレット・シャンプードレッサー・公共下水・ガス暖房・TVインターホン・照明・室内洗濯機置場・上下水道・電気
備考 収益物件 地勢:高台 準防火地域。敷地内駐車場は1台です。本物件の給水管は第三者敷地を経由して埋設されています。敷地の西側は高低差があり、使用できない敷地面積が約9.9㎡(約2.99坪)あります。 主な周辺施設色がついているアイコンをクリックすると、本物件までの道順を見ることができます。
-
ホームページはこちら
北海道知事 釧路(4) 第506号
ビッグFC釧路店 (株)ウインドヒル 【WEB面談可】- 加入団体
- (公社)全日本不動産協会、(公財)日本賃貸住宅管理協会、全国賃貸管理ビジネス協会
- 保証協会
- (公社)不動産保証協会
- 公正取引協議会
- (一社)北海道不動産公正取引協議会
※連合隊は物件情報の精度向上に努めています:「物件情報に誤りがある」「成約済みである」などお気付きの点がございましたらこちらよりご連絡ください。
写真枚数:25枚














釧路市近郊の住まい探しなら不動産のビッグ釧路店にお任せください!
☆プライバシーに配慮したブースでお部屋探しをお手伝いさせて頂きます☆ 新型コロナ対策として非接触型体温計やアクリル板の設置、手指の消毒液をご用意して皆様のお越しをお待ちしております