若竹町 売ビル「クレインビル」
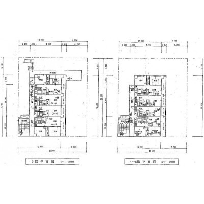
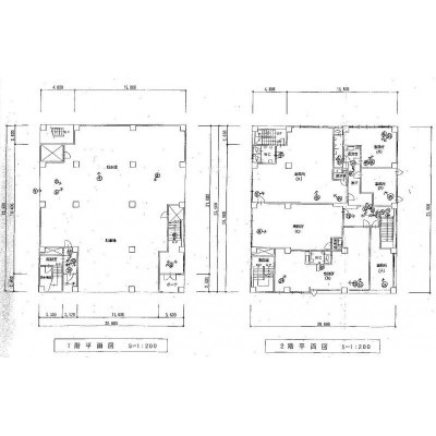
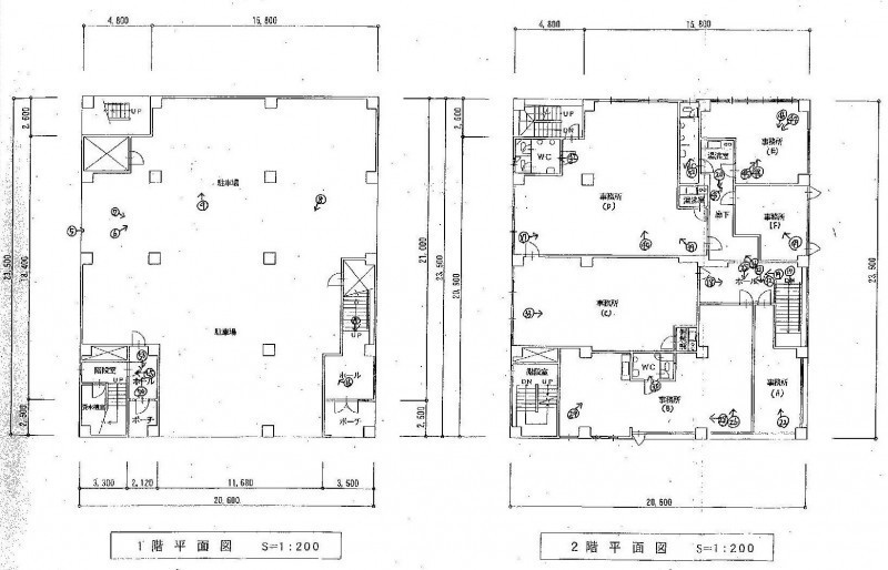
ここに注目!1階部分は駐車場、2階部分は事務所、3~5階はマンションとなっております。 満室時想定収入年間約1,100万円。※概算 現在事務所含め4戸入居となっております。(事務所:6戸、マンション12戸) ※告知事項有
| 価格 |
1,100万円
|
|---|---|
| 建物面積 | 1505.91m² (455.53坪) |
| 土地面積 | 745.74m² (225.58坪)(公簿) |
| 間取・専有 | |
| 住所 | 北海道釧路市若竹町12-1 |
| 交通 | くしろバス「若竹町2番地」停 (徒歩1分) |
| 築年月 | 築43年(1982年3月) |
| 駐車場 |
販売状況、見学、詳細を知りたい方はこちら!
お電話の際は「連合隊の物件」とお伝えください。
情報掲載期限:あと27日(更新日 2025/12/22)
- 物件写真・概要
- 周辺地図
-
販売状況、見学、詳細を知りたい方はこちら!
おすすめポイント
- 事務所付
交通
- くしろバス「若竹町2番地」停 徒歩1分
物件概要
所在階/建物の階建 地上5階建 総戸数 18戸 主要採光面 南 構造 鉄筋コンクリート(RC)造 販売区画数/
総区画数-/- 建築条件 なし 接道状況 角地 - 南側幅22.00mの公道に29.50m接道
- 東側幅15.00mの公道に21.70m接道
都市計画区域 市街化区域 私道負担 なし 地目/地勢 宅地 地勢:平坦 国土法届出 不要 土地権利 所有権 用途地域 - 第1種住居地域(建ぺい率:60% / 容積率:200%)
引渡し 相談(現状有姿、契約不適合免責) 現況 管理人 巡回 管理形態 一部委託 管理組合 指定なし 取引態様 仲介 物件No 仲介手数料概算 56万1,000円(金額は概算です。正確な金額は不動産会社へお問合せ下さい) 設備・特徴 - 角地
- 屋内駐車場
- 物置
- 照明器具付
- フローリング
- 事務所付
備考 -
※連合隊は物件情報の精度向上に努めています:「物件情報に誤りがある」「成約済みである」などお気付きの点がございましたらこちらよりご連絡ください。
写真枚数:6枚
土地・マンション・一戸建て・駐車場・事務所をお探しならエッセ。