釧路市鳥取大通5丁目1売地
ここに注目!釧路市鳥取大通に、広々約109坪のゆとりの売地が誕生! くしろバス・阿寒バス「鳥取大通5丁目」停まで徒歩5分とアクセスも良好。毎日の通勤・通学、お出かけにも便利な立地です。 南側公道に接道する平坦な整形地は、日当たりも良く、ご希望のマイホーム建築にふさわしい条件が揃っています。都市ガス、上下水道、電気といった生活インフラも整備済みで、建築プランも立てやすいでしょう。 周辺には、ツルハドラッグ(徒歩5分)、セブンイレブン(徒歩5分)、ジョイフルタウン釧路(徒歩4分)、釧路第一病院(徒歩6分)など、日々の暮らしをサポートする施設が充実。快適な生活を営める環境が魅力です。 広々とした敷地で、憧れの庭付き一戸建てや趣味のスペースなど、夢のプランを実現しませんか?現況は更地渡しのため、スムーズに建築を開始できます。 800万円台という価格も魅力。この機会に、理想の住まいを形にする土地を手に入れてください。ぜひ一度現地をご確認ください。お問い合わせをお待ちしております。
| 価格 |
800万円
坪単価:約7.3万円/坪
|
|---|---|
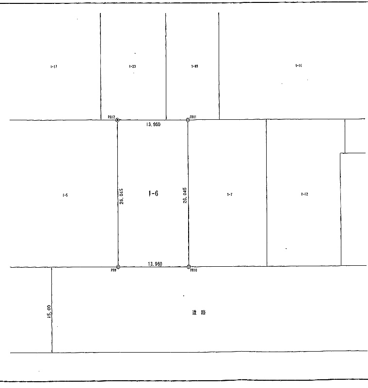
| 土地面積 | 363.58m² (109.98坪)(公簿) |
| 住所 | 北海道釧路市鳥取大通5丁目1番 |
| 交通 | くしろバス 「鳥取大通5丁目」停(徒歩5分)|阿寒バス 「鳥取大通5丁目」停(徒歩5分) |
| 現況 | 更地 |
| 建築条件 | なし |
| 用途地域 |
|
販売状況、見学、詳細を知りたい方はこちら!
お電話の際は「連合隊の物件」とお伝えください。
情報掲載期限:あと23日(更新日 2026/2/7)
- 物件写真・概要
- 周辺地図
-
販売状況、見学、詳細を知りたい方はこちら!
おすすめポイント
- 即引渡し可
- 更地
- 建築条件なし
- 南道路
- 上下水道
- 電気
- 都市ガス
- 近くて便利!徒歩5分以内にある施設
- 5分
5分- 5分
5分- 周辺施設を地図で確認
交通
- くしろバス 「鳥取大通5丁目」停徒歩5分(約327m)
- 阿寒バス 「鳥取大通5丁目」停徒歩5分(約327m)
物件概要
販売区画数/
総区画数-/- 接道状況 一方 - 南側幅15.00mの公道に13.96m接道
都市計画区域 市街化区域 私道負担 なし 地目/地勢 宅地 地勢:平坦 国土法届出 不要 土地権利 所有権 用途地域 - 第1種住居地域(建ぺい率:60% / 容積率:200%)
引渡し 即時(現状引渡し。) 現況 更地 取引態様 仲介 物件No 仲介手数料概算 33万円(金額は概算です。正確な金額は不動産会社へお問合せ下さい) 設備・特徴 - 整形地
- 都市ガス
- 上下水道
- 電気
備考 測量済みです! 学区色がついているアイコンをクリックすると、本物件までの道順を見ることができます。
主な周辺施設色がついているアイコンをクリックすると、本物件までの道順を見ることができます。
-
ホームページはこちら
北海道知事 釧路(6) 第445号
(有)エム・ティ・エヌ
※連合隊は物件情報の精度向上に努めています:「物件情報に誤りがある」「成約済みである」などお気付きの点がございましたらこちらよりご連絡ください。
写真枚数:2枚
ぜひお気軽にお問い合わせください。ご家族で、ご自由に!買う買わないにかかわらず内覧してください!0154-31-8370