West Lagoon境之谷A棟 中古アパート
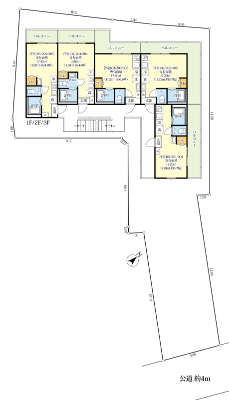
ここに注目!【設備】 公共下水・公営水道・LPガス 【建設設備】 全室バストイレ別 エアコン フローリング 室内物干し 浴室乾燥機 室内洗濯機置場 温水洗浄便座 カーテンレール 1口~2口IHクッキングヒーター 独立洗面台 室内照明 シューズボックス カラーモニター付きインターフォン 全室バルコニー付き 【備考】 土地価格:7,090万円 建物価格:7,400万円 総額:14,490万円 利回り:7.0% 専有面積:16.66㎡~17.42㎡ 間取り:1棟15戸(1R×15戸) 用途地域:第一種住居地域 高度地区:第4種高度地区 防火指定:準防火地域 平均賃料:5.63万円 年間賃料:1,014.6万円 劣化対策等級:2級取得 建築確認番号:第2020SBC-確01620Y号 その他:法22条区域 景観法 緑化地域 不燃化推進区域 宅地造成等工事規制区域 ※越境有(未取得)
この物件は、仲介手数料がかかりません。
この物件の売主は、情報を掲載している不動産会社です。仲介物件ではないため、仲介手数料は発生しません。
| 価格 |
1億4,490万円
利回り7%
満室時想定年収:1,014万6,000円
|
|---|---|
| 住所 | 神奈川県横浜市西区境之谷88-6 |
| 交通 | 黄金町駅(徒歩14分)|南太田駅(徒歩14分)|吉野町駅(徒歩17分)道順を見る |
| 築年月 | 築3年(2022年3月) |
| 構造 | 木造 |
| 面積 | 建物:308.25m² (93.24坪)/ 土地:282.72m² (85.52坪)(公簿)※セットバック済み 専有:最小16.66m² (5.03坪)~最大17.42m² (5.26坪) |
| 現況 | 現在満室(総戸数15戸中 15戸賃貸中) |
販売状況、見学、詳細を知りたい方はこちら!
お電話の際は「連合隊の物件」とお伝えください。
新着 情報掲載期限:あと27日(更新日 2026/2/21)
- 物件写真・概要
- 周辺地図
-
販売状況、見学、詳細を知りたい方はこちら!
おすすめポイント
- 現在満室
- 築5年以内
- 複数路線利用可
交通色がついているアイコンをクリックすると、本物件までの道順を見ることができます。
物件概要
建物の階建 地上3階建 間取り ワンルーム×15戸 駐車場 なし接道状況 一方 - 東側幅4.00mの公道に5.00m接道
都市計画区域 市街化区域 用途地域 - 第1種住居地域(建ぺい率:60% / 容積率:200%)
私道負担 なし 地目/地勢 宅地 国土法届出 土地権利 所有権 引渡し 相談 施工業者 トラスト建設 株式会社 建築確認番号 第2020SBC-確01620Y号 取引態様 売主 物件No 仲介手数料概算 取引態様が売主なので仲介手数料は不要です 設備・特徴 - 複数路線利用可
- バス/トイレ別
- オートロック
備考 ※図面と現況が相違する場合、現況優先とします。 ※年間賃料収入(管理費含む)は将来に渡り収入が確実に得られることを保証するものではありません。表面利回りは公租公課その他必要経費を控除する前のものです。 主な周辺施設色がついているアイコンをクリックすると、本物件までの道順を見ることができます。
-
ホームページはこちら
国土交通大臣 (1) 第10871号
トラストライフ(株)- 加入団体
- (公社)全日本不動産協会
- 保証協会
- (公社)不動産保証協会
- 公正取引協議会
- (公社)首都圏不動産公正取引協議会
※連合隊は物件情報の精度向上に努めています:「物件情報に誤りがある」「成約済みである」などお気付きの点がございましたらこちらよりご連絡ください。
写真枚数:3枚
外観写真
外観
間取図
時代に合った不動産投資を新築一棟アパートから。 横浜エリアでの賃貸経営はトラストライフへ
トラストライフは横浜市を中心に地域密着の住まいづくりを展開。地域のニーズや環境を把握して厳選した土地を仕入れ、自社設計・自社施工・自社販売の一貫体制にてお客様に安心して頂ける住まいをご提供します。