寿4丁目事務所兼住宅 戸建(中古)
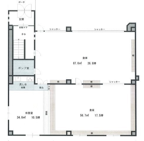
ここに注目!中心部に近い住宅地です。車庫・倉庫付事務所兼住宅。駐車場は屋外5台・屋内3台有ります。1階は車庫・倉庫・休憩室が有ります。2階は大空間事務室・小会議室・応接室が有ります。3階は大空間4LDKです。1階は車庫と倉庫等で212.22㎡65.5坪有ります。車庫スペースが87㎡です。倉庫が56.7㎡です。34㎡の流し台付き休憩室が有ります。2階は206.55㎡63.7坪です。事務所スペースは事務室30坪と11坪の2室と応接室9坪の広さです。3階は206.55㎡63.7坪です。LDK30帖です。和室は10帖と9帖の2室です。洋室は10帖と15帖の2室です。別途物置スペースも有ります。鉄骨造と木造の混構造です。
| 価格 |
800万円
|
|---|---|
| 間取・専有 | |
| 住所 | 北海道釧路市寿4丁目20-7 |
| 交通 | 釧路駅(徒歩16分)|「寿4丁目」停(徒歩3分) |
| 築年月 | 築33年(1992年7月) |
| 駐車場 |
あり
|
販売状況、見学、詳細を知りたい方はこちら!
お電話の際は「連合隊の物件」とお伝えください。
情報掲載期限:あと29日(更新日 2025/12/7)
- 物件写真・概要
- 周辺地図
-
▼クリックで左の拡大画像が変わります。 すべての写真を拡大
販売状況、見学、詳細を知りたい方はこちら!
おすすめポイント
- 駐車場あり
- 男女別トイレ
交通色がついているアイコンをクリックすると、本物件までの道順を見ることができます。
- 釧路駅花咲線、JR釧網本線、JR根室本線徒歩16分(約1.3km)
- 「寿4丁目」停徒歩3分(約200m)
物件概要
所在階/建物の階建 地上3階建 主要採光面 構造 鉄骨造 土地権利 所有権 引渡し 相談 現況 空き 管理人 管理形態 管理組合 指定なし 取引態様 仲介 物件No 仲介手数料概算 不動産会社へお問合せください 設備・特徴 - ガスコンロ
- バス/トイレ別
- 独立洗面台
- シャワー付洗面化粧台
- 車庫あり
- 男女別トイレ
- その他:ガスキッチン・都市ガス・トイレ/バス別・洗面化粧台・シャンプードレッサー・公共下水・車庫・上下水道・電気
備考 多少の傷みは有りますが補修して頂ければまだまだ使えます。リフォーム工事のご提案もさせて頂いております。 主な周辺施設色がついているアイコンをクリックすると、本物件までの道順を見ることができます。
-
ホームページはこちら北海道知事 釧路(3) 第496号
(株)伊藤建業
※連合隊は物件情報の精度向上に努めています:「物件情報に誤りがある」「成約済みである」などお気付きの点がございましたらこちらよりご連絡ください。
写真枚数:16枚
南側 全景
1F平面図 212.22㎡
北側 全景
11m道路に18m接道・357.78㎡
2F平面図 206.55㎡
3F平面図 206.55㎡
1階 北東側倉庫
1階 ポンプ室
2階 応接室
2階 給湯室
2階 南西側事務室
2階 北側事務室
3階 居間
3階 台所
3階 浴室
3階 和室