標茶町チャンベツ 売家
ここに注目!◎必見です!! ◎のどかな田園の965坪の土地付き中古住宅です! ◎再建築も可能です。 ◎幹線道路付きなので冬の除雪も安心です。
| 価格 |
450万円
|
|---|---|
| 建物面積 | 101.25m² (30.62坪) |
| 土地面積 | 3190.14m² (965.01坪)(公簿) |
| 間取り | 4LDK和室8.0帖 洋室6.0帖 洋室6.0帖×2 LDK23.0帖 |
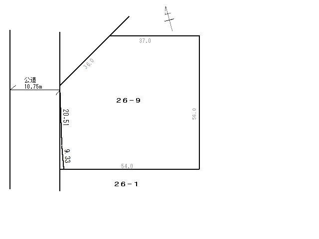
| 住所 | 北海道川上郡標茶町字チャンベツ26-9 |
| 交通 | 標茶駅(徒歩223分)|「田村停」停(徒歩15分) |
| 築年月 | 築51年(1974年10月) |
| 駐車場 |
販売状況、見学、詳細を知りたい方はこちら!
お電話の際は「連合隊の物件」とお伝えください。
情報掲載期限:あと27日(更新日 2026/4/27)
- 物件写真・概要
- 周辺地図
-
▼クリックで左の拡大画像が変わります。 すべての写真を拡大
販売状況、見学、詳細を知りたい方はこちら!
交通色がついているアイコンをクリックすると、本物件までの道順を見ることができます。
- 標茶駅JR釧網本線徒歩223分(約17.8km)
- 「田村停」停徒歩15分(約1.2km)
物件概要
建物の階建 地上2階建 主要採光面 構造 木造 接道状況 一方 - 西側幅10.70mの公道に20.00m接道
都市計画区域 都市計画区域外 私道負担 なし 地目/地勢 宅地 国土法届出 不要 土地権利 所有権 用途地域 - 無指定
引渡し 相談 現況 空き 取引態様 仲介 物件No 仲介手数料概算 不動産会社へお問合せください 設備・特徴 - ガスコンロ
- LPガス
- バス/トイレ別
- 温水洗浄トイレ
- 独立洗面台
- エアコン付
- 照明器具付
- 家庭菜園用地
- 日当り良好
- フローリング
- 庭が広い(10坪以上)
- 二重サッシ
備考 ◎適度にリフォームされたのどかな田園の中古住宅です。 ◎敷地は965坪あり家庭菜園等使い道は無限大‼ ◎夏場の別荘として家庭菜園を楽しんでみてはいかがでしょう。 ◎広いドッグランも作れます。 ◎ゴルフの練習も出来るかも。 ◎夏場の別荘として家庭菜園を楽しんでみてはいかがでしょう。 ◎小さな果樹園も楽しいかも。 -
ホームページはこちら北海道知事 釧路(3) 第496号
(株)伊藤建業
※連合隊は物件情報の精度向上に努めています:「物件情報に誤りがある」「成約済みである」などお気付きの点がございましたらこちらよりご連絡ください。
写真枚数:14枚
適度なリフォームがされています。
1F間取り 2部屋と広いLDKです。
トイレは水洗です。
3190㎡ 965坪 広大な土地です。
2F間取り 2部屋 4LDKです。
1F北洋室6帖です。
1階トイレです。
タカラのホーローキッチンです。
エアコン付きです。
ユニットバスです。
収納も沢山有ります。
2F洋室です。
洗面台と電気温水器
玄関ホール