ナカタビル
ここに注目!高利回りが魅力の1棟商業ビル。駅徒歩9分で利便性も良好、安定した賃貸収入が見込めます。 ・表面利回り26.20%で収益性に期待 ・JR函館本線滝川駅から徒歩9分の立地 ・想定年間収入262万円で安定運用 ・1979年築の堅牢な建物 ・商業利用に適した立地と規模
| 価格 |
1,000万円
利回り26.2%
満室時想定年収:262万円
|
|---|---|
| 住所 | 北海道滝川市栄町2-1-7 |
| 交通 | 滝川駅(徒歩9分)道順を見る |
| 築年月 | 築46年(1979年8月) |
| 構造 | 鉄筋コンクリート(RC)造 |
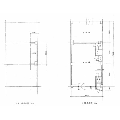
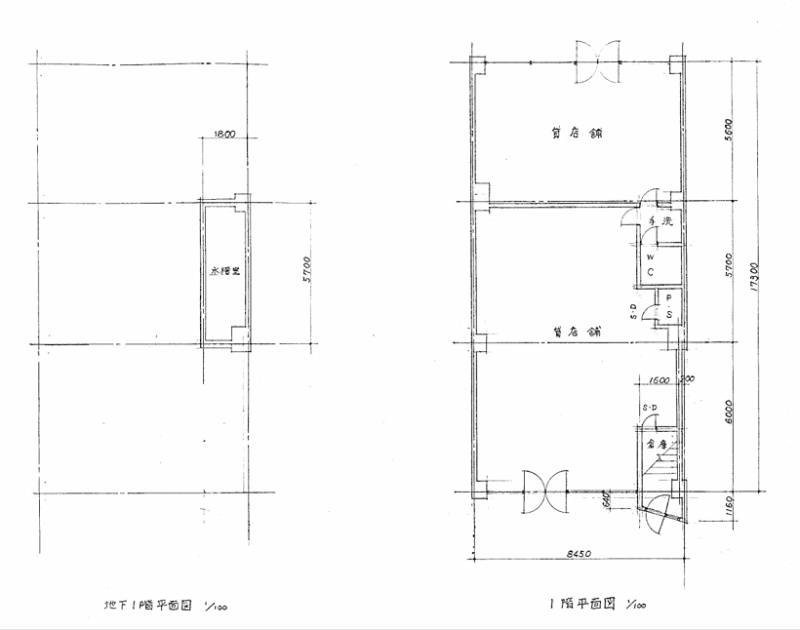
| 面積 | 建物:596.83m² (180.54坪)/ 土地:188.42m² (56.99坪)(公簿) |
| 現況 | 総戸数4戸 一部賃貸中 |
【WEB面談可】
販売状況、見学、詳細を知りたい方はこちら!
お電話の際は「連合隊の物件」とお伝えください。
情報掲載期限:あと22日(更新日 2025/12/16)
- 物件写真・概要
- 周辺地図
-
【WEB面談可】
販売状況、見学、詳細を知りたい方はこちら!おすすめポイント
- 利回り26%超
交通色がついているアイコンをクリックすると、本物件までの道順を見ることができます。
物件概要
建物の階建 地上4階 地下1階建 間取り 駐車場 接道状況 二方(除角地) - 北東側幅21.00mの公道に接道
- 南西側幅18.00mの公道に接道
都市計画区域 非線引区域 用途地域 - 商業地域(建ぺい率:80% / 容積率:400%)
私道負担 地目/地勢 宅地 国土法届出 土地権利 所有権 引渡し 相談 取引態様 仲介 物件No 仲介手数料概算 39万6,000円(金額は概算です。正確な金額は不動産会社へお問合せ下さい) 設備・特徴 備考 主な周辺施設色がついているアイコンをクリックすると、本物件までの道順を見ることができます。
-
ホームページはこちら
国土交通大臣 (3) 第8447号
きらめき不動産(株) 【WEB面談可】〒220-0021
TEL:045-633-3463
TEL:0800-111-1108
FAX:045-633-3858
営業時間:10:00~19:00
定休日:毎週 水曜
- 加入団体
- (公社)東京都宅地建物取引業協会、(公社)神奈川県宅地建物取引業協会
- 保証協会
- (公社)全国宅地建物取引業保証協会
- 公正取引協議会
- (公社)首都圏不動産公正取引協議会
※連合隊は物件情報の精度向上に努めています:「物件情報に誤りがある」「成約済みである」などお気付きの点がございましたらこちらよりご連絡ください。
写真枚数:5枚
【不動産投資専門で2008年創業からおかげ様で取引件数3000件超の実績】
横浜、東京を拠点に全国の収益物件の取り扱いをしています。築古物件に対しての融資付けや資産拡大への戦略に絶対の自信が御座います。会員になることで未公開物件のご紹介も可能です。