香芝市平野 ラブホテル
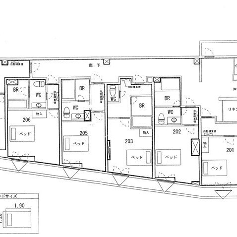
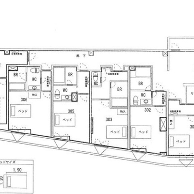
ここに注目!- JR和歌山線志都美駅から徒歩20分の立地。 - 駅徒歩圏内でアクセス良好。 - 1987年築のラブホテル - 販売価格は3500万円で、投資に適した価格帯。 - 現在営業休止中のため、自由な運用プランが可能。 - 2階6部屋・3階6部屋の計12部屋 - ご自身での運営はもちろん、運営代行会社への委託も可能です。
| 価格 |
3,500万円
利回り42.85%
満室時想定年収:1,500万円
|
|---|---|
| 住所 | 奈良県香芝市平野 (詳細非公開) |
| 交通 | 志都美駅(徒歩20分) |
| 築年月 | 築38年(1987年1月) |
| 構造 | 鉄骨造 |
| 面積 | 建物:689.13m² (208.46坪)/ 土地:324.38m² (98.12坪)(公簿) |
| 現況 | 空き |
【WEB面談可】
販売状況、見学、詳細を知りたい方はこちら!
お電話の際は「連合隊の物件」とお伝えください。
情報掲載期限:あと3日(更新日 2025/11/25)
- 物件写真・概要
- 周辺地図
-
【WEB面談可】
販売状況、見学、詳細を知りたい方はこちら!おすすめポイント
- 利回り42%超
交通
- 志都美駅JR和歌山線徒歩20分
物件概要
建物の階建 地上3階 地下1階建 間取り 1K×12戸 駐車場 あり 駐車場台数:8台接道状況 一方 - 南側幅0.70mの公道に接道
都市計画区域 市街化区域 用途地域 - 第1種住居地域(建ぺい率:60% / 容積率:200%)
私道負担 地目/地勢 宅地 国土法届出 土地権利 所有権 引渡し 即時 取引態様 仲介 物件No 仲介手数料概算 122万1,000円(金額は概算です。正確な金額は不動産会社へお問合せ下さい) 設備・特徴 備考 ■旅館業許可と風営法許可は必要に応じて名義変更の上、譲渡可能です。 主な周辺施設
- オークワ香芝インター店約872m(徒歩11分)
- ローソン香芝上中店約930m(徒歩12分)
- セブンイレブン香芝上中南店約1.2km(徒歩14分)
- 鶴橋風月香芝インター店約523m(徒歩7分)
- CoCo壱番屋香芝インター店約849m(徒歩11分)
-
ホームページはこちら
国土交通大臣 (3) 第8447号
きらめき不動産(株) 【WEB面談可】〒220-0021
TEL:045-633-3463
TEL:0800-111-1108
FAX:045-633-3858
営業時間:10:00~19:00
定休日:毎週 水曜
- 加入団体
- (公社)東京都宅地建物取引業協会、(公社)神奈川県宅地建物取引業協会
- 保証協会
- (公社)全国宅地建物取引業保証協会
- 公正取引協議会
- (公社)首都圏不動産公正取引協議会
※連合隊は物件情報の精度向上に努めています:「物件情報に誤りがある」「成約済みである」などお気付きの点がございましたらこちらよりご連絡ください。
写真枚数:4枚
【不動産投資専門で2008年創業からおかげ様で取引件数3000件超の実績】
横浜、東京を拠点に全国の収益物件の取り扱いをしています。築古物件に対しての融資付けや資産拡大への戦略に絶対の自信が御座います。会員になることで未公開物件のご紹介も可能です。