ルラーシェ本町
ここに注目!留萌市中心部、築浅1棟4戸(225平米)、既存戸建1棟(68.58平米)
| 価格 |
3,800万円
利回り10.92%
満室時想定年収:415万円
|
|---|---|
| 住所 | 北海道留萌市本町 (詳細非公開) |
| 交通 | 石狩沼田駅(車で60分) |
| 築年月 | 築9年(2016年11月) |
| 構造 | 木造 |
| 面積 | 建物:225m² (68.06坪)/ 土地:769.87m² (232.88坪)(公簿) |
| 現況 | 現在満室(総戸数4戸) |
販売状況、見学、詳細を知りたい方はこちら!
お電話の際は「連合隊の物件」とお伝えください。
情報掲載期限:あと24日(更新日 2025/12/18)
- 物件写真・概要
- 周辺地図
-
▼クリックで左の拡大画像が変わります。 すべての写真を拡大
販売状況、見学、詳細を知りたい方はこちら!
おすすめポイント
- 現在満室
- 利回り10%超
- 築10年以内
- 土地100坪超
- 戸数分駐車場あり
交通
- 石狩沼田駅JR留萌本線車60分(約35km)
物件概要
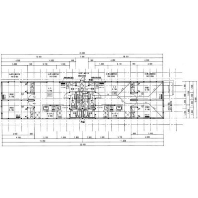
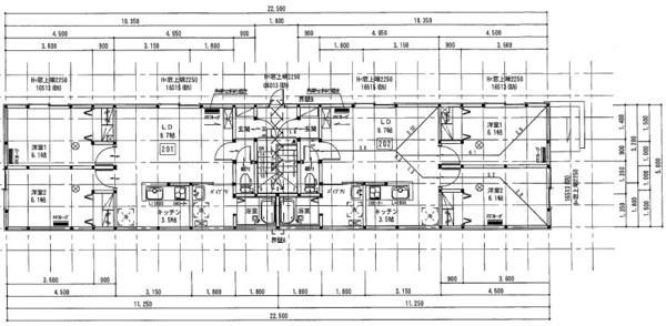
建物の階建 地上2階建 間取り 2LDK 駐車場 あり 駐車場台数:12台接道状況 一方 - 南東側幅13.00mの公道に18.20m接道
都市計画区域 市街化区域 用途地域 - 商業地域(建ぺい率:80% / 容積率:400%)
私道負担 なし 地目/地勢 宅地 国土法届出 不要 土地権利 所有権 引渡し その他(即引き渡し可) 取引態様 仲介 物件No 144901-155 仲介手数料概算 不動産会社へお問合せください 設備・特徴 備考 [物件コード]144901-155、1棟4戸 戸建 駐車場 月額346000円、一棟売り、収益物件 -
ホームページはこちら
北海道知事 上川(3) 第1177号
センチュリー21 (株)アールズ旭川- 加入団体
- (公社)北海道宅地建物取引業協会
- 保証協会
- (公社)全国宅地建物取引業保証協会
- 公正取引協議会
- (一社)北海道不動産公正取引協議会
※連合隊は物件情報の精度向上に努めています:「物件情報に誤りがある」「成約済みである」などお気付きの点がございましたらこちらよりご連絡ください。
写真枚数:13枚
外観
間取り
その他現地
その他現地
その他現地
その他現地
駐車場
駐車場
駐車場
駐車場
前面道路含む現地写真
前面道路含む現地写真
旭川の不動産 センチュリー21アールズ旭川
お部屋探しはセンチュリー21アールズ旭川! 売買、買取でお困りの方はお気軽にご相談下さい!