旭川市末広8条3丁目
ここに注目!※宅地造成工事規制地域 広い居間で日当たりが良く、車庫もあります!建物はまだまだ使えそうです。 借家経営もよいかもしれません。 固定資産税も、年間3万円ほどです。
| 価格 |
390万円
|
|---|---|
| 建物面積 | 94.55m² (28.6坪) |
| 土地面積 | 218.18m² (65.99坪)(公簿) |
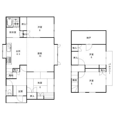
| 間取り | 5LDK |
| 住所 | 北海道旭川市末広8条3丁目5392-6 |
| 交通 | 「敬生園入口」停 (徒歩3分) |
| 築年月 | 築50年(1975年10月) |
| 駐車場 |
あり 駐車可能台数:1台
|
販売状況、見学、詳細を知りたい方はこちら!
お電話の際は「連合隊の物件」とお伝えください。
情報掲載期限:あと27日(更新日 2025/12/10)
- 物件写真・概要
- 周辺地図
-
販売状況、見学、詳細を知りたい方はこちら!
おすすめポイント
- 即引渡し可
- 駐車場あり
- 車庫あり
- 近くて便利!徒歩5分以内にある施設
- 2分
2分- 周辺施設を地図で確認
交通
- 「敬生園入口」停 徒歩3分
物件概要
建物の階建 地上2階建 主要採光面 北西 構造 木造 接道状況 一方 - 北西側幅11.00mの公道に10.90m接道
都市計画区域 市街化区域 私道負担 地目/地勢 地勢:平坦 国土法届出 不要 土地権利 所有権 用途地域 - 第1種低層住居専用地域(建ぺい率:40% / 容積率:60%)
引渡し 即時 現況 空き 取引態様 仲介 物件No 仲介手数料概算 33万円(金額は概算です。正確な金額は不動産会社へお問合せ下さい) 設備・特徴 - 車庫あり
備考 学区色がついているアイコンをクリックすると、本物件までの道順を見ることができます。
主な周辺施設色がついているアイコンをクリックすると、本物件までの道順を見ることができます。
-
ホームページはこちら
北海道知事 上川(3) 第1120号
(株)プライムアセット〒078-8236
北海道旭川市豊岡6条4丁目4番15号
オフィスシェル1F C号TEL:0166-85-6587
FAX:0166-85-6586
営業時間:9:00~17:30
定休日:毎週 土曜・日曜・祝日
- 加入団体
- (公社)北海道宅地建物取引業協会
- 保証協会
- (公社)全国宅地建物取引業保証協会
- 公正取引協議会
- (一社)北海道不動産公正取引協議会
※連合隊は物件情報の精度向上に努めています:「物件情報に誤りがある」「成約済みである」などお気付きの点がございましたらこちらよりご連絡ください。
写真枚数:5枚
旭川市・旭川市近郊の投資物件、土地、既存住宅、分譲マンションはプライムアセットにお任せください!
豊富な知識を持ったスタッフがあなたの不動産のお悩みにお応えします。 スピード査定をはじめとする行動のはやさが弊社の強みです。 宅地建物取引士、相続診断士、賃貸不動産経営管理士が複数在籍。