春光4-3戸建
ここに注目!高級な3階建ての二世帯住宅です。贅沢な生活を叶える理想的なお住まいです。
| 価格 |
5,200万円
|
|---|---|
| 建物面積 | 447.53m² (135.37坪) |
| 土地面積 | 638.93m² (193.27坪)(公簿) |
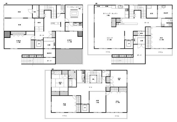
| 間取り | |
| 住所 | 北海道旭川市春光4条3丁目2-3 |
| 交通 | バス 「春光5条3丁目」停(徒歩4分)|バス 「春光5条4丁目」停(徒歩5分)|バス 「北星中学校」停(徒歩10分)|バス 「大町2条8丁目」停(徒歩11分) |
| 築年月 | 築24年(2001年10月) |
| 駐車場 |
あり
|
販売状況、見学、詳細を知りたい方はこちら!
お電話の際は「連合隊の物件」とお伝えください。
情報掲載期限:あと29日(更新日 2026/4/29)
- 物件写真・概要
- 周辺地図
-
販売状況、見学、詳細を知りたい方はこちら!
おすすめポイント
- 即引渡し可
- 駐車場あり
交通
- バス 「春光5条3丁目」停徒歩4分
- バス 「春光5条4丁目」停徒歩5分
- バス 「北星中学校」停徒歩10分
- バス 「大町2条8丁目」停徒歩11分
物件概要
建物の階建 地上3階建 主要採光面 構造 木造 接道状況 - 南東側 道路幅11m 接道幅20m 公道 間口 20.000m ・ 奥行 31.947m、南西側 道
都市計画区域 市街化区域 私道負担 なし 地目/地勢 国土法届出 不要 土地権利 所有権 用途地域 - 2種中高層(建ぺい率:60% / 容積率:200%)
引渡し 即時 現況 その他(空家) 取引態様 仲介 物件No 67111 仲介手数料概算 不動産会社へお問合せください 設備・特徴 備考 高級な3階建ての二世帯住宅です。贅沢な生活を叶える理想的なお住まいです。焼肉店顔負けの焼肉ルームが付いており、ご家族や友人との楽しい時間が過ごせます。 学区色がついているアイコンをクリックすると、本物件までの道順を見ることができます。
-
ホームページはこちら
北海道知事 上川(3) 第1193号
ビッグ旭川エステートセンター (株)生活プロデュースリーシング
※連合隊は物件情報の精度向上に努めています:「物件情報に誤りがある」「成約済みである」などお気付きの点がございましたらこちらよりご連絡ください。
写真枚数:21枚
不動産売買のことなら、ビッグ旭川エステートセンターへ
旭川市内、近郊の不動産売却から購入まで、売買のことなら、地域密着・親切・丁寧なビッグへお任せ下さい。まずは、お気軽にお問合せ下さい!