深川市音江町1-4-32戸建
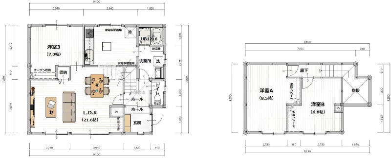
ここに注目!深川市音江町に、内外装フルリフォーム済みの3LDK戸建が登場!価格は1098万円です。 バス停「ネイパル深川」まで徒歩8分とアクセス良好。 2024年5月に水回り・設備・給湯器・建具を新品交換し、クロスや床、外壁屋根も一新★フルリフォーム済み★ 広々21.6帖のLDK★南東向きで日当り良好★全居室収納やシューズボックスも完備し、すっきり暮らせます。システムキッチンや追い焚き機能付きバスなど、設備も充実しています。 330平米の広々とした敷地★ガーデニングや家庭菜園、お子様の遊び場にもぴったり。駐車場もございます。 音江小学校まで徒歩6分、音江中央保育園まで徒歩10分と子育て世帯にも安心の立地。音江郵便局まで徒歩5分、道の駅オハナマーケットも近く、日々の生活に便利です。 閑静な住宅街で、田舎暮らしやリゾート拠点をお探しの方にもおすすめです。 この機会にぜひ一度ご見学ください!
| 価格 |
1,098万円
|
|---|---|
| 建物面積 | 94.4m² (28.55坪) |
| 土地面積 | 330m² (99.82坪)(公簿) |
| 間取り | 3LDK1階:LDK21.6帖 洋室7帖 / 2階:洋室8.5帖 洋室6.8帖 |
| 住所 | 北海道深川市音江町1-4-32 |
| 交通 | 「ネイパル深川」停(徒歩8分) |
| 築年月 | 築42年(1983年12月) |
| 駐車場 |
あり
|
販売状況、見学、詳細を知りたい方はこちら!
お電話の際は「連合隊の物件」とお伝えください。
情報掲載期限:あと19日(更新日 2025/12/4)
- 物件写真・概要
- 周辺地図
-
販売状況、見学、詳細を知りたい方はこちら!
おすすめポイント
- 即引渡し可
- 駐車場あり
- 追い焚き風呂
- リフォーム済み
- 近くて便利!徒歩5分以内にある施設
- 5分
5分- 周辺施設を地図で確認
交通
- 「ネイパル深川」停徒歩8分
物件概要
建物の階建 地上2階建 主要採光面 南東 構造 木造 接道状況 一方 - 北東側幅8.00mの公道に16.50m接道
都市計画区域 非線引区域 私道負担 なし 地目/地勢 宅地 地勢:平坦 国土法届出 土地権利 所有権 用途地域 - 無指定
引渡し 即時 現況 空き 取引態様 仲介 物件No 仲介手数料概算 42万8,340円(金額は概算です。正確な金額は不動産会社へお問合せ下さい) 修繕履歴 - 2024年6月頃に物件全体を部分的にリフォームしています。施工内容:新品交換(水回り・照明下駄箱・給湯器・建具)、クロス全面張替え、床フローリング上張り、外壁屋根塗装
設備・特徴 - 閑静な住宅街
- 日当り良好
- 照明器具付
- シューズボックス
- 全居室収納あり
- シャワー付洗面化粧台
- 追い焚き風呂
- システムキッチン
- LPガス
- 灯油暖房
- 灯油ボイラー
- モニタ付インターホン
- 田舎暮らし向き
- 整形地
- 庭が広い(10坪以上)
- コンロ3口以上
- リゾート向け
備考 学区色がついているアイコンをクリックすると、本物件までの道順を見ることができます。
主な周辺施設色がついているアイコンをクリックすると、本物件までの道順を見ることができます。
-
ホームページはこちら
北海道知事 上川(3) 第1193号
ビッグ旭川エステートセンター (株)生活プロデュースリーシング
※連合隊は物件情報の精度向上に努めています:「物件情報に誤りがある」「成約済みである」などお気付きの点がございましたらこちらよりご連絡ください。
写真枚数:21枚
不動産売買のことなら、ビッグ旭川エステートセンターへ
旭川市内、近郊の不動産売却から購入まで、売買のことなら、地域密着・親切・丁寧なビッグへお任せ下さい。まずは、お気軽にお問合せ下さい!