永山7条12丁目戸建て
ここに注目!旭川市永山7条に、2023年8月に内外装リフォーム済みの戸建てが登場しました!「永山6-12」停まで徒歩3分と、バス利用も便利な立地です。 南西向きで日当たり良好なこの家は、広々14.5帖のLDKが魅力。システムキッチンには食洗機、浴室は追い焚き・暖房機能付きで1坪以上のゆとりがあります。温水洗浄トイレやシャワー付洗面化粧台など、水回り設備も一新され快適です。 全居室収納に加え、シューズボックスや新設されたクローゼットで収納も豊富。灯油暖房やTVホン、玄関フード、融雪槽など、暮らしを快適にする設備が充実しています。 敷地内には車2台駐車可能で、車庫も完備。周辺にはローソン徒歩3分、スーパーチェーンふじ徒歩6分、イオン旭川永山店徒歩9分と買い物施設が充実。旭川市立永山西小学校まで徒歩4分と、お子様の通学も安心の閑静な住宅街です。 新生活を始めるのにぴったりのこの物件、ぜひ一度ご内覧ください。お問い合わせお待ちしております!
| 価格 |
1,698万円
|
|---|---|
| 建物面積 | 90.05m² (27.24坪) |
| 土地面積 | 185.11m² (55.99坪)(公簿) |
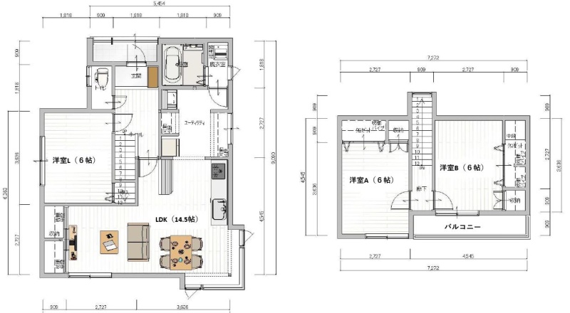
| 間取り | 3LDK1階:LDK14.5帖 洋室6帖 / 2階:洋室6帖 洋室6帖 |
| 住所 | 北海道旭川市永山7条12-1-4 |
| 交通 | 「永山6-12」停(徒歩3分) |
| 築年月 | 築37年(1988年5月) |
| 駐車場 |
あり 駐車可能台数:2台
|
販売状況、見学、詳細を知りたい方はこちら!
お電話の際は「連合隊の物件」とお伝えください。
情報掲載期限:あと12日(更新日 2025/11/27)
- 物件写真・概要
- 周辺地図
-
販売状況、見学、詳細を知りたい方はこちら!
おすすめポイント
- 即引渡し可
- 駐車2台以上可
- 車庫あり
- 都市ガス
- 追い焚き風呂
- リフォーム済み
- 複数路線利用可
- 近くて便利!徒歩5分以内にある施設
- 3分
3分- 4分
4分- 4分
4分- 周辺施設を地図で確認
交通
- 「永山6-12」停徒歩3分
物件概要
建物の階建 地上2階建 主要採光面 南西 構造 木造 バルコニー あり- バルコニー南向き
接道状況 一方 - 北東側幅8.00mの公道に12.73m接道
都市計画区域 市街化区域 私道負担 地目/地勢 宅地 地勢:平坦 国土法届出 土地権利 所有権 用途地域 - 第1種低層住居専用地域(建ぺい率:50% / 容積率:80%)
- 第2種中高層住居専用地域(建ぺい率:60% / 容積率:200%)
引渡し 即時 現況 空き 取引態様 仲介 物件No 仲介手数料概算 62万6,340円(金額は概算です。正確な金額は不動産会社へお問合せ下さい) 修繕履歴 - 2023年8月頃に物件全体を部分的にリフォームしています。施工内容:新品交換(システムキッチン・ユニットバス・シャンドレ・トイレ・建具・照明・下駄箱)、全居室(フロア張り・クロス張替)、クローゼット新設、TVホン新設
設備・特徴 - 閑静な住宅街
- 車庫あり
- 融雪槽
- 玄関フード
- 日当り良好
- 照明器具付
- 出窓
- 全居室収納あり
- シューズボックス
- 温水洗浄トイレ
- シャワー付洗面化粧台
- 追い焚き風呂
- 浴室暖房
- 浴室1坪以上
- コンロ3口以上
- システムキッチン
- 都市ガス
- 灯油暖房
- 複数路線利用可
- 整形地
- モニタ付インターホン
- 食器洗乾燥機
- フローリング
備考 学区色がついているアイコンをクリックすると、本物件までの道順を見ることができます。
主な周辺施設色がついているアイコンをクリックすると、本物件までの道順を見ることができます。
-
ホームページはこちら
北海道知事 上川(3) 第1193号
ビッグ旭川エステートセンター (株)生活プロデュースリーシング
※連合隊は物件情報の精度向上に努めています:「物件情報に誤りがある」「成約済みである」などお気付きの点がございましたらこちらよりご連絡ください。
写真枚数:19枚
不動産売買のことなら、ビッグ旭川エステートセンターへ
旭川市内、近郊の不動産売却から購入まで、売買のことなら、地域密着・親切・丁寧なビッグへお任せ下さい。まずは、お気軽にお問合せ下さい!