3条通15丁目693番1 KKビル
ここに注目!銀座商店街の店舗8戸★JR旭川4条駅徒歩7分☆現状1室賃貸中(一階右側)☆ディープな飲食店の多いエリアです。
| 価格 |
1,970万円
|
|---|---|
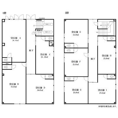
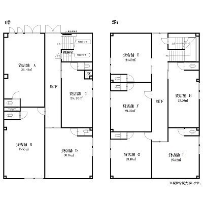
| 建物面積 | 313.6m² (94.86坪) |
| 土地面積 | 198.34m² (59.99坪)(公簿) |
| 住所 | 北海道旭川市3条通15-693-1 |
| 交通 | 「4条14丁目」停 (徒歩3分)|旭川四条駅(徒歩6分)道順を見る |
| 築年月 | 築26年(1999年11月) |
| 駐車場 | |
| 用途地域 |
|
販売状況、見学、詳細を知りたい方はこちら!
お電話の際は「連合隊の物件」とお伝えください。
情報掲載期限:あと29日(更新日 2026/5/21)
- 物件写真・概要
- 周辺地図
-
販売状況、見学、詳細を知りたい方はこちら!
おすすめポイント
- 即引渡し可
- 複数路線利用可
- 出店するなら…この業種がおすすめ!
- 飲食全般(重飲食含む)

- 喫茶・カフェ(軽飲食)

- バー・クラブ・スナック

- 小売・物販

- 美容・健康・介護

- 医療

- 教育・スクール

- 事務所

- アミューズメント

交通色がついているアイコンをクリックすると、本物件までの道順を見ることができます。
- 旭川四条駅JR石北本線、JR宗谷本線徒歩6分(約444m)
- 「4条14丁目」停 徒歩3分
物件概要
建物の階建 地上2階建 総戸数 8戸 主要採光面 構造 鉄骨造 居抜き情報 接道状況 一方 - 南西側幅10.90mの公道に10.90m接道
都市計画区域 市街化区域 私道負担 地目/地勢 宅地 地勢:平坦 国土法届出 土地権利 所有権 用途地域 - 商業地域(建ぺい率:80% / 容積率:600%)
引渡し 即時 現況 空き(一室入居中) 取引態様 仲介 物件No 仲介手数料概算 71万6,100円(金額は概算です。正確な金額は不動産会社へお問合せ下さい) 設備・特徴 - 複数路線利用可
- 商店街に面す
- ガス設備
- 給排水設備
- エアコン付
備考 1室63,000円(税込み)にて賃貸中 主な周辺施設色がついているアイコンをクリックすると、本物件までの道順を見ることができます。
-
ホームページはこちら
北海道知事 上川(3) 第1193号
ビッグ旭川エステートセンター (株)生活プロデュースリーシング
※連合隊は物件情報の精度向上に努めています:「物件情報に誤りがある」「成約済みである」などお気付きの点がございましたらこちらよりご連絡ください。
写真枚数:3枚
不動産売買のことなら、ビッグ旭川エステートセンターへ
旭川市内、近郊の不動産売却から購入まで、売買のことなら、地域密着・親切・丁寧なビッグへお任せ下さい。まずは、お気軽にお問合せ下さい!