永隆ビル
ここに注目!テナントビルの一括販売です。
| 価格 |
5,880万円
利回り11.89%
満室時想定年収:699万6,000円
|
|---|---|
| 住所 | 北海道旭川市1条通10-2070-1 |
| 交通 | 旭川駅(徒歩7分)道順を見る |
| 築年月 | 築50年(1975年3月) |
| 構造 | 鉄骨鉄筋コンクリート(SRC)造 |
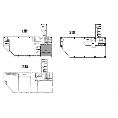
| 面積 | 建物:1551.43m² (469.3坪)/ 土地:553.49m² (167.43坪)(公簿) 専有:最小33.12m² (10.01坪)~最大72.87m² (22.04坪) |
| 現況 | 総戸数3戸 |
販売状況、見学、詳細を知りたい方はこちら!
お電話の際は「連合隊の物件」とお伝えください。
情報掲載期限:あと27日(更新日 2025/12/25)
- 物件写真・概要
- 周辺地図
-
販売状況、見学、詳細を知りたい方はこちら!
おすすめポイント
- 利回り11%超
- 土地100坪超
- 戸数分駐車場あり
- 複数棟一括売り
交通色がついているアイコンをクリックすると、本物件までの道順を見ることができます。
物件概要
建物の階建 地上3階建 間取り その他×1戸 駐車場 あり 駐車場台数:3台接道状況 角地 - 北東側の公道に0.00m接道
- 北西側の公道に0.00m接道
都市計画区域 市街化区域 用途地域 - 第2種中高層住居専用地域(建ぺい率:80% / 容積率:600%)
私道負担 なし 地目/地勢 宅地 地勢:平坦 国土法届出 不要 土地権利 所有権 引渡し 即時 取引態様 仲介 物件No 仲介手数料概算 200万6,400円(金額は概算です。正確な金額は不動産会社へお問合せ下さい) 設備・特徴 - 複数棟一括売り
- 角地
- バス/トイレ別
備考 単体でのご紹介も可能です。 主な周辺施設色がついているアイコンをクリックすると、本物件までの道順を見ることができます。
-
ホームページはこちら
北海道知事 上川(3) 第1193号
ビッグ旭川エステートセンター (株)生活プロデュースリーシング
※連合隊は物件情報の精度向上に努めています:「物件情報に誤りがある」「成約済みである」などお気付きの点がございましたらこちらよりご連絡ください。
写真枚数:4枚
永隆ビルA
永隆ビルB
永隆ビルC
不動産売買のことなら、ビッグ旭川エステートセンターへ
旭川市内、近郊の不動産売却から購入まで、売買のことなら、地域密着・親切・丁寧なビッグへお任せ下さい。まずは、お気軽にお問合せ下さい!