深川市北光町1丁目 店舗
ここに注目!◆深川市北光町に大規模店舗物件が登場しました!JR深川駅から徒歩5分というアクセスの良い立地に加え、国道233号沿いという視認性の高さが魅力です。幹線道路沿いで視認性も高く、お客様を呼び込むのに最適です。 ◆パチンコ店の居抜き物件として、アミューズメント施設など大規模な事業をお考えの方に特におすすめです。 ◆建物1階店舗部分は平成25年10月内外装リノベーション済みです。 ◆問い合わせは担当:藤原(080-5836-3937)までご連絡ください。
この物件は パチンコ・パチスロ の居抜き物件です。
現状の設備が残されたまま取引されるため、初期費用を抑え速やかに事業を開始できるメリットがあります。
| 価格 |
8,800万円
|
|---|---|
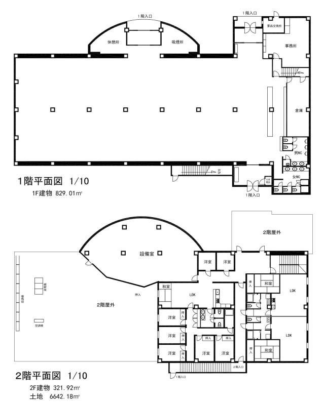
| 建物面積 | 1150.93m² (348.15坪) |
| 土地面積 | 6642.18m² (2009.25坪)(公簿) |
| 住所 | 北海道深川市北光町1-3-1 |
| 交通 | 深川駅(徒歩5分)道順を見る |
| 築年月 | 築35年(1990年12月) |
| 駐車場 |
あり
|
| 用途地域 |
|
販売状況、見学、詳細を知りたい方はこちら!
お電話の際は「連合隊の物件」とお伝えください。
情報掲載期限:あと29日(更新日 2026/5/7)
- 物件写真・概要
- 周辺地図
-
販売状況、見学、詳細を知りたい方はこちら!
おすすめポイント
- 即引渡し可
- 駅徒歩5分以内
- 複数路線利用可
- 駐車場あり
- 出店するなら…この業種がおすすめ!
- 飲食全般(重飲食含む)

- 喫茶・カフェ(軽飲食)

- バー・クラブ・スナック

- 小売・物販

- 美容・健康・介護

- 医療

- 教育・スクール

- 事務所

- アミューズメント

交通色がついているアイコンをクリックすると、本物件までの道順を見ることができます。
物件概要
建物の階建 地上2階建 総戸数 1戸 主要採光面 構造 鉄骨造 居抜き情報 [パチンコ・パチスロ] の居抜き接道状況 三方 - 西側幅13.00mの公道に78.96m接道
- 南側幅8.00mの公道に26.42m接道
- 北東側幅15.50mの公道に87.39m接道
都市計画区域 非線引区域 私道負担 なし 地目/地勢 宅地 国土法届出 土地権利 所有権 用途地域 - 準工業地域(建ぺい率:60% / 容積率:200%)
引渡し 即時 現況 空き 建築確認番号 3-398 取引態様 仲介 物件No 仲介手数料概算 297万円(金額は概算です。正確な金額は不動産会社へお問合せ下さい) 設備・特徴 - 複数路線利用可
- 幹線道路沿い
- 男女別トイレ
備考 主な周辺施設色がついているアイコンをクリックすると、本物件までの道順を見ることができます。
-
※連合隊は物件情報の精度向上に努めています:「物件情報に誤りがある」「成約済みである」などお気付きの点がございましたらこちらよりご連絡ください。
写真枚数:16枚
旭川市を中心に近郊一円の売買仲介を担当。昭和38年創業から地域に密着した事業活動を展開しています!
豊富な知識を持ったスタッフが、お客様のご希望条件からニーズに合った最適なプランを提案し、お住替えなども完全バックアップいたします。直接店舗にお越しいただく際は事前にご連絡いただけるとスムーズです。