西神楽1線24号
ここに注目!国道沿い利便性の良い立地。店舗・民泊などにいいかがでしょうか
この物件は、仲介手数料がかかりません。
この物件の売主は、情報を掲載している不動産会社です。仲介物件ではないため、仲介手数料は発生しません。
| 価格 |
298万円
|
|---|---|
| 建物面積 | 77.76m² (23.52坪) |
| 土地面積 | 284.27m² (85.99坪)(公簿) |
| 間取り | 4DK |
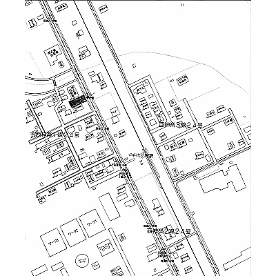
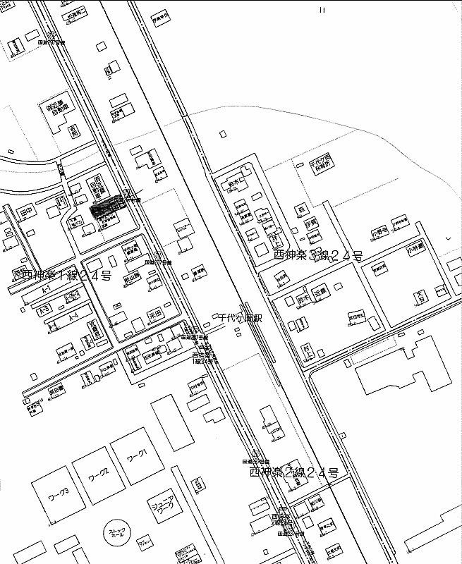
| 住所 | 北海道旭川市西神楽1線24号465-46 |
| 交通 | 千代ケ岡駅(徒歩11分)|道北バス 「千代ヶ岡駅前」停(徒歩2分)道順を見る |
| 築年月 | 築62年(1963年11月) |
| 駐車場 |
販売状況、見学、詳細を知りたい方はこちら!
お電話の際は「連合隊の物件」とお伝えください。
情報掲載期限:あと30日(更新日 2025/12/19)
- 物件写真・概要
- 周辺地図
-
販売状況、見学、詳細を知りたい方はこちら!
おすすめポイント
- 即引渡し可
- 近くて便利!徒歩5分以内にある施設
- 1分
1分- 1分
1分- 周辺施設を地図で確認
交通色がついているアイコンをクリックすると、本物件までの道順を見ることができます。
- 千代ケ岡駅JR富良野線徒歩11分(約808m)
- 道北バス 「千代ヶ岡駅前」停徒歩2分
物件概要
建物の階建 地上2階建 主要採光面 構造 木造 接道状況 都市計画区域 市街化区域 私道負担 地目/地勢 宅地 地勢:平坦 国土法届出 土地権利 所有権 用途地域 - 無指定
引渡し 即時 現況 空き 取引態様 売主 物件No 仲介手数料概算 取引態様が売主なので仲介手数料は不要です 設備・特徴 - LPガス
備考 *案内・ご不明な点がございましたら、必ず事前にメールにてご連絡ください。 学区色がついているアイコンをクリックすると、本物件までの道順を見ることができます。
主な周辺施設色がついているアイコンをクリックすると、本物件までの道順を見ることができます。
-
ホームページはこちら北海道知事 上川(12) 第535号
(株)ホッポウ〒070-0039
TEL:0166-22-4183
FAX:0166-22-4195
営業時間:9:00~17:00
定休日:毎週 土曜・日曜・祝日
※連合隊は物件情報の精度向上に努めています:「物件情報に誤りがある」「成約済みである」などお気付きの点がございましたらこちらよりご連絡ください。
写真枚数:3枚