富岡町2丁目一戸建て
ここに注目!★ミサワホーム施工築浅物件!!リビングは3mの吹き抜け天井、2400mm幅の洗面台やランドリールームがあり、浴室は1.25坪タイプで水廻り設備が特に充実しています!家事動線と来客動線が交錯せず、使い勝手の良い間取りです。シューズクロークや物入も多く、収納も使いやすくなっております。子育て世代に最適な物件として、ぜひ一度ご検討ください!★
| 価格 |
4,690万円
|
|---|---|
| 建物面積 | 110.64m² (33.46坪) |
| 土地面積 | 207.43m² (62.74坪)(公簿) |
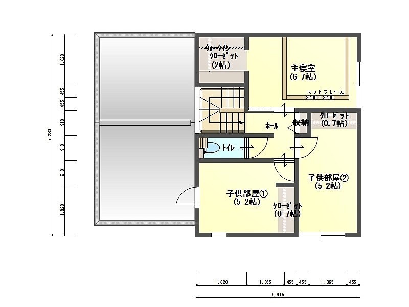
| 間取り | 4LDK |
| 住所 | 北海道函館市富岡町2-30-1 |
| 交通 | 函館バス「医師会病院前」停 (徒歩7分) |
| 築年月 | 築2年(2023年3月) |
| 駐車場 |
あり
|
販売状況、見学、詳細を知りたい方はこちら!
お電話の際は「連合隊の物件」とお伝えください。
情報掲載期限:あと21日(更新日 2025/12/12)
- 物件写真・概要
- 周辺地図
-
▼クリックで左の拡大画像が変わります。 すべての写真を拡大
販売状況、見学、詳細を知りたい方はこちら!
おすすめポイント
- 築3年以内
- 駐車場あり
- 都市ガス
- 近くて便利!徒歩5分以内にある施設
- 3分
3分- 2分
2分- 周辺施設を地図で確認
交通
- 函館バス「医師会病院前」停 徒歩7分
物件概要
建物の階建 地上2階建 主要採光面 西 構造 その他(木質パネル工法) 接道状況 一方 - 西側幅8.00mの公道に9.05m接道
都市計画区域 市街化区域 私道負担 なし 地目/地勢 宅地 地勢:平坦 国土法届出 不要 土地権利 所有権 用途地域 - 第2種中高層住居専用地域(建ぺい率:60% / 容積率:200%)
引渡し 相談 現況 入居中 施工業者 ミサワホーム北海道株式会社函館支店 取引態様 仲介 物件No 仲介手数料概算 161万3,700円(金額は概算です。正確な金額は不動産会社へお問合せ下さい) 設備・特徴 - 整形地
- 閑静な住宅街
- 物置
- 庭が広い(10坪以上)
- デザイナーズ
- 日当り良好
- 照明器具付
- バリアフリー
- フローリング
- 吹き抜け
- シューズインクローゼット
- 全居室収納あり
- トイレ2ヶ所以上
- 温水洗浄トイレ
- シャワー付洗面化粧台
- 浴室に窓
- 浴室1坪以上
- コンロ3口以上
- システムキッチン
- 食器洗乾燥機
- 都市ガス
- エアコン付
- ガス暖房
- セントラル空調
- 24時間換気システム
- 熱交換器
- エコジョーズ
- モニタ付インターホン
- ケーブルテレビ
備考 学区色がついているアイコンをクリックすると、本物件までの道順を見ることができます。
主な周辺施設色がついているアイコンをクリックすると、本物件までの道順を見ることができます。
- ローソン函館富岡二丁目店約169m(徒歩3分)
- かぜのこ認定こども園約156m(徒歩2分)
- 函館富岡郵便局約543m(徒歩7分)
- セイコーマート函館富岡1丁目店約539m(徒歩7分)
- 函館市医師会病院約792m(徒歩10分)
- 認定こども園太陽の子幼稚園約655m(徒歩9分)
- みちのく銀行亀田支店約665m(徒歩9分)
- 函館東富岡郵便局約658m(徒歩9分)
- 函館若葉幼稚園約756m(徒歩10分)
- セブンイレブン函館富岡町店約854m(徒歩11分)
対象となりうる支援制度
函館市
支援制度に関するお問合せは、不動産会社ではなく、自治体の公式ページまたは担当課までご確認ください。
上記リンクは、支援制度の対象条件を一定以上満たした物件に対し自動表示しています。
-
ホームページはこちら北海道知事 石狩(14) 第1481号
ミサワホーム北海道 函館支店
※連合隊は物件情報の精度向上に努めています:「物件情報に誤りがある」「成約済みである」などお気付きの点がございましたらこちらよりご連絡ください。
写真枚数:24枚
1階
2階
リビング
リビング
リビング
ダイニング・キッチン
ダイニング・キッチン
キッチン
洗面化粧台
洗面化粧台
脱衣室
浴室
ランドリールーム
1階トイレ
1階トイレ
階段
2階洋室
2階トイレ









