鹿部リゾートI(アイ)街区 ☆一部ログハウス☆
ここに注目!バス停まで徒歩2分☆お車をお持ちで無い方にも嬉しいですね!テニスコートは目の前に、鹿部カントリー倶楽部(ゴルフ場)は450m先にあり、スポーツをされる方にもご満足いただける立地となっております。土地は2区画なのでお庭も畑も思う存分楽しめます!昭和51年に建築されたログハウスは、時を経て味わい深いシルバーに。その後(平成14年頃)増築をし、現在の姿となっております。 建物の中も、「リゾート地ならでは」の造りで、わくわくするようなお家ですよ♪リフォームをご希望の場合は、当社でも承っておりますのでお気軽にご相談ください。
| 価格 |
690万円
|
|---|---|
| 建物面積 | 53.46m² (16.17坪) |
| 土地面積 | 1501.84m² (454.3坪)(公簿) |
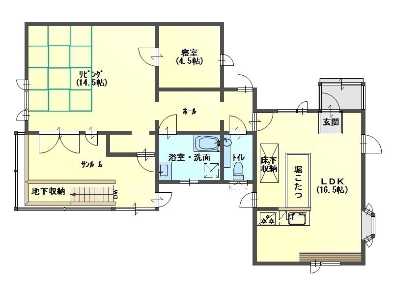
| 間取り | 2LDK1階:LDK16.5帖 洋室14.5帖 洋室4.5帖 |
| 住所 | 北海道茅部郡鹿部町本別569-231 |
| 交通 | 函館バス「鹿部リゾートオーナーズサロン」停 (徒歩2分)|鹿部駅(徒歩20分) |
| 築年月 | 築49年(1976年4月) |
| 駐車場 |
あり
|
販売状況、見学、詳細を知りたい方はこちら!
お電話の際は「連合隊の物件」とお伝えください。
情報掲載期限:あと22日(更新日 2025/12/12)
- 物件写真・概要
- 周辺地図
-
販売状況、見学、詳細を知りたい方はこちら!
おすすめポイント
- 駐車場あり
- 角地
- 平屋
交通色がついているアイコンをクリックすると、本物件までの道順を見ることができます。
- 鹿部駅JR函館本線徒歩20分(約1.6km)
- 函館バス「鹿部リゾートオーナーズサロン」停 徒歩2分(約100m)
物件概要
建物の階建 地上1階建 主要採光面 構造 木造 接道状況 角地 - 南西側幅7.50mの公道に56.00m接道 位置指定:無
- 北側幅6.60mの私道に63.00m接道 位置指定:無
都市計画区域 都市計画区域外 私道負担 なし 地目/地勢 宅地 / 山林 国土法届出 不要 土地権利 所有権 用途地域 - 無指定(建ぺい率:30% / 容積率:60%)
その他費用 毎月の費用 - 管理費(定住・税込):3,850円
- 管理費(別荘・税込):4,400円
- 水道基本料・メーター料(税込):2,150円
引渡し 相談 現況 入居中 取引態様 仲介 物件No 仲介手数料概算 33万円(金額は概算です。正確な金額は不動産会社へお問合せ下さい) 修繕履歴 - 2020年9月頃に屋根・外壁をリフォームしています。施工内容:外壁(ログハウス部分以外)と屋根全体の塗装
設備・特徴 - 角地
- 庭が広い(10坪以上)
- ログハウス
- 玄関フード
- 照明器具付
- 床下収納
- 温水洗浄トイレ
- 浴室に窓
- システムキッチン
- LPガス
- 灯油暖房
- 灯油ボイラー
- 平屋
- 田舎暮らし向き
- リゾート向け
備考 ・温泉付きではありません。 ・建物一部未登記です。(風除室、西側増築部分、地下収納部分) ・境界の明示は省略いたします。 学区色がついているアイコンをクリックすると、本物件までの道順を見ることができます。
主な周辺施設色がついているアイコンをクリックすると、本物件までの道順を見ることができます。
- ひょうたん沼公園約2.5km(徒歩32分)
- DCMニコット約4.8km(徒歩60分)
- ローソン約4.8km(徒歩60分)
- 鹿部郵便局約5.8km(徒歩73分)
- 小板商店約6.3km(徒歩79分)
- しかべ内科診療所約6.4km(徒歩80分)
- 鹿部カントリークラブ約450m(徒歩6分)
-
ホームページはこちら北海道知事 石狩(14) 第1481号
ミサワホーム北海道 函館支店
※連合隊は物件情報の精度向上に努めています:「物件情報に誤りがある」「成約済みである」などお気付きの点がございましたらこちらよりご連絡ください。
写真枚数:23枚









