ここに注目!新築アパート、現在満室、JR駅徒歩5分圏内の好立地
| 価格 |
2億円
利回り6.07%
満室時想定年収:1,215万6,000円
|
|---|---|
| 住所 | 広島県東広島市西条町寺家4706-2 |
| 交通 | 寺家駅(徒歩4分) |
| 築年月 | 新築(2025年4月) |
| 構造 | 木造 |
| 面積 | 建物:244.89m² (74.07坪)/ 土地:498.07m² (150.66坪)(公簿) |
| 現況 | 現在満室(総戸数15戸中 15戸賃貸中) |
販売状況、見学、詳細を知りたい方はこちら!
お電話の際は「連合隊の物件」とお伝えください。
情報掲載期限:あと30日(更新日 2025/12/22)
- 物件写真・概要
- 周辺地図
-
販売状況、見学、詳細を知りたい方はこちら!
おすすめポイント
- 現在満室
- 新築
- 駅徒歩5分以内
- 土地100坪超
- 大学・専門近く
交通色がついているアイコンをクリックすると、本物件までの道順を見ることができます。
物件概要
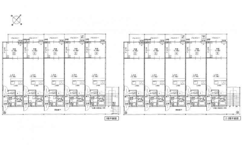
建物の階建 地上3階建 間取り 1LDK×15戸 駐車場 あり接道状況 一方 - 北東側幅7.40mの公道に接道
都市計画区域 市街化区域 用途地域 - 第1種住居地域(建ぺい率:60% / 容積率:200%)
私道負担 なし 地目/地勢 宅地 地勢:平坦 国土法届出 不要 土地権利 所有権 引渡し 相談 取引態様 仲介 物件No 62981 仲介手数料概算 不動産会社へお問合せください 設備・特徴 - 大学・専門近く
- 角地
- バス/トイレ別
- その他インターネット
備考 主な周辺施設色がついているアイコンをクリックすると、本物件までの道順を見ることができます。
-

この物件の担当者 富樫 泰生(とがし やすお)
★売買に関するご相談、お悩みがあれば誠心誠意対応させて頂きます(^-^)
ホームページはこちら広島県知事 (2) 第10055号
(株)満天
※連合隊は物件情報の精度向上に努めています:「物件情報に誤りがある」「成約済みである」などお気付きの点がございましたらこちらよりご連絡ください。
写真枚数:1枚
売買業務に関しては満天にお気軽にご連絡下さい。
投資物件、売買全般業務を主に行っています。 又、投資物件に関しては、ご購入後のサポートとして管理業務も行っていますので、 その後の疑問に対しても対応させて頂きますのでご安心下さい。