ここに注目!五日市駅目の前で生活利便性良好な立地、築浅物件!!
| 価格 |
4億1,000万円
利回り4.55%
満室時想定年収:1,867万2,000円
|
|---|---|
| 住所 | 広島県広島市佐伯区五日市駅前1-11-18 |
| 交通 | 広電五日市駅(徒歩6分)|佐伯区役所前駅(徒歩8分) |
| 築年月 | 築3年(2022年4月) |
| 構造 | 鉄筋コンクリート(RC)造 |
| 面積 | 建物:852.64m² (257.92坪)/ 土地:231.84m² (70.13坪)(公簿) |
| 現況 | 空室1室のみ(総戸数18戸中 17戸賃貸中) |
販売状況、見学、詳細を知りたい方はこちら!
お電話の際は「連合隊の物件」とお伝えください。
情報掲載期限:あと27日(更新日 2025/12/18)
- 物件写真・概要
- 周辺地図
-
販売状況、見学、詳細を知りたい方はこちら!
おすすめポイント
- 築5年以内
- 大学・専門近く
- 複数路線利用可
- 空室が1室のみ
- 家賃保証
交通色がついているアイコンをクリックすると、本物件までの道順を見ることができます。
物件概要
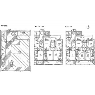
建物の階建 地上7階建 間取り 駐車場 接道状況 一方 - 南側の公道に接道
都市計画区域 市街化区域 用途地域 - 近隣商業地域(建ぺい率:80% / 容積率:300%)
私道負担 なし 地目/地勢 宅地 地勢:平坦 国土法届出 不要 土地権利 所有権 引渡し 相談 取引態様 仲介 物件No 61596 仲介手数料概算 1,359万6,000円(金額は概算です。正確な金額は不動産会社へお問合せ下さい) 設備・特徴 - 大学・専門近く
- 家賃保証
- 複数路線利用可
- エレベーター
- 耐震
- バス/トイレ別
- オートロック
- その他インターネット
備考 主な周辺施設色がついているアイコンをクリックすると、本物件までの道順を見ることができます。
-

この物件の担当者 富樫 泰生(とがし やすお)
★売買に関するご相談、お悩みがあれば誠心誠意対応させて頂きます(^-^)
ホームページはこちら広島県知事 (2) 第10055号
(株)満天
※連合隊は物件情報の精度向上に努めています:「物件情報に誤りがある」「成約済みである」などお気付きの点がございましたらこちらよりご連絡ください。
写真枚数:2枚
売買業務に関しては満天にお気軽にご連絡下さい。
投資物件、売買全般業務を主に行っています。 又、投資物件に関しては、ご購入後のサポートとして管理業務も行っていますので、 その後の疑問に対しても対応させて頂きますのでご安心下さい。