【店舗・事務所・パン製造所・住居】北斗市飯生3丁目4番9号
ここに注目!※2階住居は賃貸中 家賃5.5万円/月※冷凍庫・冷蔵庫・オーブン等什器備品付
| 価格 |
2,000万円
|
|---|---|
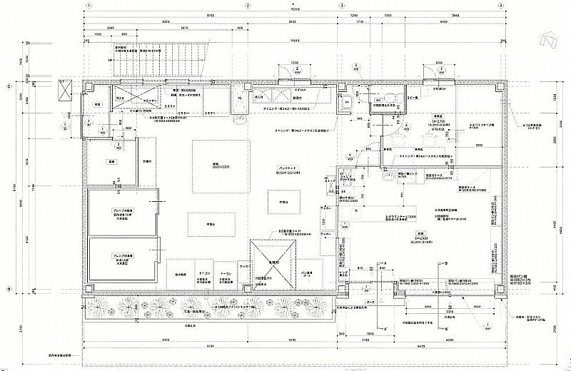
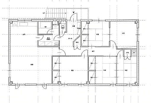
| 建物面積 | 261.6m² (79.13坪) |
| 土地面積 | 532.22m² (160.99坪)(公簿) |
| 住所 | 北海道北斗市飯生3丁目4-9 |
| 交通 | 函館バス「常盤3丁目」停 (徒歩4分)|上磯駅(徒歩6分) |
| 築年月 | 築40年(1985年9月) |
| 駐車場 |
あり
|
| 用途地域 |
|
販売状況、見学、詳細を知りたい方はこちら!
お電話の際は「連合隊の物件」とお伝えください。
情報掲載期限:あと13日(更新日 2025/12/4)
- 物件写真・概要
- 周辺地図
-
販売状況、見学、詳細を知りたい方はこちら!
おすすめポイント
- 駐車場あり
- 出店するなら…この業種がおすすめ!
- 飲食全般(重飲食含む)

- 喫茶・カフェ(軽飲食)

- バー・クラブ・スナック

- 小売・物販

- 美容・健康・介護

- 医療

- 教育・スクール

- 事務所

- アミューズメント

交通色がついているアイコンをクリックすると、本物件までの道順を見ることができます。
- 上磯駅道南いさりび鉄道線徒歩6分(約475m)
- 函館バス「常盤3丁目」停 徒歩4分
物件概要
建物の階建 地上2階建 総戸数 主要採光面 構造 鉄骨造 居抜き情報 接道状況 一方 - 南西側の公道に13.70m接道
都市計画区域 市街化区域 私道負担 地目/地勢 宅地 地勢:平坦 国土法届出 土地権利 所有権 用途地域 - 近隣商業地域(建ぺい率:80% / 容積率:300%)
引渡し 相談 現況 入居中 取引態様 仲介 物件No k 仲介手数料概算 72万6,000円(金額は概算です。正確な金額は不動産会社へお問合せ下さい) 設備・特徴 - 商店街に面す
- ガス設備
- 給排水設備
備考 ※2階住居は賃貸中 家賃5.5万円/月 ※冷凍庫・冷蔵庫・オーブン等什器備品付 主な周辺施設色がついているアイコンをクリックすると、本物件までの道順を見ることができます。
-
※連合隊は物件情報の精度向上に努めています:「物件情報に誤りがある」「成約済みである」などお気付きの点がございましたらこちらよりご連絡ください。
写真枚数:18枚




全国展開のフランチャイズ 【イエステーション】 函館店 野村不動産函館㈱です。
函館市・北斗市・亀田郡七飯町エリアの戸建・土地・マンション・アパート等に特化した仲介・買取を行っております。相続した空き家の処分でお困りのかた是非ご相談ください。