登別市新生町 大型リフォーム物件(住宅借入金等特別控除住宅)
ここに注目!≪建築会社だからできる不動産仲介:家を買うだけで終わらない。末永いお付き合い≫ 登別市新生町に、新しい暮らしの舞台となる大型リフォーム物件が登場します! 広々とした27.5畳のLDKを含む4LDKの間取りは、ご家族皆様がゆったりと過ごせる贅沢な空間です。お料理が楽しくなるシステムキッチンや、寒い季節も安心の灯油暖房、快適な温水洗浄トイレ、追い焚き機能付きのお風呂など、暮らしを豊かにする設備が充実しています。 周辺環境も魅力たっぷり。徒歩5分圏内にはベビー・子供用品バースデイやサツドラ、徒歩8分圏内にはイオン登別店やセイコーマートがあり、日々のお買い物に困ることはありません。お子様の通学も安心の富岸小学校まで徒歩6分、緑陽中学校まで徒歩15分と、子育て世代にも嬉しい立地です。 閑静な住宅街で、理想のマイホーム生活を始めてみませんか? ※住宅借入金等特別控除住宅です。
この物件は、仲介手数料がかかりません。
この物件の売主は、情報を掲載している不動産会社です。仲介物件ではないため、仲介手数料は発生しません。
| 価格 |
2,160万円
|
|---|---|
| 建物面積 | 122.13m² (36.94坪) |
| 土地面積 | 200m² (60.5坪)(公簿) |
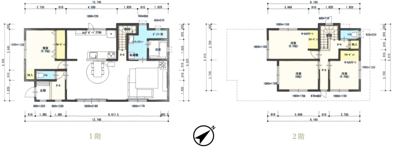
| 間取り | 4LDK1階:LD20帖 K7.5帖 洋室6.5帖 / 2階:洋室6.5帖 洋室6帖 洋室4.5帖 |
| 住所 | 北海道登別市新生町4丁目23-19 |
| 交通 | 鷲別駅(徒歩43分)道順を見る |
| 築年月 | 築35年(1990年4月) |
| 駐車場 |
あり 駐車可能台数:3台
|
販売状況、見学、詳細を知りたい方はこちら!
お電話の際は「連合隊の物件」とお伝えください。
新着 情報掲載期限:あと29日(更新日 2026/1/6)
- 物件写真・概要
- 周辺地図
-
販売状況、見学、詳細を知りたい方はこちら!
おすすめポイント
- 駐車2台以上可
- 車庫あり
- 追い焚き風呂
- 近くて便利!徒歩5分以内にある施設
- 5分
5分- 周辺施設を地図で確認
交通色がついているアイコンをクリックすると、本物件までの道順を見ることができます。
物件概要
建物の階建 地上2階建 主要採光面 南東 構造 木造 接道状況 一方 - 南西側幅6.00mの公道に10.00m接道 位置指定:無
都市計画区域 市街化区域 私道負担 なし 地目/地勢 宅地 地勢:平坦 国土法届出 不要 土地権利 所有権 用途地域 - 第1種低層住居専用地域(建ぺい率:50% / 容積率:80%)
引渡し 相談(2026年4月完成予定) 現況 その他 取引態様 売主 物件No 仲介手数料概算 取引態様が売主なので仲介手数料は不要です 設備・特徴 - 整形地
- 閑静な住宅街
- 車庫あり
- 玄関フード
- 照明器具付
- フローリング
- バリアフリー
- 二重サッシ
- シューズボックス
- 温水洗浄トイレ
- トイレ2ヶ所以上
- シャワー付洗面化粧台
- 浴室1坪以上
- 浴室に窓
- 追い焚き風呂
- コンロ3口以上
- システムキッチン
- LPガス
- エアコン付
- モニタ付インターホン
- 灯油暖房
- 電動シャッター
備考 学区色がついているアイコンをクリックすると、本物件までの道順を見ることができます。
主な周辺施設色がついているアイコンをクリックすると、本物件までの道順を見ることができます。
-
ホームページはこちら
北海道知事 胆振(1) 第1064号
(株)Live Cuore(リヴ クオーレ)
※連合隊は物件情報の精度向上に努めています:「物件情報に誤りがある」「成約済みである」などお気付きの点がございましたらこちらよりご連絡ください。
写真枚数:4枚
室蘭、登別、伊達で不動産売買ならLive Cuore(リヴクオーレ)にお任せください。
LiveCuoreは【住む人の心を大切にする会社】です。土地、建物の売買はLiveCuore(リヴクオーレ)に是非ご相談ください。