室蘭市絵鞆町中古住宅!!
ここに注目!車庫付き一軒家!!4LDKで5人家族でもOK!!リノベーションしてもよし!!庭も広く使えます!!
| 価格 |
300万円
|
|---|---|
| 建物面積 | 121.72m² (36.82坪) |
| 土地面積 | 246.28m² (74.49坪)(公簿) |
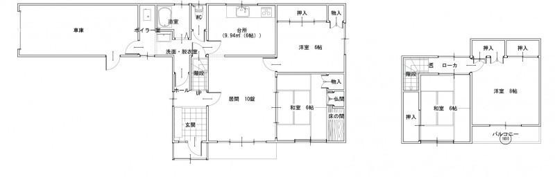
| 間取り | 4LDK1階:L10帖 K6帖 洋室6帖 / 2階:和室6帖 洋室8帖 / その他:和室6帖 |
| 住所 | 北海道室蘭市絵鞆町2丁目16-17 |
| 交通 | |
| 築年月 | 築42年(1984年3月) |
| 駐車場 |
あり 駐車可能台数:1台
車庫1台分あり |
販売状況、見学、詳細を知りたい方はこちら!
お電話の際は「連合隊の物件」とお伝えください。
情報掲載期限:あと12日(更新日 2026/2/20)
- 物件写真・概要
- 周辺地図
-
販売状況、見学、詳細を知りたい方はこちら!
お電話の際は「連合隊の物件」とお伝えください。
0143-47-9522情報掲載期限:あと12日(更新日 2026/2/20)
おすすめポイント
- 即引渡し可
- 駐車場あり
- 車庫あり
- 追い焚き風呂
- 近くて便利!徒歩5分以内にある施設
- 3分
3分- 周辺施設を地図で確認
物件概要
建物の階建 地上2階建 主要採光面 構造 木造 接道状況 都市計画区域 市街化区域 私道負担 地目/地勢 宅地 地勢:平坦 国土法届出 土地権利 所有権 用途地域 - 第2種中高層住居専用地域(建ぺい率:60% / 容積率:200%)
引渡し 即時 現況 空き 取引態様 代理 物件No 仲介手数料概算 15万4,000円(金額は概算です。正確な金額は不動産会社へお問合せ下さい) 設備・特徴 - 車庫あり
- 玄関フード
- 物置
- 温水洗浄トイレ
- 追い焚き風呂
- 床暖房
- 灯油暖房
- LPガス
備考 学区色がついているアイコンをクリックすると、本物件までの道順を見ることができます。
主な周辺施設色がついているアイコンをクリックすると、本物件までの道順を見ることができます。
-
※連合隊は物件情報の精度向上に努めています:「物件情報に誤りがある」「成約済みである」などお気付きの点がございましたらこちらよりご連絡ください。
写真枚数:24枚
道の駅みたら
みなと小学校
北海道清水ヶ丘高等学校
清泉幼稚園
室蘭市近郊の仕事ならカワタホームへ!!
住宅新築からリノベーション、土地のご紹介まで、豊富な知識と経験でお住いに関することを全面サポートします!!!