中古戸建:登別市中央町7丁目
ここに注目!価格が1,949万円になりました! 登別市中央町に平家の中古戸建のご紹介です。平屋はスウェーデンハウス施工の高性能中古住宅です。屋根は、サビにくく長持ちするのが特徴のステンレス葺を使用しています。別荘として使用されていたため、日常的な使用感もなくご購入後にそのままお住みいただけます。幌別小学校まで徒歩3分、スーパーやドラッグストアも10分圏内にあります。建物のご案内も可能です! 株式会社アンフィニまでお気軽にお問い合わせください♪
| 価格 |
1,949万円
|
|---|---|
| 建物面積 | 100.03m² (30.25坪) |
| 土地面積 | 359.83m² (108.84坪)(公簿) |
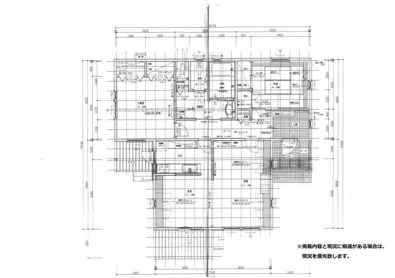
| 間取り | 2LDK1階:LDK24.6帖 洋室8.8帖 和室6帖 |
| 住所 | 北海道登別市中央町7-17-3 |
| 交通 | 幌別駅(徒歩11分)|道南バス 「幌別小学校前」停(徒歩4分)道順を見る |
| 築年月 | 築28年(1997年8月) |
| 駐車場 |
あり 駐車可能台数:1台
|
販売状況、見学、詳細を知りたい方はこちら!
お電話の際は「連合隊の物件」とお伝えください。
新着 情報掲載期限:あと26日(更新日 2026/2/2)
- 物件写真・概要
- 周辺地図
-
販売状況、見学、詳細を知りたい方はこちら!
おすすめポイント
- 即引渡し可
- 駐車場あり
- 平屋
- 近くて便利!徒歩5分以内にある施設
- 4分
4分- 5分
5分- 5分
5分- 3分
3分- 2分
2分- 周辺施設を地図で確認
交通色がついているアイコンをクリックすると、本物件までの道順を見ることができます。
- 幌別駅JR室蘭本線徒歩11分(約834m)
- 道南バス 「幌別小学校前」停徒歩4分(約300m)
物件概要
建物の階建 地上1階建 主要採光面 構造 木造 接道状況 一方 - 南側幅8.00mの公道に15.00m接道
都市計画区域 市街化区域 私道負担 なし 地目/地勢 宅地 地勢:平坦 国土法届出 不要 土地権利 所有権 用途地域 - 第2種中高層住居専用地域(建ぺい率:60% / 容積率:200%)
引渡し 即時 現況 空き 施工業者 スウェーデンハウス株式会社 取引態様 仲介 物件No 仲介手数料概算 70万9,170円(金額は概算です。正確な金額は不動産会社へお問合せ下さい) 設備・特徴 - 平屋
- 日当り良好
- 温水洗浄トイレ
- LPガス
備考 学区色がついているアイコンをクリックすると、本物件までの道順を見ることができます。
主な周辺施設色がついているアイコンをクリックすると、本物件までの道順を見ることができます。
-
ホームページはこちら
北海道知事 胆振(2) 第1025号
(株)アンフィニ- 加入団体
- (公社)北海道宅地建物取引業協会
- 保証協会
- (公社)全国宅地建物取引業保証協会
- 公正取引協議会
- (一社)北海道不動産公正取引協議会
※連合隊は物件情報の精度向上に努めています:「物件情報に誤りがある」「成約済みである」などお気付きの点がございましたらこちらよりご連絡ください。
写真枚数:3枚
外観写真①
間取図面
外観写真②
「売りたい」あなたに寄り添いたい!地域密着型の不動産屋! 不動産売却!解体!の事ならアンフィニへ!
新しい生活も、快適な毎日も、ここからはじまる!買う・売る・探す・解体・リフォームするをワンストップで解体~再生まで全力でサポートいたします!あなたの住まいに関することを丸ごとサポートする会社です!