【戸建て】中島本町(4LDK+1DK)
ここに注目!【内覧可】PriceDown3000⇒2800万円(2026.02.03) イワクラホーム施工 室蘭市中島本町のお住まいを、中古戸建として販売中! 八丁平や中島町へのアクセスも容易なエリアです。 4LDKと1DKの間取の、同居型や趣味、くっついているけれど離れがほしい…、様々なご要望にお応えできるお住まいです。建物の構造のコトや、仕様のコトもなんなりとお伺いください。ご購入後にお困りのことが発生した場合にも、私共へご相談ください。
| 価格 |
2,800万円
|
|---|---|
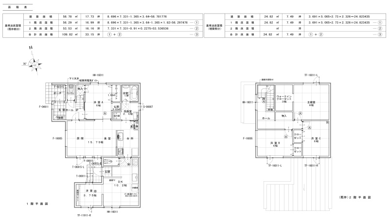
| 建物面積 | 134.65m² (40.73坪) |
| 土地面積 | 246.97m² (74.7坪)(公簿) |
| 間取り | 二世帯型 |
| 住所 | 北海道室蘭市中島本町3-209-83 |
| 交通 | 東室蘭駅(徒歩40分)|道南バス 「八丁平4丁目」停(徒歩14分)道順を見る |
| 築年月 | 築12年(2013年9月) |
| 駐車場 |
あり 駐車可能台数:4台
|
販売状況、見学、詳細を知りたい方はこちら!
お電話の際は「連合隊の物件」とお伝えください。
情報掲載期限:あと19日(更新日 2026/2/3)
- 物件写真・概要
- 周辺地図
-
販売状況、見学、詳細を知りたい方はこちら!
おすすめポイント
- 駐車2台以上可
- リフォーム済み
交通色がついているアイコンをクリックすると、本物件までの道順を見ることができます。
- 東室蘭駅JR室蘭本線徒歩40分(約3.2km)
- 道南バス 「八丁平4丁目」停徒歩14分
物件概要
建物の階建 地上2階建 主要採光面 南西 構造 木造(2×4) 接道状況 一方 - 西側幅8.00mの公道に17.00m接道
都市計画区域 市街化区域 私道負担 なし 地目/地勢 宅地 地勢:平坦 国土法届出 不要 土地権利 所有権 用途地域 - 第1種低層住居専用地域(建ぺい率:50% / 容積率:80%)
引渡し 相談(入居中のため) 現況 入居中 施工業者 イワクラホーム株式会社 取引態様 仲介 物件No 仲介手数料概算 99万円(金額は概算です。正確な金額は不動産会社へお問合せ下さい) 修繕履歴 - 2023年6月頃に部分的にリフォームしています。施工内容:南側24.82㎡増築(1DK部分)
設備・特徴 - LPガス
- トイレ2ヶ所以上
- 温水洗浄トイレ
- シャワー付洗面化粧台
- 浴室1坪以上
- IHクッキングヒーター
- コンロ3口以上
- システムキッチン
- 電気温水器
- モニタ付インターホン
- 24時間換気システム
- 電気暖房
- 整形地
- 閑静な住宅街
- 耐震
- フローリング
- ウォークインクローゼット
- シューズボックス
- 全居室収納あり
- 物置
- 照明器具付
- 日当り良好
- エアコン付
備考 内覧希望の方は、事前に日程ご相談をお願いいたします。 学区色がついているアイコンをクリックすると、本物件までの道順を見ることができます。
主な周辺施設色がついているアイコンをクリックすると、本物件までの道順を見ることができます。
-
※連合隊は物件情報の精度向上に努めています:「物件情報に誤りがある」「成約済みである」などお気付きの点がございましたらこちらよりご連絡ください。
写真枚数:30枚
西胆振エリアの住宅建築・リフォーム、リノベーション・不動産売買のことなら、イワクラホーム(株)室蘭支店にお任せください!
室蘭・登別・伊達及び周辺の西胆振エリアにて、新築注文住宅の建築やリフォーム、リノベーション、不動産売買をお手伝いしております。 豊富な知識を持ったスタッフが、お客様のご要望にお応えします!お気軽にご相談ください。