室蘭市本輪西町4丁目戸建住宅
ここに注目!北海道室蘭市本輪西町に、ご家族の新しい暮らしを彩る広々とした一戸建てが登場しました。 5SLDKのゆとりある間取りは、お子様の成長や趣味のスペースなど、多様なライフスタイルに柔軟に対応してくれます。 目の前には道南バス「本輪西町4丁目」停があり、毎日の通勤・通学やお出かけにも大変便利です。 北海道の冬も暖かく過ごせる灯油暖房・灯油ボイラーを完備。モニター付きインターホンや温水洗浄トイレ、シャワー付洗面化粧台、浴室に窓があるなど、快適な暮らしをサポートする設備も充実しています。 お車をお持ちの方には嬉しい無料車庫もございます(※車種制限あり)。 港北保育所やスーパー、コンビニ、郵便局などが徒歩圏内に揃い、生活利便性も良好な閑静な住宅街で、穏やかな日々を始めてみませんか。 この機会にぜひ一度ご内覧ください。
| 価格 |
100万円
|
|---|---|
| 建物面積 | 190.91m² (57.75坪) |
| 土地面積 | 109.09m² (32.99坪)(公簿) |
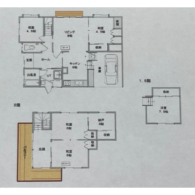
| 間取り | 5SLDK |
| 住所 | 北海道室蘭市本輪西町4-19-9 |
| 交通 | 本輪西駅(徒歩18分)|道南バス 「本輪西町4丁目」停(徒歩1分)道順を見る |
| 築年月 | 築53年(1972年10月) |
| 駐車場 |
あり 駐車可能台数:1台
|
【WEB面談可】
販売状況、見学、詳細を知りたい方はこちら!
お電話の際は「連合隊の物件」とお伝えください。
情報掲載期限:あと21日(更新日 2026/2/3)
- 物件写真・概要
- 周辺地図
-
【WEB面談可】
販売状況、見学、詳細を知りたい方はこちら!おすすめポイント
- 駐車場あり
- 車庫あり
- 角地
交通色がついているアイコンをクリックすると、本物件までの道順を見ることができます。
- 本輪西駅JR室蘭本線徒歩18分(約1.5km)
- 道南バス 「本輪西町4丁目」停徒歩1分
物件概要
建物の階建 地上2階建 主要採光面 構造 木造 接道状況 角地 - 東側幅6.00mの私道に13.00m接道 位置指定:有
- 北側幅6.00mの私道に10.00m接道 位置指定:有
都市計画区域 市街化区域 私道負担 地目/地勢 宅地 地勢:傾斜地 国土法届出 土地権利 所有権 用途地域 - 第1種住居地域(建ぺい率:60% / 容積率:200%)
引渡し 相談 現況 空き 取引態様 仲介 物件No 仲介手数料概算 33万円(金額は概算です。正確な金額は不動産会社へお問合せ下さい) 設備・特徴 - 角地
- 閑静な住宅街
- 浴室に窓
- 車庫あり
- 温水洗浄トイレ
- シャワー付洗面化粧台
- LPガス
- 灯油暖房
- 灯油ボイラー
- モニタ付インターホン
備考 車庫は車種の制限があります。 学区色がついているアイコンをクリックすると、本物件までの道順を見ることができます。
主な周辺施設色がついているアイコンをクリックすると、本物件までの道順を見ることができます。
-
ホームページはこちら
北海道知事 胆振(9) 第680号
ピタットハウス (有)ハトヤビル 【WEB面談可】〒050-0074
TEL:0143-44-2198(室蘭、登別市内の物件)
TEL:011-616-5555(札幌市内の物件)
FAX:0143-44-5642
営業時間:9:30~18:00
定休日:毎週 水曜・祝日
- 加入団体
- (公社)北海道宅地建物取引業協会
- 保証協会
- (公社)全国宅地建物取引業保証協会
- 公正取引協議会
- (一社)北海道不動産公正取引協議会
※連合隊は物件情報の精度向上に努めています:「物件情報に誤りがある」「成約済みである」などお気付きの点がございましたらこちらよりご連絡ください。
写真枚数:26枚
スーパー
郵便局
ホームセンター
コンビニ
室蘭登別の不動産のことならピタットハウス ハトヤビルまで!スピーディーで安心な対応を心がけています。
今年で創業49年となりました。お客様にとってより良いサービスをご提供できるよう日々励んでおります。不動産のご相談ならいつもピタットハウス ハトヤビルまで!お客様のお越しを心よりお待ちしております。