室蘭市柏木町 戸建て
ここに注目!2/12(木)~2/16(月)予約制見学会開催※当日予約OK。ご希望日をお知らせください。 近隣が密接していない物件をお探しの方におすすめです。角地ですので日当たりも良好で2方向から駐車できます。 【おすすめポイント】 ・雨漏り、構造上主要な部分の欠陥や・腐食、給排水管の故障や漏水についてお引渡しより2年間保証 ・返済額や融資可能額など、お客様のご希望にあわせてご提案。住宅ローンが初めての方でもお気軽にご相談ください ・南向き角地で全室南向きです。 【リフォーム内容】 外壁屋根塗装、キッチン交換、ユニットバス取付、追焚き付ボイラー設置、シャンプードレッサー設置、洗浄便座付トイレ交換、建具交換、玄関ドア交換、玄関収納取付、玄関タイル張替、クロス貼替、照明器具設置など 【近隣情報】 蘭北小学校迄約1.5km、港北中学校迄約1.5km、ほくと保育園迄約8km、セブンイレブン本輪西店様迄約3km、バス停 柏木町前迄約260m
この物件は、仲介手数料がかかりません。
この物件の売主は、情報を掲載している不動産会社です。仲介物件ではないため、仲介手数料は発生しません。
| 価格 |
1,249万円
|
|---|---|
| 建物面積 | 105.54m² (31.92坪) |
| 土地面積 | 229.59m² (69.45坪) |
| 間取り | 4LDK |
| 住所 | 北海道室蘭市柏木町44-23 |
| 交通 | 本輪西駅(徒歩43分) |
| 築年月 | 築47年(1978年8月) |
| 駐車場 |
あり 駐車可能台数:3台
|
販売状況、見学、詳細を知りたい方はこちら!
お電話の際は「連合隊の物件」とお伝えください。
情報掲載期限:あと29日(更新日 2026/2/11)
- 物件写真・概要
- 周辺地図
-
▼クリックで左の拡大画像が変わります。 すべての写真を拡大
-
価格には消費税、リフォーム費用を含みます。リフォーム中でもご
-
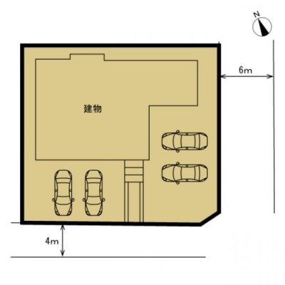
【リフォーム後間取り図】1階リビング横の和室は洋室に致します
-
【リフォーム中】LDKは広々の16帖です。クロスを貼替し照明
-
【リフォーム中】住宅前、玄関横に駐車場できます。たっぷり4台
-
【リフォーム中】キッチンです。新設されるキッチンはお洒落な人
-
【リフォーム中】南西側外観です。駐車場はゆったりとしています
-
【リフォーム中】LDKは広々の16帖。ダウンライトを採用して
-
【リフォーム中】0.75坪の浴室は足が伸ばせません。そこで1
-
【リフォーム中】便器は交換致します。暖房付き洗浄便座に致しま
-
【リフォーム中】洗面所です。シャンプードレッサーを設置いたし
-
【リフォーム中】住宅前と玄関横にも駐車場がございます。4台以
-
【リフォーム中】玄関です。玄関戸は北海道仕様の寒冷地ドアに交
-
【リフォーム中】玄関ホールは広々です。玄関ドアを交換し玄関タ
-
【リフォーム中】1階和室6畳は洋室6帖に間取り変更致します。
-
【リフォーム中】1階洋室6帖です。クロスを貼替し照明器具も交
-
2階洋室5.25帖です。クロスを貼替し照明器具も交換致します
-
【リフォーム中】2階和室4.5帖は洋室に間取り変更致します。
-
【リフォーム中】LDK16帖です。ストーブは撤去いたします。
-
【リフォーム中】LDK16帖には大きな窓から日が燦燦と差し込
-
スーパートライアル本輪西店様迄約3kmです。24時間営業で駐
-
蘭北小学校迄迄約2.3kmです。学び合う子 なかよくする子
-
室蘭市港北中学校迄約1.5kmです。Jリーガーの菅原 康太の
-
いくた内科クリニック様迄約2.5kmです。地域の皆様に信頼さ
-
セブンイレブン本輪西店様まで約2.8mです。24時間営業 駐
-
住宅に瑕疵(雨漏り、構造部分の欠陥や腐食など)があった場合は
-
下地内科クリニック様迄約2.8kmです。地域に根ざした思いや
-
桜ケ丘幼稚園様迄約2.7kmです。世の中に出て役立つ人間の育
-
港北公園迄約1.6kmです。森林浴や自然散策ができる公園です
-
本輪西ファミリークリニック様迄約2.8kmです。あなた、あな
-
散水栓がございますので洗車等に便利ですね
販売状況、見学、詳細を知りたい方はこちら!
おすすめポイント
- 駐車2台以上可
- 南向き
交通色がついているアイコンをクリックすると、本物件までの道順を見ることができます。
物件概要
建物の階建 地上2階建 主要採光面 南 構造 木造 バルコニー - バルコニー南向き
接道状況 二方(除角地) - 南東側幅6.50mの公道に接道
- 南西側幅4.00mの私道に接道
都市計画区域 その他(市街化) 私道負担 地目/地勢 宅地 国土法届出 土地権利 所有権 用途地域 - 第1種低層住居専用地域(建ぺい率:50% / 容積率:80%)
引渡し その他(現況引渡し) 現況 その他(完成済み(空室)) 取引態様 売主 物件No 623936 仲介手数料概算 取引態様が売主なので仲介手数料は不要です 設備・特徴 - 日当り良好
- LPガス
- 照明器具付
- 高台に立地
- 閑静な住宅街
- 庭が広い(10坪以上)
- その他:駐車2台・南向き
備考 2026/02 内装リフォーム完了予定・キッチン・浴室・トイレ・壁・床・洗面所・給湯器・給排水管・建具・内装全面、2026/02 外装リフォーム完了予定・外壁・屋根、2026/02 リノベーション完了予定・水回り・床材/壁紙交換 【見学会開催】【リフォーム中】 南角地の土地面積69坪で日当たり良好。全室南向きです。建物面積31坪4LDKのコンパクトな住宅です。駐車場拡張し3台以上に致します。・南向き・本輪西駅より車で7分 学区色がついているアイコンをクリックすると、本物件までの道順を見ることができます。
主な周辺施設
- 蘭北小学校約2.3km(徒歩29分)
- 港北中学校約1.5km(徒歩19分)
- セブンイレブン本輪西店約2.8km(徒歩35分)
- スーパーセンタートライアル室蘭本輪西店約3km(徒歩38分)
- いくた内科クリニック約2.5km(徒歩32分)
- 室蘭市役所約14km(徒歩175分)
-
-
※連合隊は物件情報の精度向上に努めています:「物件情報に誤りがある」「成約済みである」などお気付きの点がございましたらこちらよりご連絡ください。
写真枚数:30枚
価格には消費税、リフォーム費用を含みます。リフォーム中でもご
【リフォーム後間取り図】1階リビング横の和室は洋室に致します
【リフォーム中】LDKは広々の16帖です。クロスを貼替し照明
【リフォーム中】住宅前、玄関横に駐車場できます。たっぷり4台
【リフォーム中】キッチンです。新設されるキッチンはお洒落な人
【リフォーム中】南西側外観です。駐車場はゆったりとしています
【リフォーム中】LDKは広々の16帖。ダウンライトを採用して
【リフォーム中】0.75坪の浴室は足が伸ばせません。そこで1
【リフォーム中】便器は交換致します。暖房付き洗浄便座に致しま
【リフォーム中】洗面所です。シャンプードレッサーを設置いたし
【リフォーム中】住宅前と玄関横にも駐車場がございます。4台以
【リフォーム中】玄関です。玄関戸は北海道仕様の寒冷地ドアに交
【リフォーム中】玄関ホールは広々です。玄関ドアを交換し玄関タ
【リフォーム中】1階和室6畳は洋室6帖に間取り変更致します。
【リフォーム中】1階洋室6帖です。クロスを貼替し照明器具も交
2階洋室5.25帖です。クロスを貼替し照明器具も交換致します
【リフォーム中】2階和室4.5帖は洋室に間取り変更致します。
【リフォーム中】LDK16帖です。ストーブは撤去いたします。
【リフォーム中】LDK16帖には大きな窓から日が燦燦と差し込
スーパートライアル本輪西店様迄約3kmです。24時間営業で駐
蘭北小学校迄迄約2.3kmです。学び合う子 なかよくする子
室蘭市港北中学校迄約1.5kmです。Jリーガーの菅原 康太の
いくた内科クリニック様迄約2.5kmです。地域の皆様に信頼さ
セブンイレブン本輪西店様まで約2.8mです。24時間営業 駐
住宅に瑕疵(雨漏り、構造部分の欠陥や腐食など)があった場合は
下地内科クリニック様迄約2.8kmです。地域に根ざした思いや
桜ケ丘幼稚園様迄約2.7kmです。世の中に出て役立つ人間の育
港北公園迄約1.6kmです。森林浴や自然散策ができる公園です
本輪西ファミリークリニック様迄約2.8kmです。あなた、あな
散水栓がございますので洗車等に便利ですね
おうち買取・販売件数、全国No.1!リフォーム済み中古住宅を探すなら、カチタスにおまかせください。
当社のリフォーム済み中古住宅の販売累計棟数は4万戸以上です。さらに「平成27年度 先進的なリフォーム事業者表彰」では経済産業大臣賞を受賞。物件を知り尽くしたプロに最後まで安心してお任せください。