
函館市賃貸アパート、マンション、賃貸住宅から新築・中古住宅まで、
不動産、賃貸・売買に関するご相談は 中沢宅建へ
| 種別 | |
|---|---|
| 物件no. | 20419 |
| 物件名 | 東山2丁目 元診療所 |
|
価格
|
|
| 仲介手数料概算 |
147万8,400円(金額は概算です。正確な金額は不動産会社へお問合せ下さい)
その他にこんな諸費用が必要となります |
| 住所 | 北海道函館市東山2-1-28 |
| 交通 | 函館バス 「東山団地」停 徒歩3分 |
| 学区 | 函館市立東山小学校 約206m(徒歩3分) / 函館市立本通中学校 約689m(徒歩9分) |
|
【 この地域にはこんな物件もあります 】
【 この地域で過去に取引されたのはこんな物件です 】 | |
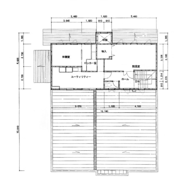
| 建物面積 | 276.27m² 【83.57坪】 |
| 構造 | 木造 2階建 |
| 築年月 | 築25年 (2000年03月) |
| 総戸数 | 1戸 |
| 間取り | |
| 土地面積 | 661m² 【199.95坪】 |
| 土地権利 | 所有権 |
| 都市計画 | 市街化区域 |
| 用途地域 | 第1種低層住居専用地域 / 近隣商業地域 |
| 建ぺい率 | 50% / 80% |
| 容積率 | 100% / 300% |
| 地目 | 雑種地 |
| 接道状況 | 一方 北側幅7.50mの公道に32.50m接道 |
| 【 ご参考までにこの地域の土地価格一覧です 】 | |
| 駐車場 | |
| 設備・特徴 | ロードヒーティング 上下水道 電気 |
| 備考 | 登記地目:雑種地 現況:宅地敷地内の第三者の給水管が埋設されています。元耳鼻咽喉科クリニック 私道負担:なし 建築確認番号:第1532号 |
| 管理費/共益費 | |
| 積立金 | |
| その他費用1 | |
| その他費用2 | |
| 取引態様 | 仲介 |
| 現況 | 空き |
| 引渡し | 相談 |
| 更新年月日 | 2025年12月18日 |
| 広告有効期限 | 2026年01月17日(次回更新予定日) |
|
この物件の情報を 携帯へ送る |
北海道知事 渡島(9) 第746号
LIXIL不動産ショップ (有)中沢宅建 〒040-0012 北海道函館市時任町2番1号 TEL : 0138-53-5432 FAX : 0138-51-6045 お電話の際は「連合隊の物件」とお伝え下さい |
※ポインタの位置は実際の場所とは異なる場合がございますので情報掲載元にご確認ください。