【店舗・事務所・パン製造所・住居】北斗市飯生3丁目4番9号
ここに注目!大幅価格変更! 上磯駅徒歩6分!160坪超の広大な敷地に、厨房什器付き店舗! 1階には冷凍庫・冷蔵庫・オーブンといった厨房什器が揃っており、パン製造業などの居抜き利用や飲食店等の利用で開業コストを大幅に抑えられます。 現在、2階の居宅部分は賃貸中、駐車場もしっかり確保でき、南西向きの広い公道に面しているため視認性も良好です。
| 価格 |
1,350万円
|
|---|---|
| 建物面積 | 261.6m² (79.13坪) |
| 土地面積 | 532.22m² (160.99坪)(公簿) |
| 住所 | 北海道北斗市飯生3丁目4-9 |
| 交通 | 上磯駅(徒歩6分)|函館バス 「常盤」停(徒歩4分)道順を見る |
| 築年月 | 築40年(1985年9月) |
| 駐車場 |
あり
|
| 用途地域 |
|
販売状況、見学、詳細を知りたい方はこちら!
お電話の際は「連合隊の物件」とお伝えください。
情報掲載期限:あと19日(更新日 2026/4/5)
- 物件写真・概要
- 周辺地図
-
販売状況、見学、詳細を知りたい方はこちら!
おすすめポイント
- 駐車場あり
- 出店するなら…この業種がおすすめ!
- 飲食全般(重飲食含む)

- 喫茶・カフェ(軽飲食)

- バー・クラブ・スナック

- 小売・物販

- 美容・健康・介護

- 医療

- 教育・スクール

- 事務所

- アミューズメント

交通色がついているアイコンをクリックすると、本物件までの道順を見ることができます。
- 上磯駅道南いさりび鉄道線徒歩6分(約475m)
- 函館バス 「常盤」停徒歩4分
物件概要
建物の階建 地上2階建 総戸数 主要採光面 構造 鉄骨造 居抜き情報 接道状況 一方 都市計画区域 市街化区域 私道負担 地目/地勢 宅地 地勢:平坦 国土法届出 土地権利 所有権 用途地域 - 近隣商業地域(建ぺい率:80% / 容積率:300%)
引渡し 相談 現況 入居中 取引態様 仲介 物件No K 仲介手数料概算 51万1,500円(金額は概算です。正確な金額は不動産会社へお問合せ下さい) 設備・特徴 - 商店街に面す
- ガス設備
- 給排水設備
備考 ※2階住居は賃貸中 家賃5.5万円/月 ※冷凍庫・冷蔵庫・オーブン等什器備品付 主な周辺施設色がついているアイコンをクリックすると、本物件までの道順を見ることができます。
-
ホームページはこちら
北海道知事 渡島(12) 第409号
イエステーション函館松風店 野村不動産函館(株)
※連合隊は物件情報の精度向上に努めています:「物件情報に誤りがある」「成約済みである」などお気付きの点がございましたらこちらよりご連絡ください。
写真枚数:17枚
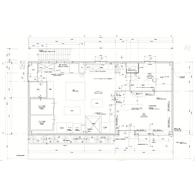
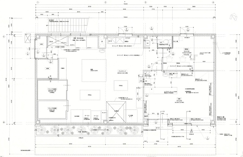
1階間取り
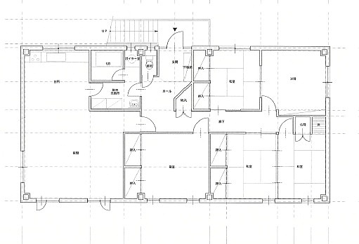
2階間取り
全国展開のフランチャイズ 【イエステーション】 函館松風店 野村不動産函館㈱です。
令和7年1月松風店オープン!売買営業スタッフは全員宅建士です!函館市・北斗市・亀田郡七飯町エリアの戸建・土地・マンション・アパート等に特化した仲介・買取を行っております。相続した空き家の処分でお困りのかた是非ご相談ください。